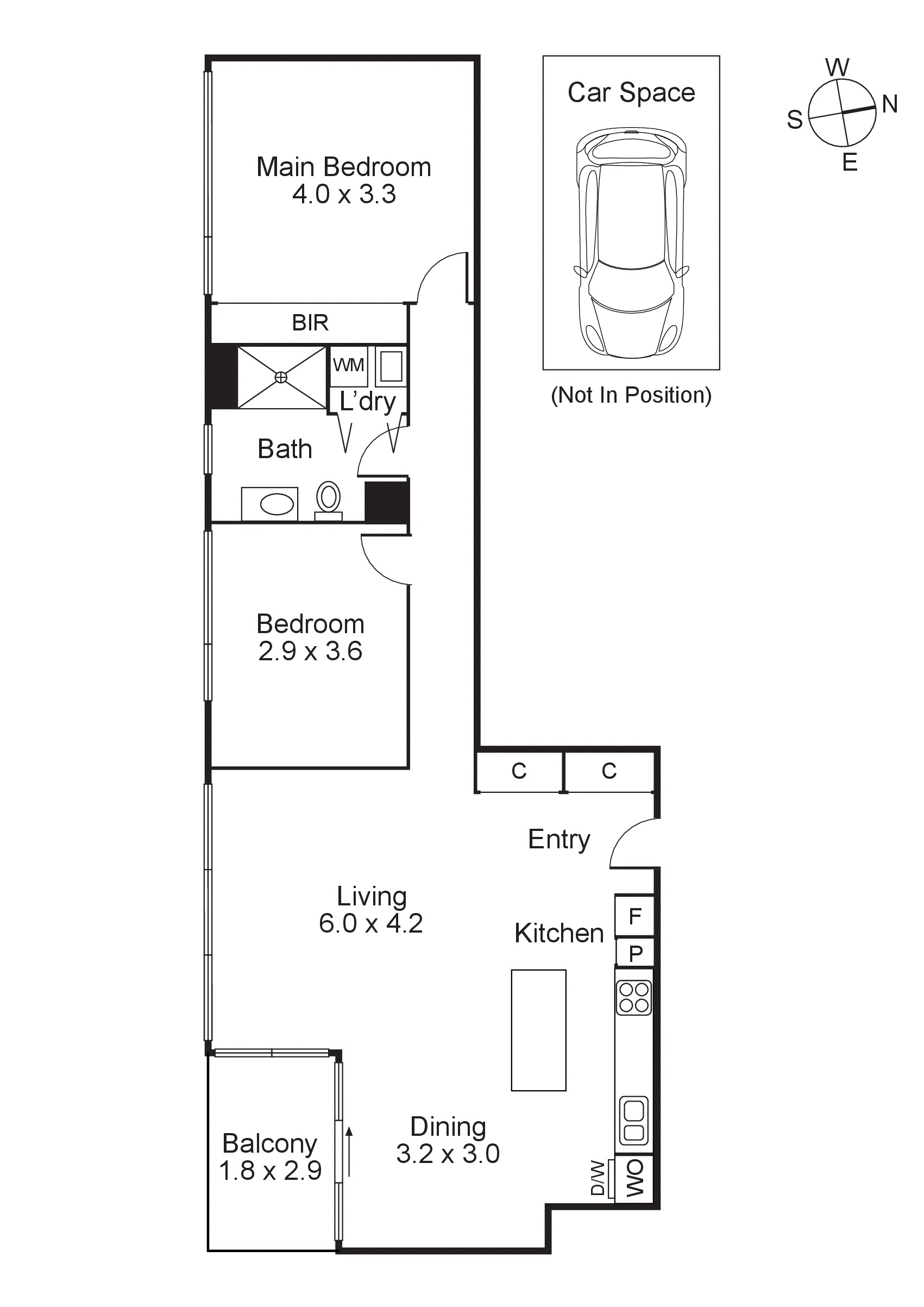
WHAT
Exceptionally located in the heart of Chapel, this spacious apartment offers contemporary modern living at its finest. Ideally positioned within the SY21 community, the home offers a generous open plan kitchen, living and dining zone upon entry, with wall-to-wall windows drawing in an abundance of natural light. Privately positioned off the...
WHAT
Exceptionally located in the heart of Chapel, this spacious apartment offers contemporary modern living at its finest. Ideally positioned within the SY21 community, the home offers a generous open plan kitchen, living and dining zone upon entry, with wall-to-wall windows drawing in an abundance of natural light. Privately positioned off the central hallway, both bedrooms enjoy easy access to the sparkling bathroom complete with shower, vanity and toilet, while the main bedroom also features a built-in robe.
• Contemporary 2-bedroom apartment
• Spacious & bright open plan living zone
• Positioned within the SY21 community
WHY
Impressive from every angle, this sparkling retreat includes premium stone surfaces, quality appliances and a movable island bench within the sleek, modern kitchen. Entertain in style and comfort as you enjoy the urban views through floor to ceiling windows in the comfort of the living zone, or step through glass sliding doors to your own private balcony. Further enhancing the appeal, convenient Euro laundry, ducted heating and cooling, single secure car space, lift access, intercom and access to the luxury SY21 community gardens, fully equipped gym and resort-style pool.
• Sleek stone kitchen with premium appliances
• Ducted heating & cooling for optimum comfort
• Access to SY21 pool, gym & community gardens
WHERE
Boasting an unrivalled Chapel Street position just steps from trams, shopping, dining and entertainment destinations, within a short stroll of South Yarra train station and the Main Yarra Trail, with easy access to the Botanic Gardens, MCG sports precinct and the CBD, and close to local schools including Richmond Primary and Melbourne High School.
• Just steps from trams, cafés & shops
• Walk to botanic gardens & Yarra River
• Easy access to MCG precinct & CBD