WHAT
Nestled in a peaceful boutique block in a quiet neighbourhood, this fully renovated two-bedroom unit is ready to simply move in and enjoy. Featuring an instantly inviting living zone upon entry, with large windows drawing in abundant natural light, which flows through to the central dining domain and modern kitchen and out through to the...
WHAT
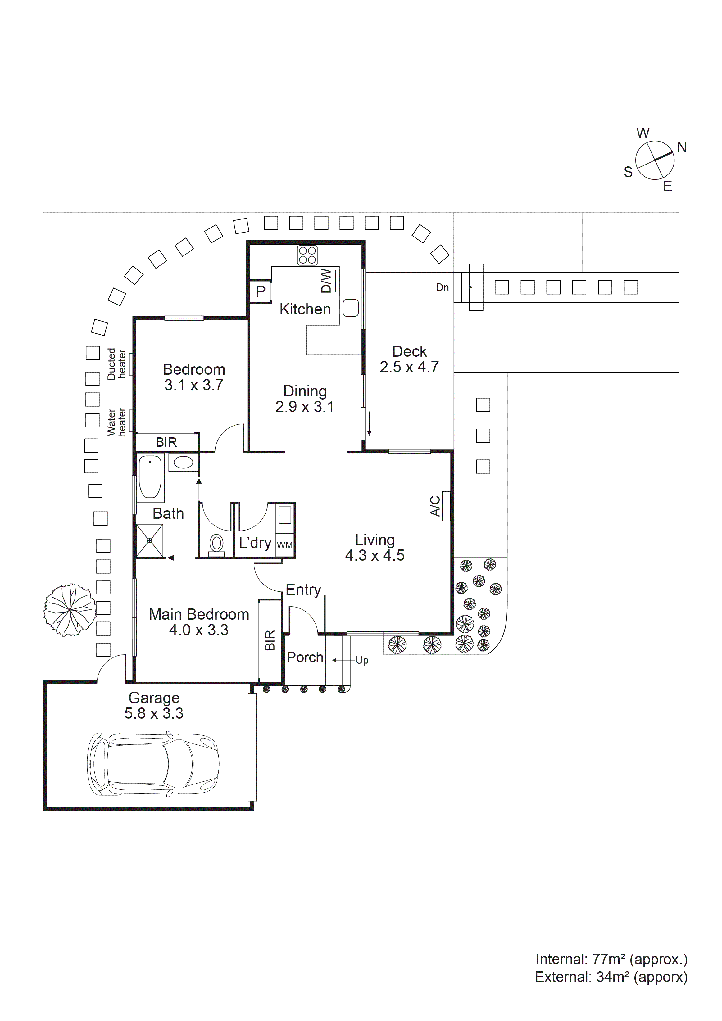
Nestled in a peaceful boutique block in a quiet neighbourhood, this fully renovated two-bedroom unit is ready to simply move in and enjoy. Featuring an instantly inviting living zone upon entry, with large windows drawing in abundant natural light, which flows through to the central dining domain and modern kitchen and out through to the generous outdoor entertainment area. Two generous bedrooms include built-in robes and are positioned on either side of the elegant main bathroom flaunting bath, shower, vanity and separate toilet.
• Fully renovated two-bedroom unit
• Bright & inviting living zone upon entry
• Two bedrooms include built-in robes
WHY
This unit boasts beautiful flooring throughout enhancing the sleek appeal of the gourmet kitchen, which is equipped with high quality appliances including Bosch cooktop, Smeg oven and dishwasher. The kitchen also features stylish kit-kat tiled splashbacks and a convenient breakfast bar – perfect for mealtimes or entertaining friends and family. Step outside to enjoy entertaining on the sun-splashed alfresco deck, with a laundry, ducted gas heating, split system reverse-cycle air conditioner, single car garage and visitor parking rounding out the impressive list of features.
• Sleek and modern kitchen with premium appliances
• Ducted gas heating & split system reverse cycle air conditioner cooling for comfort
• Single car garage plus visitor parking space
• Sunlit alfresco deck
WHERE
Wonderfully positioned for a connected and convenient lifestyle, within walking distance of Pinewood Shopping Village and close to shops, restaurants and entertainment at The Glen, within easy reach of parkland, buses, Glen Waverley train station and the Monash Freeway, and close to a selection of schools including Glen Waverley South Primary, Brentwood Secondary College and Monash University Clayton Campus. Monash Aquatic and Recreation Centre is merely moments away.
• Stroll to Pinewood Village & close to The Glen
• Easy access to buses & trains at Glen Waverley station
• Walk to local schools including Brentwood SC