Brimming with classic charm, potential and exceptional space, this double storey five-bedroom, two-bathroom coastal haven offers family flexibility, comfort and convenience by the bay. Surrounded by fantastic amenities, you’ll delight in the proximity to public transport, local schools, reserves and the beach. Beyond the traditional façade,...
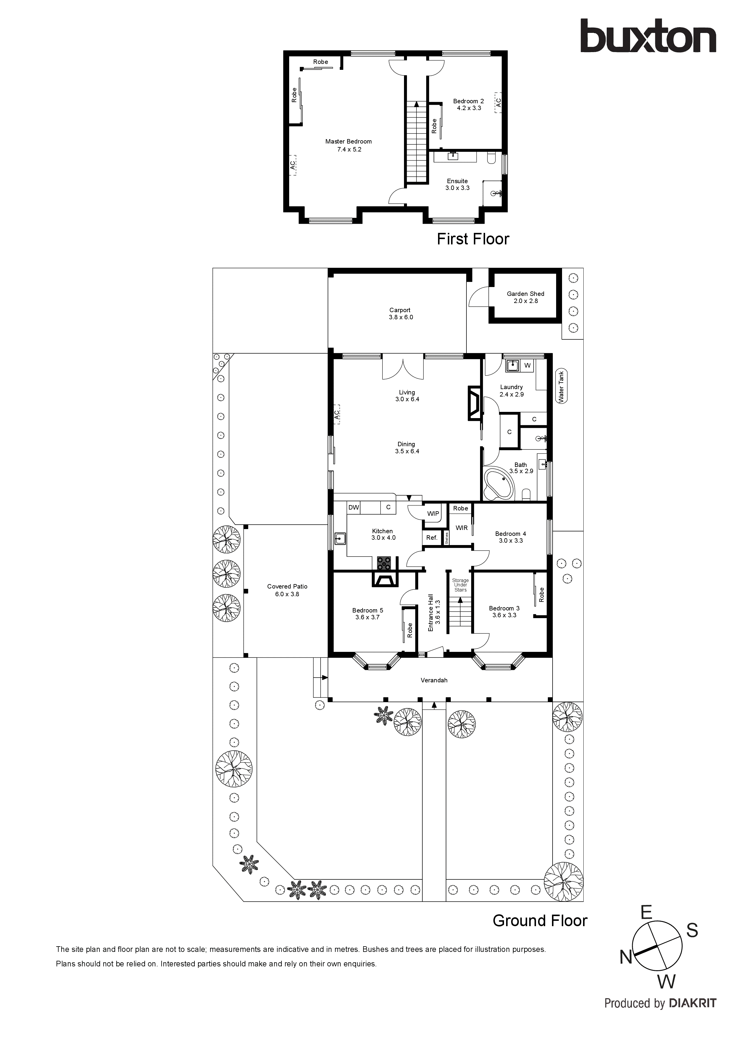
Brimming with classic charm, potential and exceptional space, this double storey five-bedroom, two-bathroom coastal haven offers family flexibility, comfort and convenience by the bay. Surrounded by fantastic amenities, you’ll delight in the proximity to public transport, local schools, reserves and the beach. Beyond the traditional façade, discover a warm, welcoming home that’s ready to make your own, comprising expansive open plan living and dining flowing to the outdoors, enhanced by a Coonara wood heater for those chilly afternoons. The neat timber kitchen with a stainless-steel freestanding cooker sits at this homes heart, overlooking a covered entertaining alfresco and securely fenced yard for kids to play. Five bedrooms and two bathrooms ensure plentiful accommodation for every age and stage, including three spacious robed downstairs bedrooms, while nestled upstairs is the fourth bedroom, and an impressive ensuite parents’ retreat. Timeless in appeal with an open fireplace, red brick accents and slate floors, modern day living is well catered for with an energy efficient solar system, ducted heating, multiple split systems, single remote garage and driveway parking (via Milne Avenue.) Situated in a premier pocket highly sought after by families for its walkability to Kananook Primary School and the train station, sports reserves, playgrounds and spectacular soft sandy beaches.