Bring your vision and take a view to the future in the absolute centre of the Zone. A rare under-capitalised opportunity amongst the designer renovations and new development backing McKinnon Secondary College, this well-positioned property is offered with an accommodating home, approx 613sqm blue-chip land...and visionary possibilities.
Secure...
Bring your vision and take a view to the future in the absolute centre of the Zone. A rare under-capitalised opportunity amongst the designer renovations and new development backing McKinnon Secondary College, this well-positioned property is offered with an accommodating home, approx 613sqm blue-chip land...and visionary possibilities.
Secure the ultimate in-Zone location and build a dream home to give your family the space they deserve and the educational opportunity they need. A kick to Joyce Park, a dash of the North Rd bus (to Monash University), and the shortest possible walk to the College, this is an unparalleled family location.
Alternatively, take a cue from the neighbours and build wealth in this proven position. Capitalise on the wide green views and guaranteed College Zoning of this central dual-occupancy site (Subject to Council Approval) and enjoy the added value of easy walking distance to McKinnon Rd’s station and cafes, close proximity Centre Rd’s vibrant shopping strip and a quick trip to Chadstone’s shopping and entertainment.
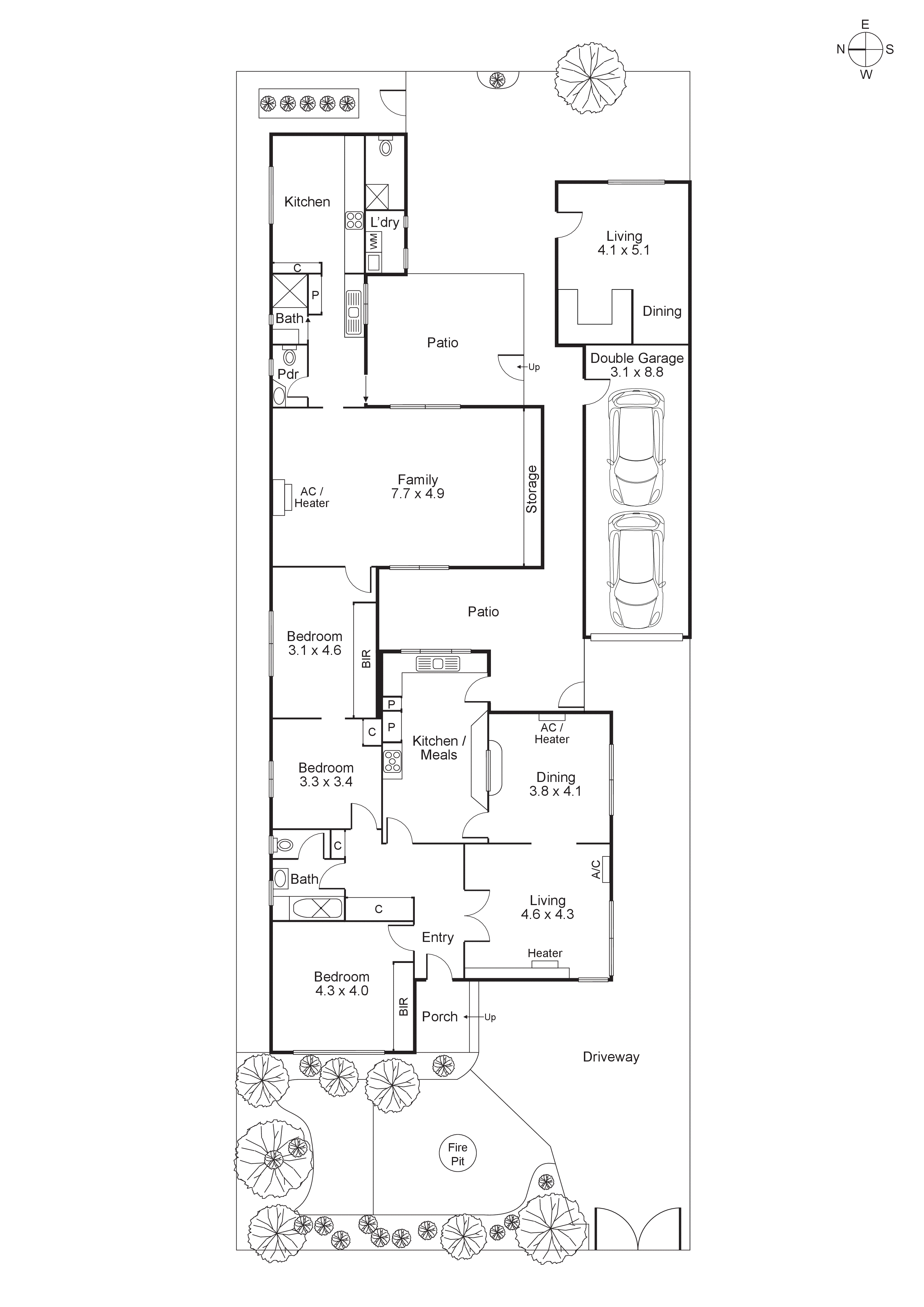
But don’t be too quick to overlook the value in the existing Art Deco-detailed home. Extended to provide diverse accommodation with a total of up to five bedrooms, three bathrooms and three kitchen areas, this accommodating property is appointed with reverse-cycle air-conditioning, polished boards and two-car garaging. Perfect to polish to pay its way or to provide a sizeable home-base, there’s may even be scope to see through a rewarding renovation.