In a magnificent family friendly locale set within serene and picturesque streets, this high-end residence at the rear of only three combines chic sophistication and attention to detail beyond compare.
Cleverly designed to capture natural light at every turn, the whisper quiet journey begins in the voluminous open plan living featuring a dining...
In a magnificent family friendly locale set within serene and picturesque streets, this high-end residence at the rear of only three combines chic sophistication and attention to detail beyond compare.
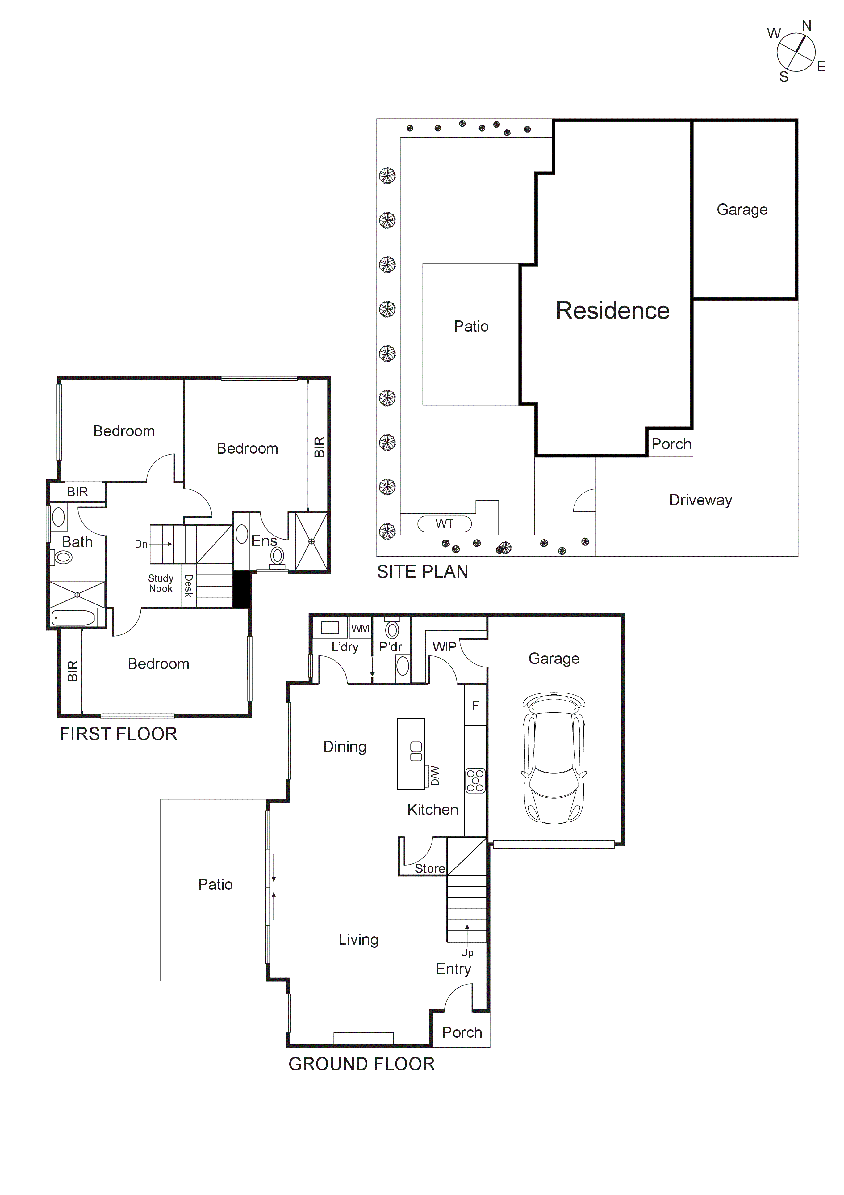
Cleverly designed to capture natural light at every turn, the whisper quiet journey begins in the voluminous open plan living featuring a dining zone and a brilliant, completely private garden with a pebbled al fresco area surrounded by mod grass and manicured plants.
The very latest Bosch appliances in a 900 mm oven, induction cooktop, integrated dishwasher and a fridge/freezer are perfectly positioned to entertain, complemented by cool matte 2pac cabinetry and a big stone island bench/breakfast bar.
A terrazzo tiled powder room and laundry, an epoxy floored garage with extensive storage concludes the ease.
Continuing the allure, a skylight floods the first floor with beautiful ambient light through the well-defined spaces, including a built-in study nook as a neat extra.
The main bedroom is complete with a wall of built-in wardrobes and a sumptuous fully tiled ensuite with a frameless glass double shower, followed by two further fitted bedrooms and a superb hotel feel family bathroom with a wet room/shower and bath.
Black fixtures and fittings complement by crisp white walls, extensive terrazzo, luxe timber finishes, a water tank for convenience and a secure gate to a dedicated part of the garden big enough for a trailer, bikes, or anything you like make this a one off.
The renowned family location is steps away from Highett Reserve, as well as Waves Leisure Centre, minutes to Southland shopping and train, in the Southmoor primary and Cheltenham secondary zone and dotted with old style shopping steps.
ALL ENQUIRIES MUST INCLUDE A CONTACT NUMBER. For more information, contact Chris Hassall at Buxton Bentleigh on 0412 898 990 or the Buxton Office on 9563 9933. ‘We have obtained all information in this document from sources we believe to be reliable; however, we cannot guarantee its accuracy. Prospective purchasers are advised to carry out their own investigation.’