Absolutely charming on a quiet tree lined street, this freestanding Edwardian’s carefully retained character and renovated modern spaces create an impressive, easy care environment perfectly in tune with its dynamic inner city location. Set behind a landscaped garden, beautifully spacious single level proportions stretch out on a deep 187sqm with...
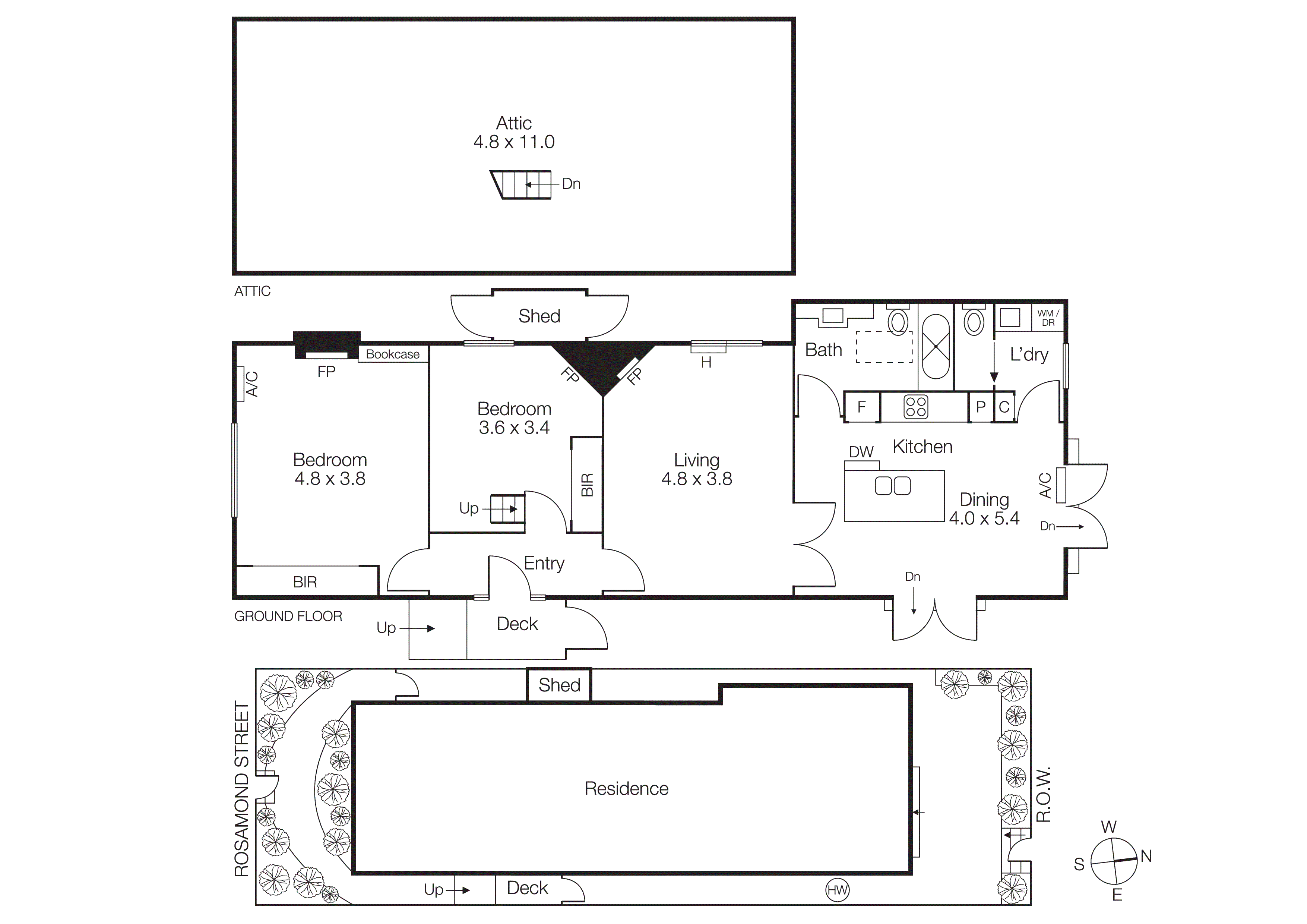
Absolutely charming on a quiet tree lined street, this freestanding Edwardian’s carefully retained character and renovated modern spaces create an impressive, easy care environment perfectly in tune with its dynamic inner city location. Set behind a landscaped garden, beautifully spacious single level proportions stretch out on a deep 187sqm with two bedrooms, open plan living and a generous north facing rear courtyard primed for entertaining. Soaring rosette ceilings and original open fire places define the two bedrooms with BIRs, including an oversized main with extensive BIRs and front garden views, and an inviting living room featuring a magnificent original fireplace. At the rear, a light filled extension instantly impresses with its quality stone finished kitchen featuring pull out pantry, excellent storage and an entertaining island overlooking north facing dining and the landscaped courtyard with pedestrian ROW access. Further highlights include a full size family bathroom, laundry with second WC, excellent attic storage with ladder, panel heating, split cooling, hardwood timber floors and rear ROW. Move straight in and immerse yourself in a lifestyle that puts Carlisle Street’s shops, cafes, restaurants and bars, trams, Balaclava Station, St Kilda Primary and St Kilda Botanic Gardens just around the corner and Chapel Street Windsor, Acland Street and St Kilda Beach within minutes.