Find yourself at the back gates of the College with an already-extended cream brick home, big broad approx 591sqm land... and a wide range of possibilities. An exciting opportunity to purchase on the sunny north-side of this central McKinnon Secondary College Zone address, this wide (approx 16m) property is ready to be loved for its already...
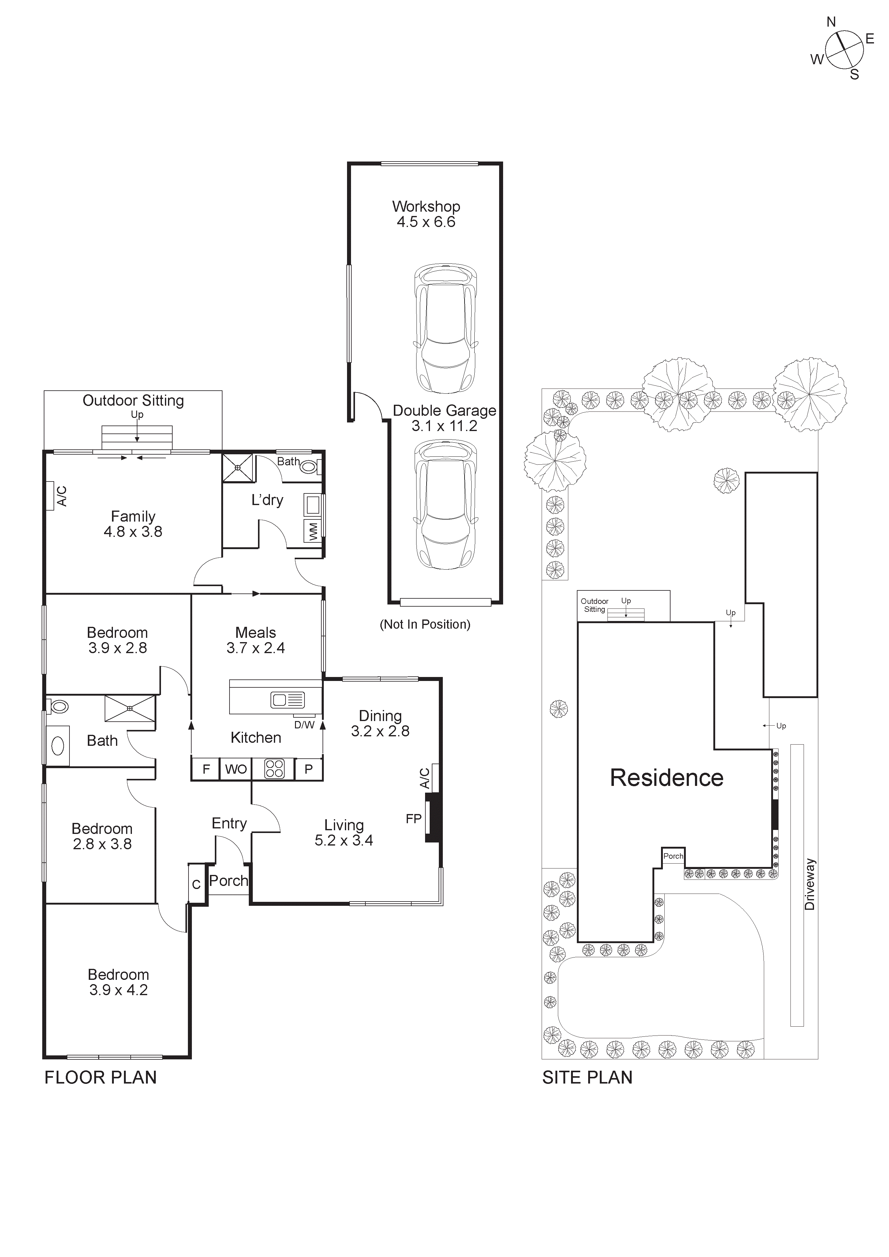
Find yourself at the back gates of the College with an already-extended cream brick home, big broad approx 591sqm land... and a wide range of possibilities. An exciting opportunity to purchase on the sunny north-side of this central McKinnon Secondary College Zone address, this wide (approx 16m) property is ready to be loved for its already extended three bedroom, two bathroom-area design featuring large living-dining wrapping a modern quality-appliance kitchen with dining, and a bright north-facing family-room stepping down to a paved area.
Ready to welcome with big bedrooms (the master is huge!), a stylish main bathroom and a vast and versatile second bathroom area, this cream-brick beauty offers eclectic detail of the era including up-lit cornices and wide sliders for the family-room...and contemporary comforts including reverse-cycle air-conditioners. Offering a solid base for ongoing renovation in broad-lawned family gardens, there's even added potential in a two-plus auto garage; with space to fit a man-cave and scope to rethink as additional accommodation.
Alternatively, rethink this perfect-sized site and enjoy a solid rental or home-base until it's time to build a brand-new home or two (Subject to Council Approval). Less than ten doors to the back gate of the College, there’s every McKinnon amenity here ...including the Primary School also in-Zone (and within an easy two block walk), the Reserve within a kick, and the station within a dash.