Classic elements, charm & an enchanted cottage feel combines with vast airy open plan living forming a brilliant combination throughout this captivating family residence - with room enough for the largest of families.
The character filled identity blends with a beautiful sympathetic renovation/extension with contemporary finishes creating an...
Classic elements, charm & an enchanted cottage feel combines with vast airy open plan living forming a brilliant combination throughout this captivating family residence - with room enough for the largest of families.
The character filled identity blends with a beautiful sympathetic renovation/extension with contemporary finishes creating an outstanding illustration of enduring style.
Exceptionally bright open plan living at its best is a vast entertaining space & includes a Cheminees Philippe fireplace warming the whole house & a split system.
Continuing the seamless flow, a contemporary & well-designed kitchen is framed by stone benchtops with an island bench/breakfast bar, white soft close cabinetry, Asko & Smeg stainless-steel oven & a café window for convenience.
The whole extension envelopes garden views & through sliding doors steps out to an enormous deck with a roof overlooking picturesque freeform gardens with flowering plants & a park like look all its own.
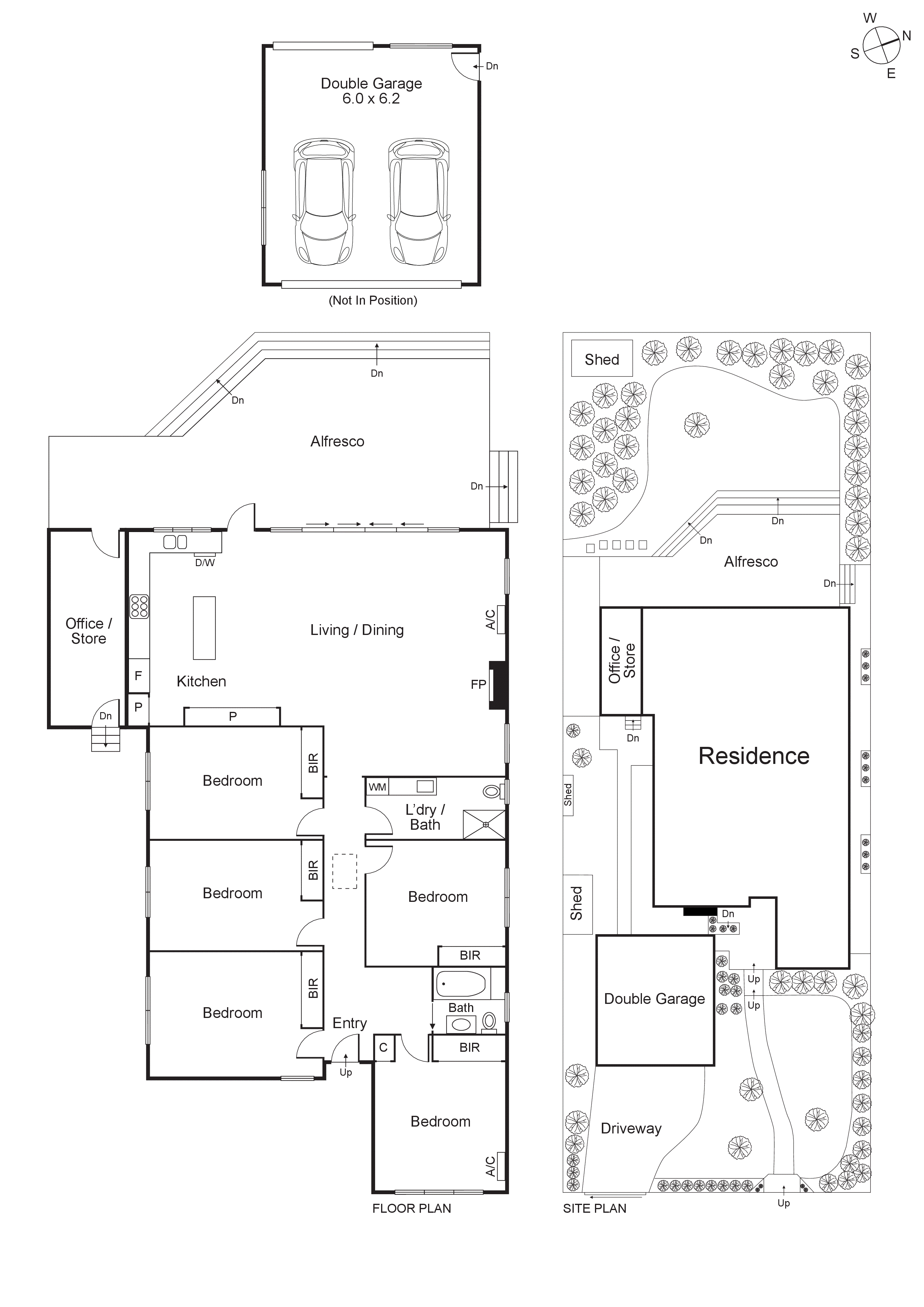
The glorious main bedroom has a cottage feel featuring enchanted front garden views, built-in wardrobes & an aircon, followed by the flexibility of four bedrooms with wardrobes, each with their own views - concluding with the choice of two bathrooms, one coastal style with a bath, the other a large chic family bathroom/laundry.
With new Tasmanian oak floors, a studio/craft or storage room with its own garden entrances, room for a trailer/equipment & a huge double garage with storage, you’re in the McKinnon primary & secondary zones, a walk to GESAC & local shops.
ALL ENQUIRIES MUST INCLUDE A CONTACT NUMBER. For more information, contact Chris Hassall at Buxton Glen Eira on 0412 898 990 or the Buxton Office on 9964 3737. ‘We have obtained all information in this document from sources we believe to be reliable; however, we cannot guarantee its accuracy. Prospective purchasers are advised to carry out their own investigation.’