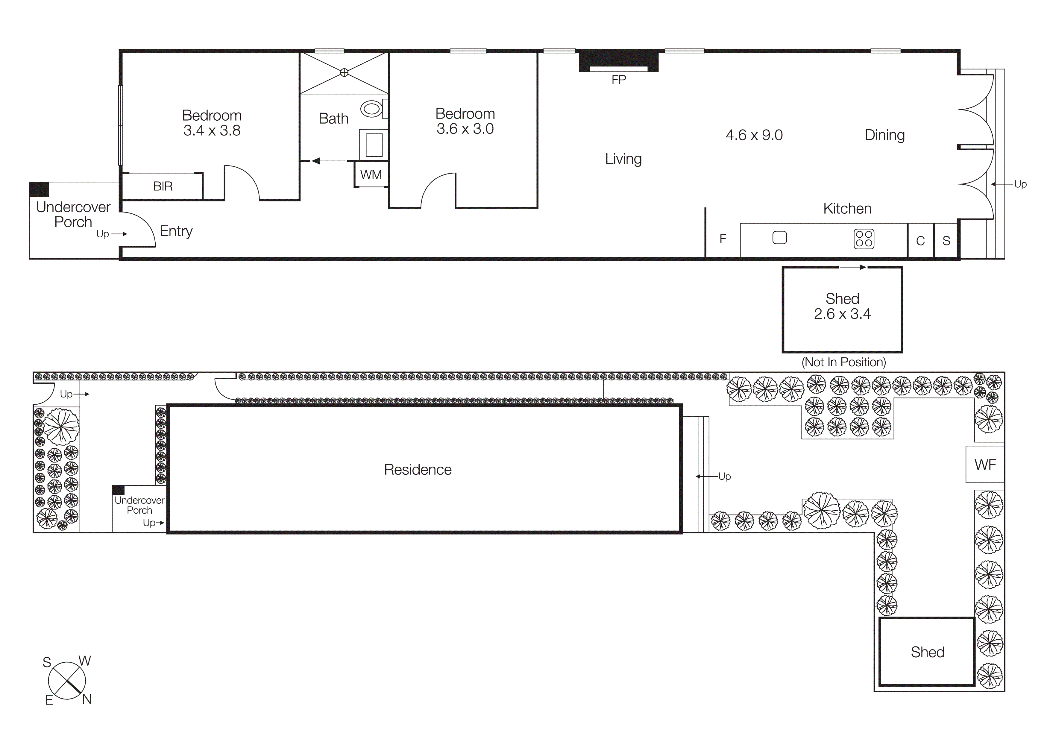
Hidden behind a secure high fenced entry, this renovated Art Deco semi and its lush garden surroundings create a secret single level sanctuary in an ideal location just a short stroll from all the St Kilda action.
Positioned on a deep 245sqm, charming original proportions are accompanied by impressively extended modern spaces and a private north...
Hidden behind a secure high fenced entry, this renovated Art Deco semi and its lush garden surroundings create a secret single level sanctuary in an ideal location just a short stroll from all the St Kilda action.
Positioned on a deep 245sqm, charming original proportions are accompanied by impressively extended modern spaces and a private north facing rear garden designed for easy indoor/outdoor entertaining. A deep timber lined hall flows past two spacious bedrooms, one with BIRs, and a central contemporary bathroom before the large north-facing living areas instantly impress with their abundant natural light, open fireplace, stainless steel kitchen featuring Ilve upright cooker, and gently elevated tree lined outlooks.
French doors unfold to the professionally landscaped garden with feature paved alfresco entertaining amidst leafy mature trees and lush bird of paradise. Further highlights include European laundry, ducted heating, high decorative ceilings, newly polished hardwood floors and freshly painted textured plaster walls.
From this prime pocket, close the front gate and stroll around the corner to St Kilda Botanic Gardens or down Smith Street to all the fun of the foreshore and iconic St Kilda Beach. Walk to Acland Street eateries, supermarket, Luna Park, the Palais Theatre and The Esplanade’s renowned bars, awarded foreshore restaurants, trams and more.