24a Stratford Avenue Bentleigh East now sold Built on the biggest scale, this brand new home is set apart by the small details! The latest groundbreaking residence from Centex Homes, this four...
24a Stratford Avenue Bentleigh East now sold
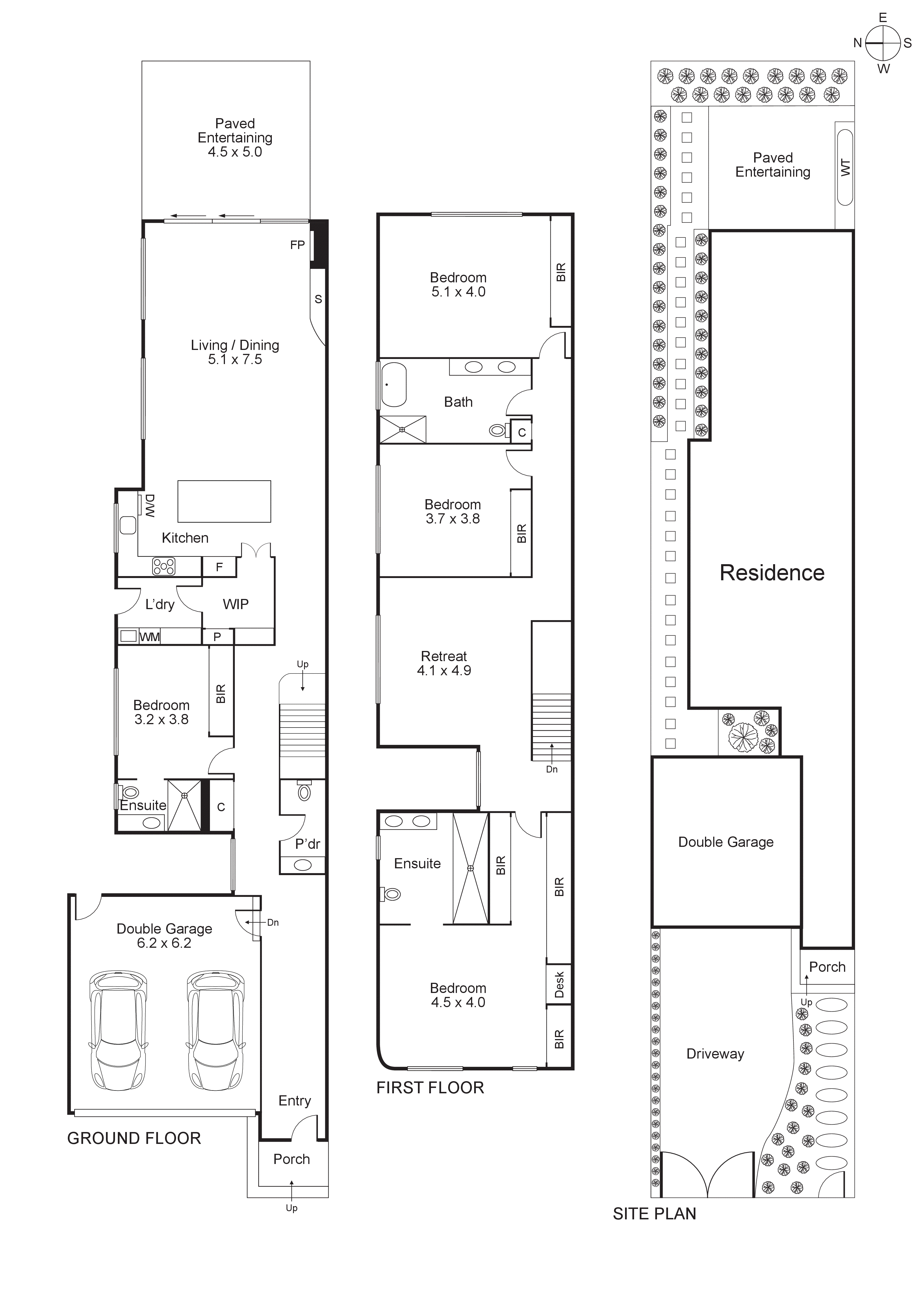
Built on the biggest scale, this brand new home is set apart by the small details! The latest groundbreaking residence from Centex Homes, this four bedroom, 3.5 bathroom home sets the standard in prestige family living with an expansive dual zone, dual suite design characterized by the highest quality and finest detailing. Opening in curvaceous style and centered on atrium picture-windows upstairs and down, this breathtaking home rises above vast living-dining with a sculptural feature stair to a similarly generous first-floor lounge...and puts the emphasis on family harmony with a vast main-domain beyond a corridor of fitted robes, and a ground-floor suite to fit the biggest blended, extended and hospitable family.
Appointed to the highest quality with Smeg appliances (plus an integrated French-door fridge-freezer) for the state-of-the-art kitchen, the home features every prestige appointment from individual climate-control to alarm plus video-intercom, to high-specification double-glazing, to endless storage including full-height linen-presses and robes. Detailed with the finest stone, tile and timber finishes, it's the fine attention to detail that really stands out here with Oak floors laid in a subtle herringbone pattern, to authentic natural stone benchtops impeccably matched to porcelain tiles (floor-to-ceiling for the bathrooms), to the latest pebbled carpets and designer lighting including strip-pendant and dot fixtures).
But it's not just about the finishes, the outstanding detail extends to the design too; with a ‘secret’ butler’s pantry wrapping a to a sizeable separate laundry, curvaceous paneling wrapping feature walls, multiple dual-vanity bathrooms, and soaring skylights lighting hallway and stairway areas. Optioned up with a freestanding barbecue kitchen on the bluestone-paved rear terrace and wide driveway parking plus double auto garage out front.
Zoned for in-demand Coatesville Primary School and located for an active life close to Bailey Reserve and GESAC, this benchmark home has a leading lifestyle location too - with major bus-routes close (including to Monash University), stations and cosmopolitan hospitality strips within minutes, and Chadstone shopping centre just a couple of minutes more. For further information on this beautifully detailed home contact Simon Wood at Buxton Bentleigh on 0422 789 110 or the Buxton Office on 9563 9933. ALL ENQUIRIES MUST INCLUDE A CONTACT NUMBER.
