Significant proportions & a superb location are cornerstones of this extensive family residence with room enough for the largest of families & with separate wings & a great outdoors, it simply must be seen.
Large, light filled living begins in a formal dining room with an original cast iron fireplace & classic elements of the era -...
Significant proportions & a superb location are cornerstones of this extensive family residence with room enough for the largest of families & with separate wings & a great outdoors, it simply must be seen.
Large, light filled living begins in a formal dining room with an original cast iron fireplace & classic elements of the era - interconnecting with a contemporary kitchen with an enormous stone topped servery, stainless-steel appliances & a generous meals area.
With a natural flow into the ambient casual living room, these living spaces are an ideal place to entertain on a grand scale.
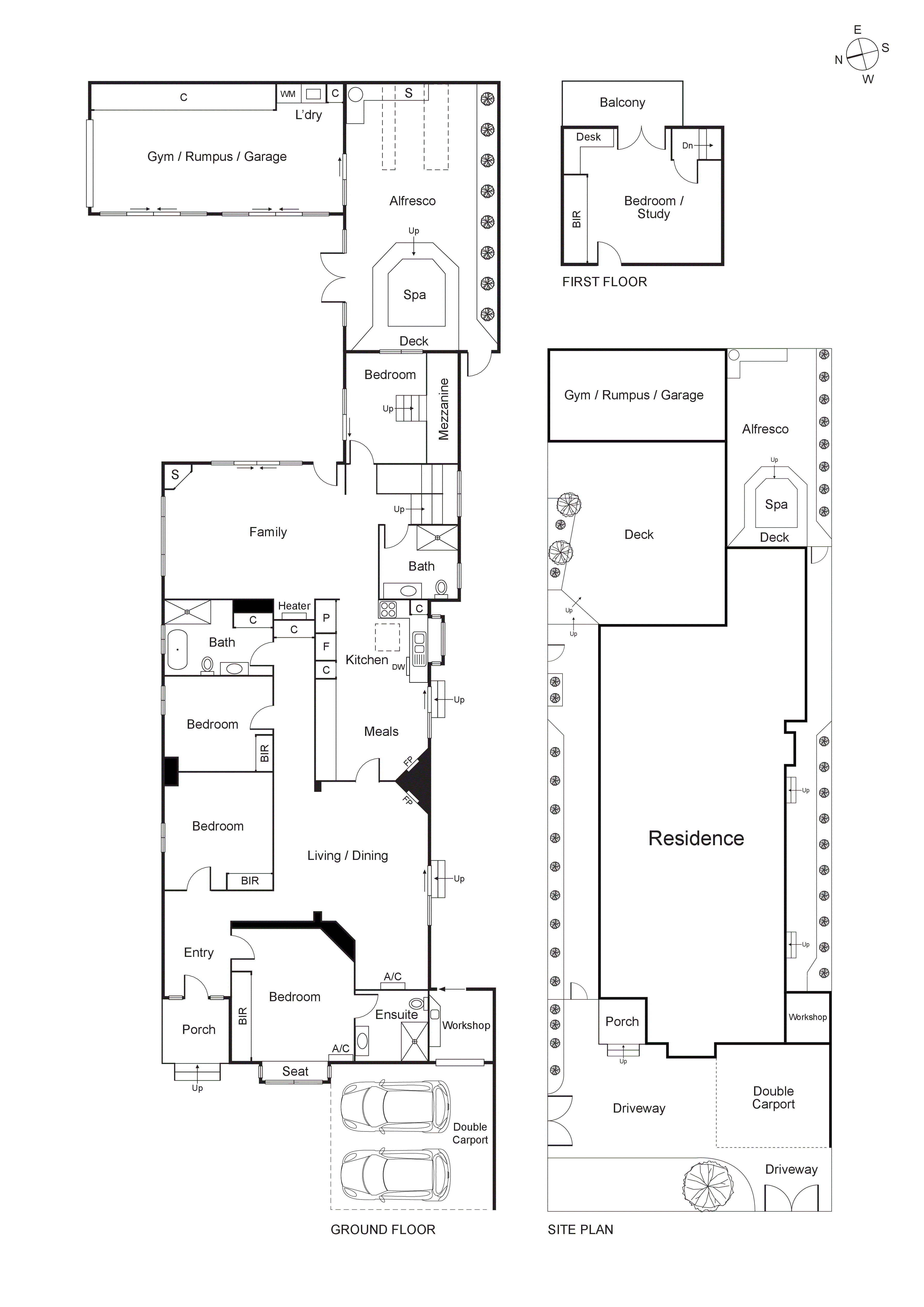
A totally unique indoor/outdoor environment features established trees surrounding a huge deck for year-round living & an L-shaped room/studio apartment with a spa, superb lounge area & sink, connecting with another flexible space with its own garage entrance off Cross street - perfectly suited as a gym, kids’ zone or work from home opportunity.
The generous accommodation is further enhanced by the main bedroom suite with a bay window with drawers, loads of built-in wardrobes & super stylish grey & white themed ensuite. Set well away, two fitted bedrooms & a hotel like bathroom with a frameless shower & freestanding bath add to the allure.
At the rear, another bedroom with an in-built mezzanine, a chic bathroom with feature tiles & loft with a fully secure/lockable study concludes an absolute one off.
Amenities include two street entrances, Heat & Glo & Arrow fireplaces, ceilings fans throughout, plantation shutters, split systems, ducted heating, multiple car spaces & more in a highly sought area a minutes walk to Elsternwick primary school, in the Elwood primary & secondary zones, metres from Elsternwick Park, a walk to Martin Street & Elsternwick Villages with a plethora of eateries & cafes, even the beach.
ALL ENQUIRIES MUST INCLUDE A CONTACT NUMBER. For more information, contact Chris Hassall at Buxton Glen Eira on 0412 898 990 or the Buxton Office on (03) 9964 3737
‘We have obtained all information in this document from sources we believe to be reliable; however, we cannot guarantee its accuracy. Prospective purchasers are advised to carry out their own investigation.’