In exclusive boutique Nautilus, one of the beachfront’s most tightly held buildings, the inspired design of this two bedroom apartment (160sqm approx.) ensures its magnificent living and entertaining areas are not only large and luxurious, but are surrounded on three sides by spectacular north easterly views that stretch from the Bolte Bridge to...
In exclusive boutique Nautilus, one of the beachfront’s most tightly held buildings, the inspired design of this two bedroom apartment (160sqm approx.) ensures its magnificent living and entertaining areas are not only large and luxurious, but are surrounded on three sides by spectacular north easterly views that stretch from the Bolte Bridge to the CBD skyline.
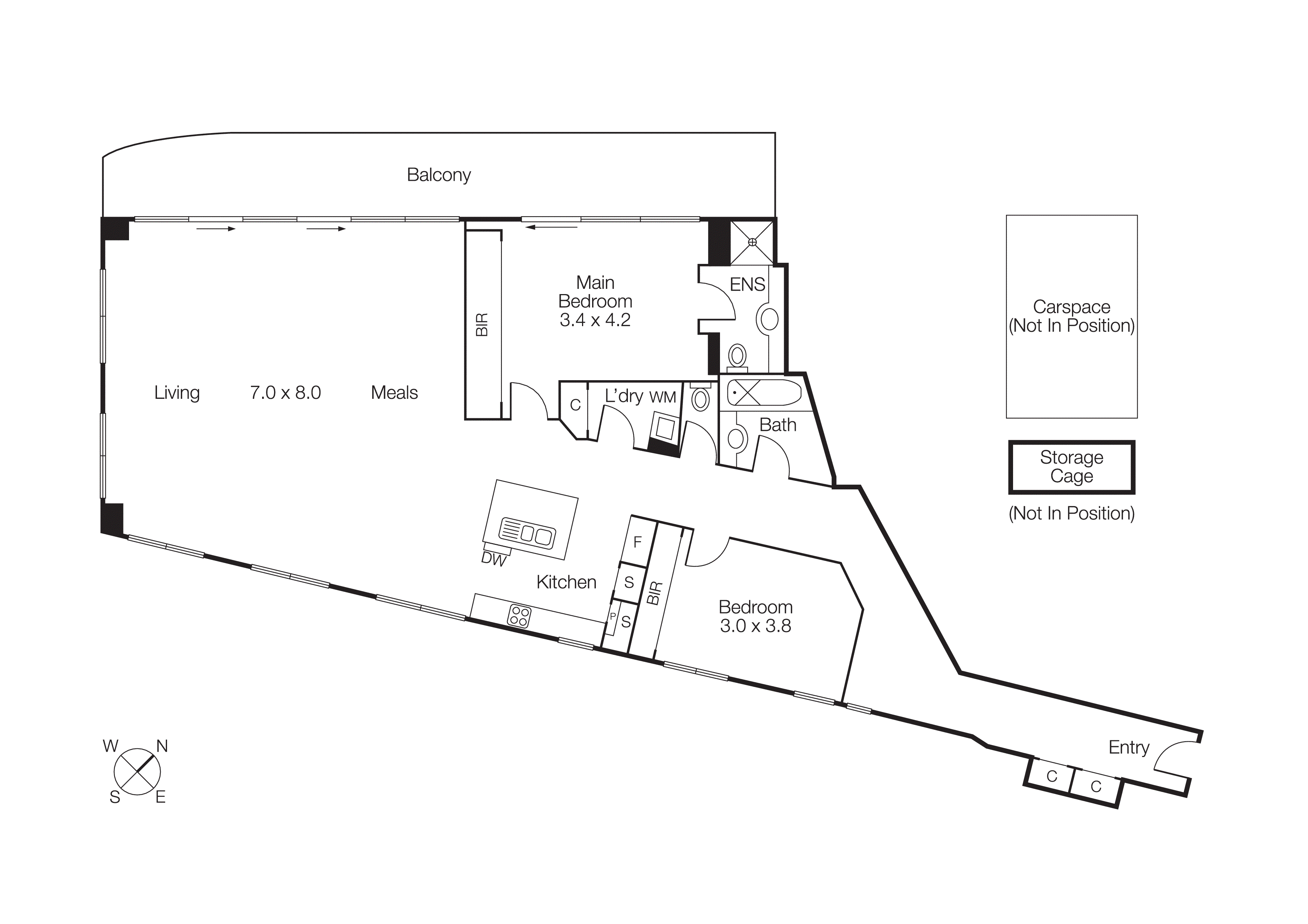
Enjoying an “end of hall” position on the six-only sixth floor, a very deep entry hall with excellent storage creates a superb sense of sanctuary for the impeccably presented, light-filled accommodation beyond. Two bedrooms with mirrored BIRs, an immaculate bathroom with separate WC and the prize of a dedicated laundry follow, preceding a generous gourmet kitchen with central island, the expansive open plan living and dining areas and their equally impressive undercover entertaining terrace with water outlooks all perched amidst the views.
Quality is revealed in a large main bedroom with BIRs, ensuite and private terrace access, fully equipped stone-topped entertaining kitchen with abundant storage, extensive glazing throughout including sliding glass doors retracting for indoor/outdoor entertaining, ducted heating/cooling, new carpet, intercom security, lift access, secure basement parking and storage cage plus building amenities that include a pool and EV charging facilities direct at the car space allocated the unit.
Walk across the road to Port Melbourne Beach, foreshore walking and cycle paths, and Bay Trails, stroll along the foreshore to Bay Street’s renowned boutiques, bars and eateries, Station Pier restaurants or light rail links to the CBD.