In Port Melbourne’s exclusive Beacon Cove precinct, this four bedroom plus study luxury home has been cleverly designed to make the utmost of its prime position directly accessing Garden City Reserve at the rear. Occupying a generous yet low maintenance parcel, premium family accommodation places its multiple living and indoor/outdoor entertaining...
In Port Melbourne’s exclusive Beacon Cove precinct, this four bedroom plus study luxury home has been cleverly designed to make the utmost of its prime position directly accessing Garden City Reserve at the rear. Occupying a generous yet low maintenance parcel, premium family accommodation places its multiple living and indoor/outdoor entertaining zones on the first floor where a north facing aspect ensures uninterrupted sunshine and unforgettable parkland views all year round.
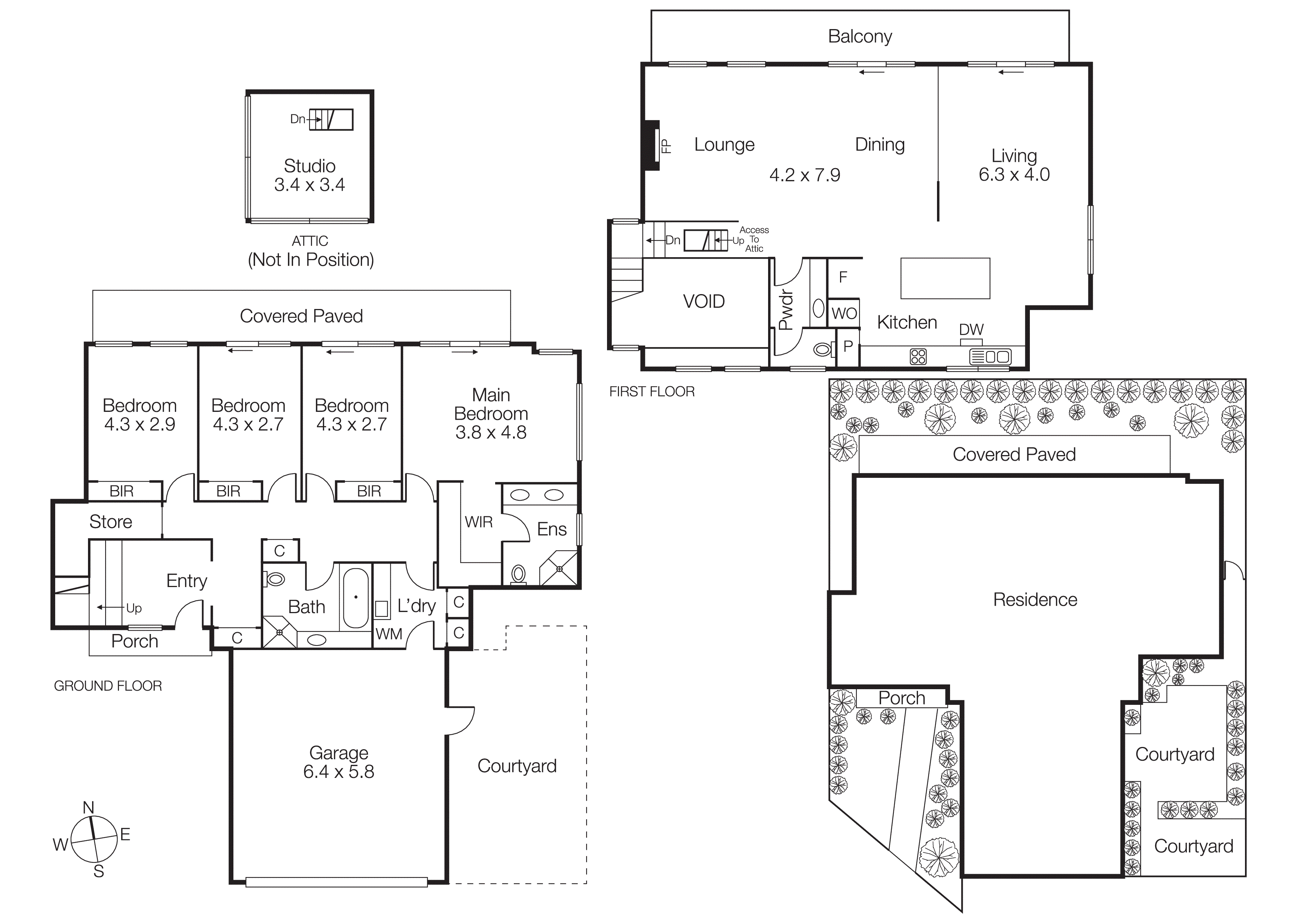
Tucked away in a peaceful, private enclave, a stylish entry introduces four spacious ground floor bedrooms, three with excellent BIRs served by a full size family bathroom, the main forming its own retreat with a walk-in robe, double ensuite, sitting area and sliding doors to tranquil undercover alfresco areas and the parkland beyond. Expanding out across the entire first floor, two large open plan living zones offer fabulous family flexibility, one with fireplace, before two sets of sliding glass doors unfold to a broad alfresco entertaining terrace above the adjoining parkland. A fully equipped granite kitchen also shares the views as does a top floor studio/attic perfect as a quiet work from home domain or fifth bedroom.
Further highlights include stone topped bathrooms with excellent storage, first floor powder room, laundry, ducted heating/cooling, timber floors, multiple alfresco areas set in leafy landscaping and internally accessed remote double garage.
Walk across the park to Port Melbourne Primary, enjoy a short stroll to the beach and light rail links with minutes to Bay Street and Fishermans Bend Shopping Centre.