Brimming with designer flair, this Californian dream has been reimagined into an oasis of modern family style. Inspired by the effortless luxury of Morocco and Palm Springs, this home offers a...
Brimming with designer flair, this Californian dream has been reimagined into an oasis of modern family style. Inspired by the effortless luxury of Morocco and Palm Springs, this home offers a tranquil retreat where daily stresses simply melt away. Nestled in a private leafy setting with a heated pool/spa and separate home office, and positioned within walking distance to schools, the village, parks, and the beach, this fully renovated property promises immediate enjoyment
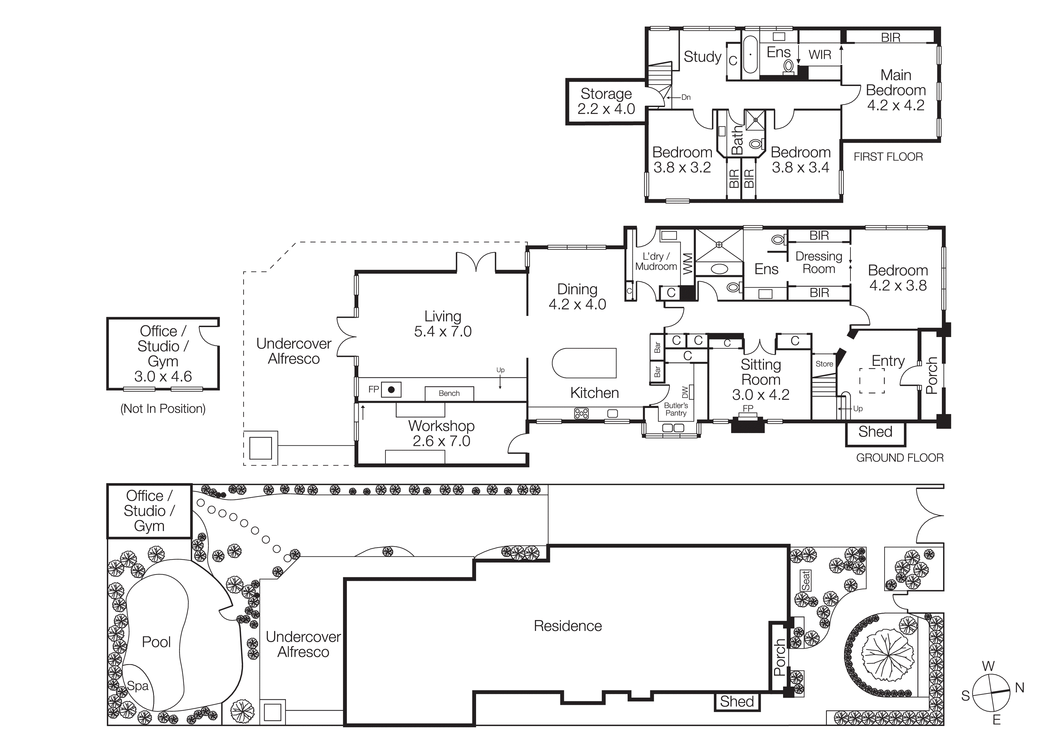
Collaborating with Australian artist Prudence Caroline, the style-savvy owners have thoughtfully crafted every detail to be both visually stunning and supremely functional. A soaring skylight bathes the grand entrance foyer in natural light, introducing the home’s exceptional finishes and high-end details. The versatile four-bedroom, three-bathroom layout unfolds seamlessly, providing superbly zoned family living.
Pale oak flooring flows gracefully through elegant archways, connecting an inviting sitting room or kids’ lounge, a custom-designed kitchen, and an expansive indoor-outdoor family domain. The kitchen is a showpiece with calming seafoam hues, a hand-poured concrete island bench, an Ilve freestanding cooker, and a full-size butler’s pantry. Choose to dine beneath a stunning African pendant light, at the island’s custom dining extension, or outdoors in the al fresco pavilion by the heated pool and spa - this home is designed to entertain.
Offering sought after flexibility with a luxurious main bedroom suite on each level, both featuring walk-in robes and fully tiled ensuites reminiscent of an indulgent day spa. A sculptural staircase leads to two additional bedrooms with built-in robes, a light-filled study area, and a luxe family bathroom. A powder room, fully fitted laundry and mudroom, plus a lockable home office, gym, or studio by the pool and a large workshop, complete the family-focused amenities.
Blending modern comforts, such as ducted heating/cooling, keyless entry, and auto-gated parking, with charming period details like leadlight windows and vaulted ceilings, this home radiates incomparable style. Situated in a highly coveted North Brighton location, it’s just minutes from Elsternwick Primary, St James’ Primary, Star of the Sea, Martin Street Village, Gardenvale Station, Elsternwick Park, and the beach - a lifestyle address families dream of.
For more information about this beautiful bespoke bungalow please contact Stefan Whiting at Buxton Brighton on 0411 473 153.
