Immerse yourself in beachside luxury with this sophisticated family entertainer, situated in a highly sought-after lifestyle pocket, mere moments from the pristine sand. Beyond the natural limestone façade and beautiful gardens, discover a flowing, single-level layout that surrounds you with contemporary coastal class. From its stunning timber,...
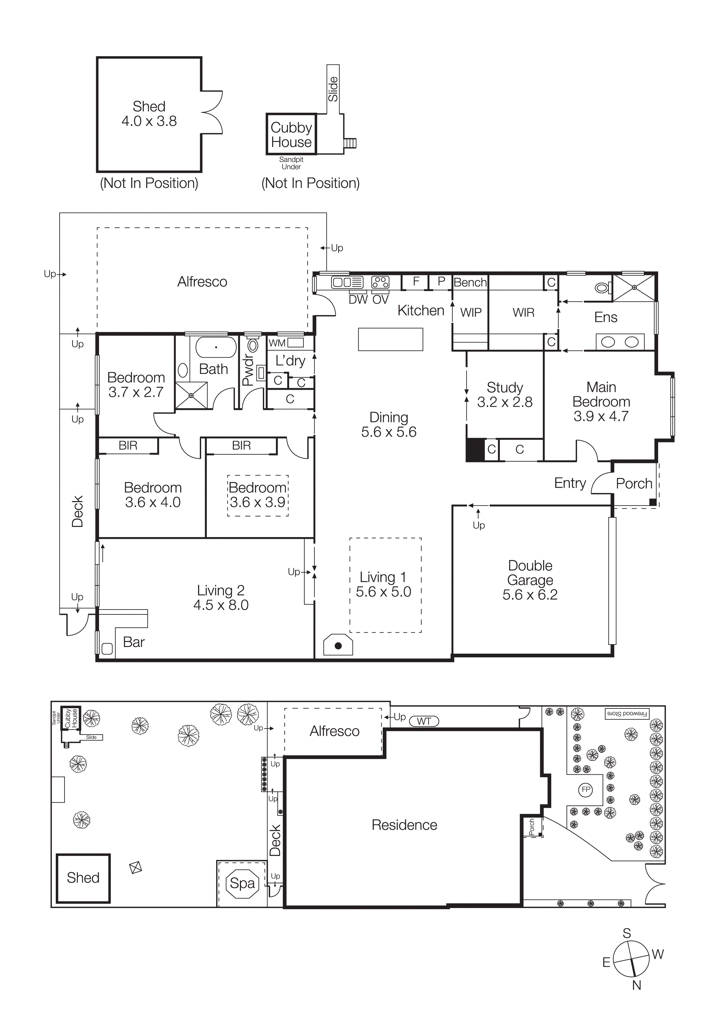
Immerse yourself in beachside luxury with this sophisticated family entertainer, situated in a highly sought-after lifestyle pocket, mere moments from the pristine sand. Beyond the natural limestone façade and beautiful gardens, discover a flowing, single-level layout that surrounds you with contemporary coastal class. From its stunning timber, stone and brass accents to the premium wool carpet and polished concrete flooring, you’ll also love the high ceilings and Velux skylights. Offering the ultimate family space to unwind and relax, the expansive open-plan living and dining area is enhanced by the warmth of a wood heater, flowing through gorgeous barn doors to reveal a second living zone/games room with a wet bar. The gourmet kitchen will delight families who love to host, featuring an induction cooktop, integrated Miele dishwasher and walk-in pantry, while the dedicated study offers a quiet space to work from home. Accommodation is plentiful with four bedrooms and two bathrooms, the master retreat with stylish plantation shutters, a walk-in robe and luxurious walk-in rain shower ensuite. The children’s wing is privately nestled at the rear and includes three robed bedrooms, a family-sized bathroom and separate powder room. Outside, a backyard paradise provides plenty of space for kick-to-kick and an elevated cubby house with a slide for hours of fun, along with an outdoor spa and shower promising relaxed bliss. Enhanced by ‘ModWood’ composite decking, the maintenance-free entertaining alfresco is the perfect space for barbecues, ideal with its motorized retractable awning for year-round hosting. Prestige appointed with a Daikin 20kW reverse cycle ducted heating/cooling system with touchscreen and MyAir app control, plus a 6-star energy rating, UPVC double-glazed windows and two 5,000-litre water tanks. Further adding to the appeal is a rooftop attic with ladder, ceiling fans, rear automatic outdoor shutters, a double remote garage with internal entry, a powered shed … and so much more! As for a golden family location, within a short stroll, you'll find Kananook Reserve, Playground, Train Station, Primary School and pedestrian access across to breathtaking Seaford Beach.