Courting a premier position at the top of a tightly held cul-de-sac, this captivating mid-century home offers exceptional possibilities just metres from Brighton’s Golden Mile beachfront, Yacht Club, and Sea Baths. An outstanding opportunity awaits to elevate the existing three-bedroom home with contemporary refinement or create a modern family...
Courting a premier position at the top of a tightly held cul-de-sac, this captivating mid-century home offers exceptional possibilities just metres from Brighton’s Golden Mile beachfront, Yacht Club, and Sea Baths. An outstanding opportunity awaits to elevate the existing three-bedroom home with contemporary refinement or create a modern family masterpiece (STCA), with either option ensuring strong investment appeal in this blue-chip locale.
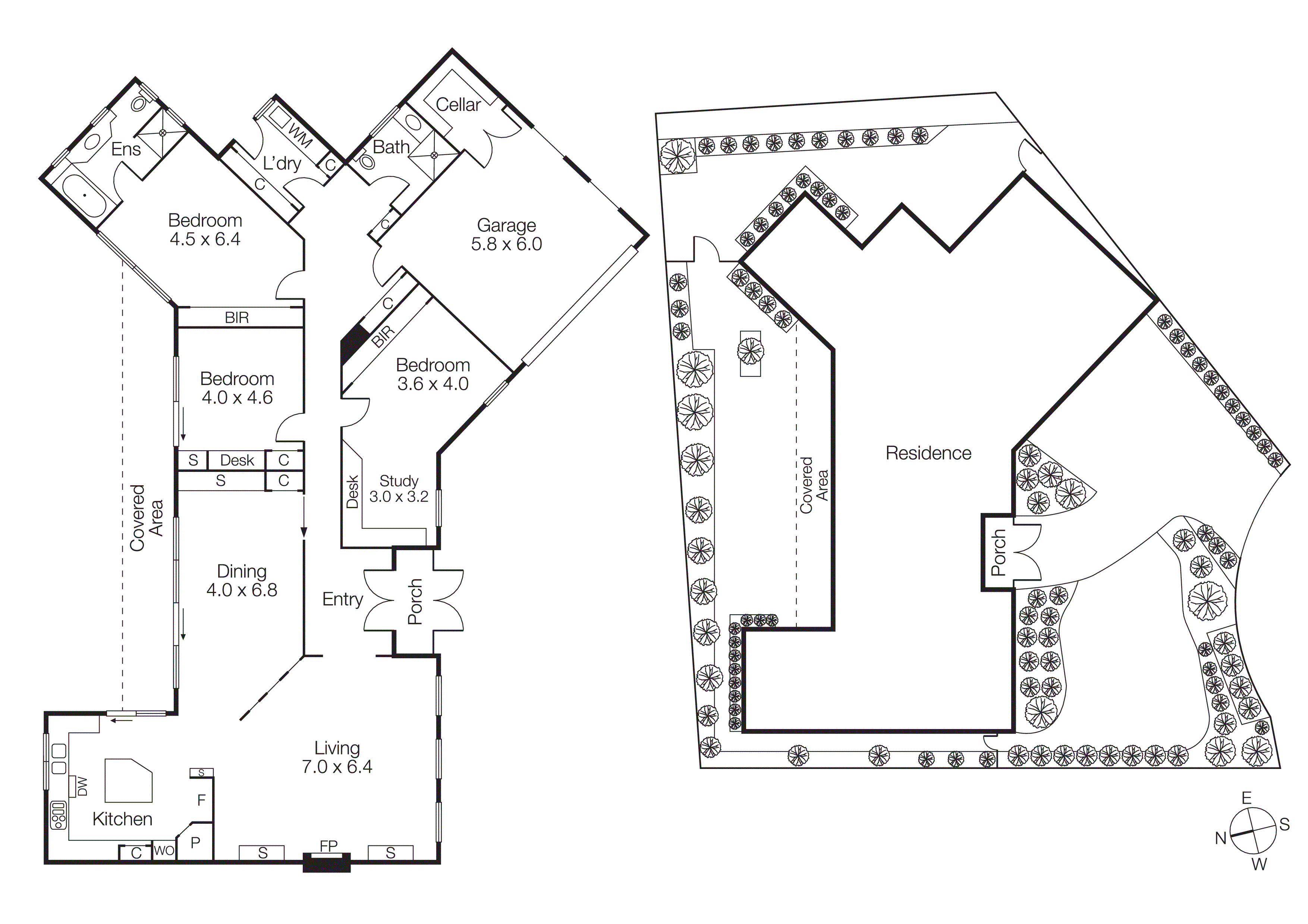
Set within a glorious 664sqm (approx.) garden setting, the home makes a striking introduction with its sweeping frontage and sun-soaked north-rear aspect. A secure entry enhances privacy and grandeur, while capturing the bay breeze at the end of a summer’s day. Custom-designed in the 1960s around a northern courtyard, this single-level residence balances the era’s enduring charm with a previous renovation featuring bespoke details, a gas open fireplace, and extensive storage throughout.
Floor-to-ceiling windows frame lush garden outlooks from every room, while a chef’s kitchen, boasting a granite island bench and Gaggenau cooktop, commands attention between the expansive living and dining areas. Triple glass sliders extend the interiors to a beautifully private, outdoor entertaining zone. Three generously robed bedrooms include a deluxe main suite with a granite vanity and spa ensuite, while the granite-detailed primary bathroom and full-size laundry add further functionality.
Recently upgraded ducted heating and cooling, along with a remote double garage complete with a temperature-controlled wine cellar, enhance the comfort and ease of this solid-brick home. Meticulously maintained and superbly positioned, this is a lifetime opportunity to secure a prized address, mere moments from elite schools such as Brighton Grammar and Firbank, as well as the shopping, dining, cinemas, and transport options of Church and Bay Streets.
For more information about this mid-century home by the bay please contact John Clarkson at Buxton Brighton on 0408 153 045.