Positioned in a prime Yarraville location, this two-bedroom home offers a fantastic opportunity for first-home buyers, investors, or renovators looking to add their personal touch.
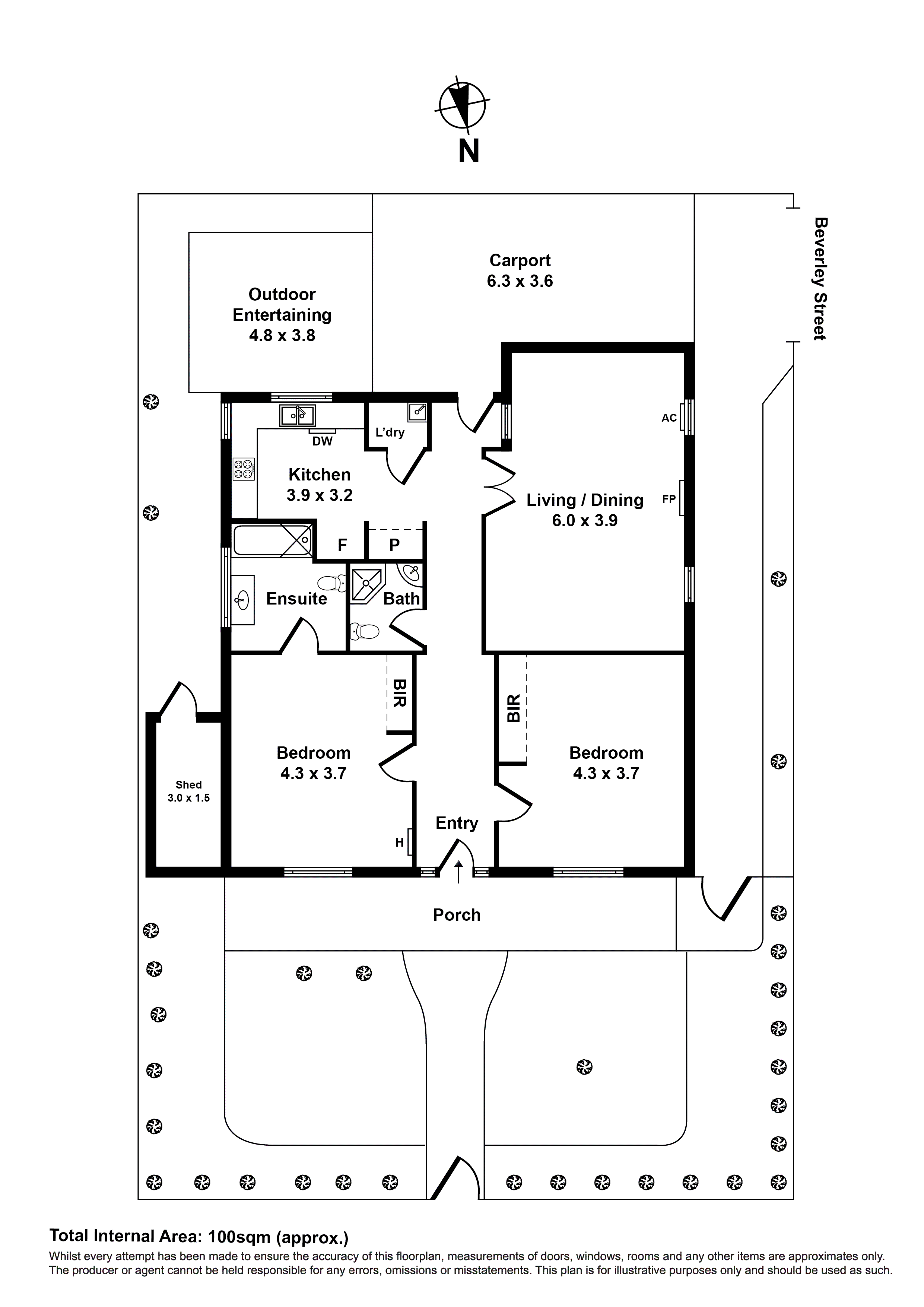
At the front of the house, both bedrooms feature built-in robes, with the master enjoying the convenience of an ensuite. A central bathroom services the home, while a...
Positioned in a prime Yarraville location, this two-bedroom home offers a fantastic opportunity for first-home buyers, investors, or renovators looking to add their personal touch.
At the front of the house, both bedrooms feature built-in robes, with the master enjoying the convenience of an ensuite. A central bathroom services the home, while a separate living and dining area provides a comfortable space for relaxation. The living area is enhanced floating timber floorboards, split-system heating and cooling, along with a charming gas log fire. The kitchen is positioned at the rear, leading to a fully enclosed, low-maintenance backyard with an undercover carport accessed via Beverley Street. Additional conveniences include a Euro laundry and brand-new carpets in the bedrooms.
Retaining its charming heritage features, this home is ripe for renovation, offering endless possibilities to enhance its character. With new fencing on the east and west boundaries, the property is well-maintained and ready for its next chapter.
The location is second to none—just a 10-minute walk to Yarraville train station for easy city access, moments from the vibrant Yarraville Village with its renowned cafés, restaurants, and boutique shops, as well as the convenience of Yarraville Square. Zoned for the highly sought-after Yarraville West Primary School, this is an opportunity not to be missed.
Don't miss your chance to secure this charming home in one of Melbourne’s most desirable pockets. Contact us today for more information!