Step into the next level of luxury and lifestyle with this architecturally designed townhouse—where sophisticated style meets innovative, low-maintenance living. Rising to rare heights this...
Sharing Listing
B 4 b 3 C 2
Buxton Glen Eira
319 Neerim Road,
Carnegie
3163
Step into the next level of luxury and lifestyle with this architecturally designed townhouse—where sophisticated style meets innovative, low-maintenance living. Rising to rare heights this...
Step into the next level of luxury and lifestyle with this architecturally designed townhouse—where sophisticated style meets innovative, low-maintenance living.
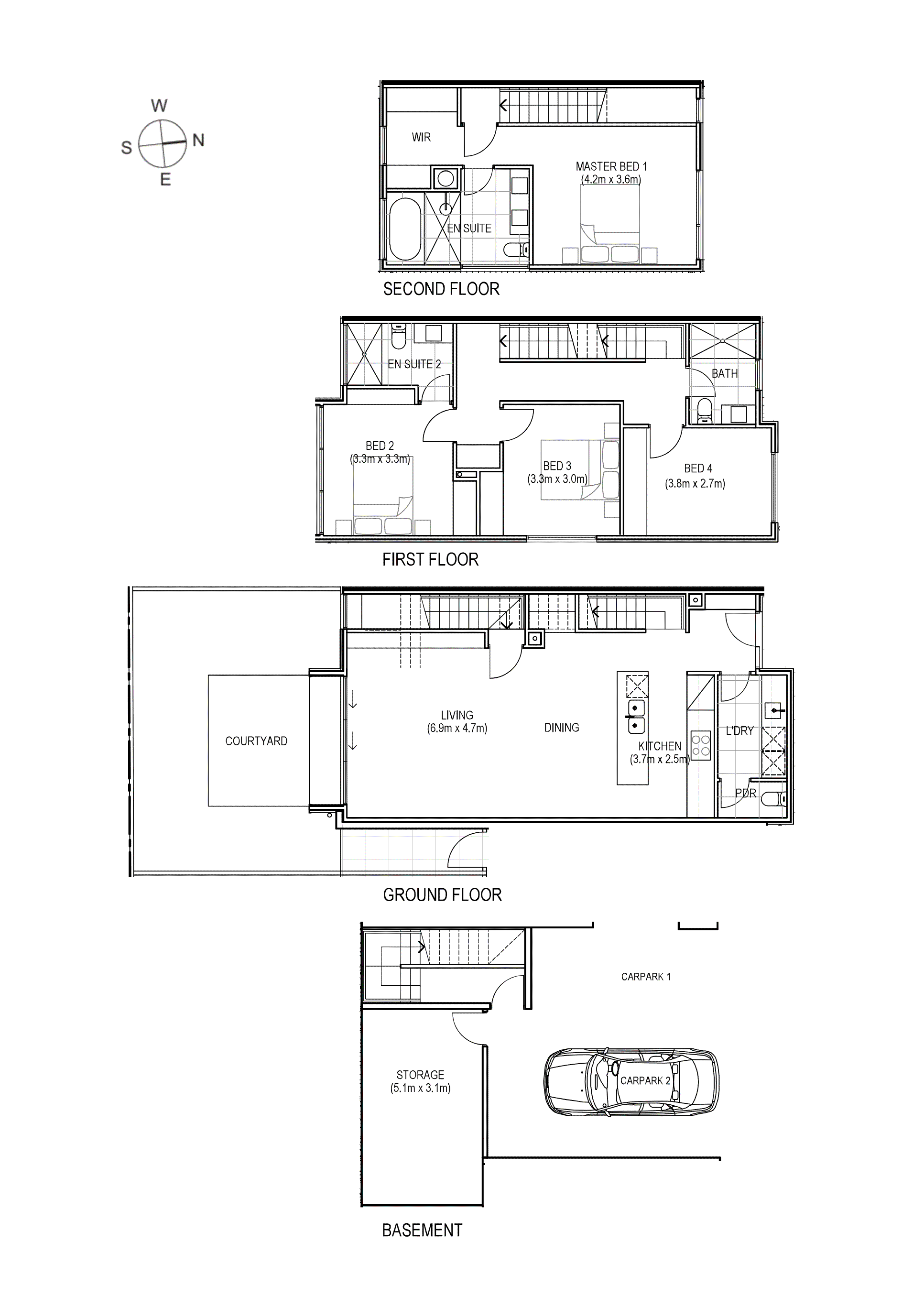
Rising to rare heights this spectacular four bedroom, 3.5 bathroom, dual-suite home takes lock-and-leave family living to new heights with an innovative three-level design that extends sun-filled living-dining out to an entertainers’ terrace, gives parents peace and privacy in a top floor master-level, and zones kids in between with a clever second suite.
A showcase of high design with a state-of-the-art Bosch appliance kitchen (with integrated dishwasher) facing living across a stone-wrapped bench, there are fabulous feature-tiled bathrooms including a 5 Star dual-vanity principal ensuite (with freestanding bath) and immense storage including custom-fitted robes (walk-in for the master). Designer detailed with Calacatta-style stone benchtops and coastal oak floors, this outstanding home features the softest pebbled wool carpets and the latest brushed brass tapware and hardware.
Fully climate-controlled and secured by key-pad and video entry, this high design is elevated even more by two side-by-side basement garage spaces alongside a huge storeroom.
Situated on the edge of Bentleigh East’s Centre Rd. shopping strip, there’s even a high-amenity location; just around the corner from cafes and cosmopolitan shopping, steps to the bus to stations and Chadstone’s world-class shopping, and a splash to GESAC and Bailey Reserve.
For further information on this just completed townhouse contact Melissa Hetherington on 0432 935 111.
ALL ENQUIRIES MUST INCLUDE A CONTACT NUMBER.
Step into the next level of luxury and lifestyle with this architecturally designed townhouse—where sophisticated style meets innovative, low-maintenance living.
Rising to rare heights this spectacular four bedroom, 3.5 bathroom, dual-suite home takes lock-and-leave family living to new heights with an innovative three-level design that extends...
Step into the next level of luxury and lifestyle with this architecturally designed townhouse—where sophisticated style meets innovative, low-maintenance living.
Rising to rare heights this spectacular four bedroom, 3.5 bathroom, dual-suite home takes lock-and-leave family living to new heights with an innovative three-level design that extends sun-filled living-dining out to an entertainers’ terrace, gives parents peace and privacy in a top floor master-level, and zones kids in between with a clever second suite.
A showcase of high design with a state-of-the-art Bosch appliance kitchen (with integrated dishwasher) facing living across a stone-wrapped bench, there are fabulous feature-tiled bathrooms including a 5 Star dual-vanity principal ensuite (with freestanding bath) and immense storage including custom-fitted robes (walk-in for the master). Designer detailed with Calacatta-style stone benchtops and coastal oak floors, this outstanding home features the softest pebbled wool carpets and the latest brushed brass tapware and hardware.
Fully climate-controlled and secured by key-pad and video entry, this high design is elevated even more by two side-by-side basement garage spaces alongside a huge storeroom.
Situated on the edge of Bentleigh East’s Centre Rd. shopping strip, there’s even a high-amenity location; just around the corner from cafes and cosmopolitan shopping, steps to the bus to stations and Chadstone’s world-class shopping, and a splash to GESAC and Bailey Reserve.
For further information on this just completed townhouse contact Melissa Hetherington on 0432 935 111.
ALL ENQUIRIES MUST INCLUDE A CONTACT NUMBER.
Buxton Glen Eira
319 Neerim Road,
Carnegie
3163
We'll give you a clear, honest assessment based on real market insights, so you can make informed decisions with confidence.
Local knowledge. Proven results. Trusted advice.
