Transformed from sweet period charmer to show-stopping inner city residence, this fully renovated Art Deco home is now a stylish indoor/outdoor sanctuary completely in sync with contemporary living.
Perfectly peaceful and private on a high fenced north facing corner, original proportions retain their classic elegance whilst a brand new kitchen...
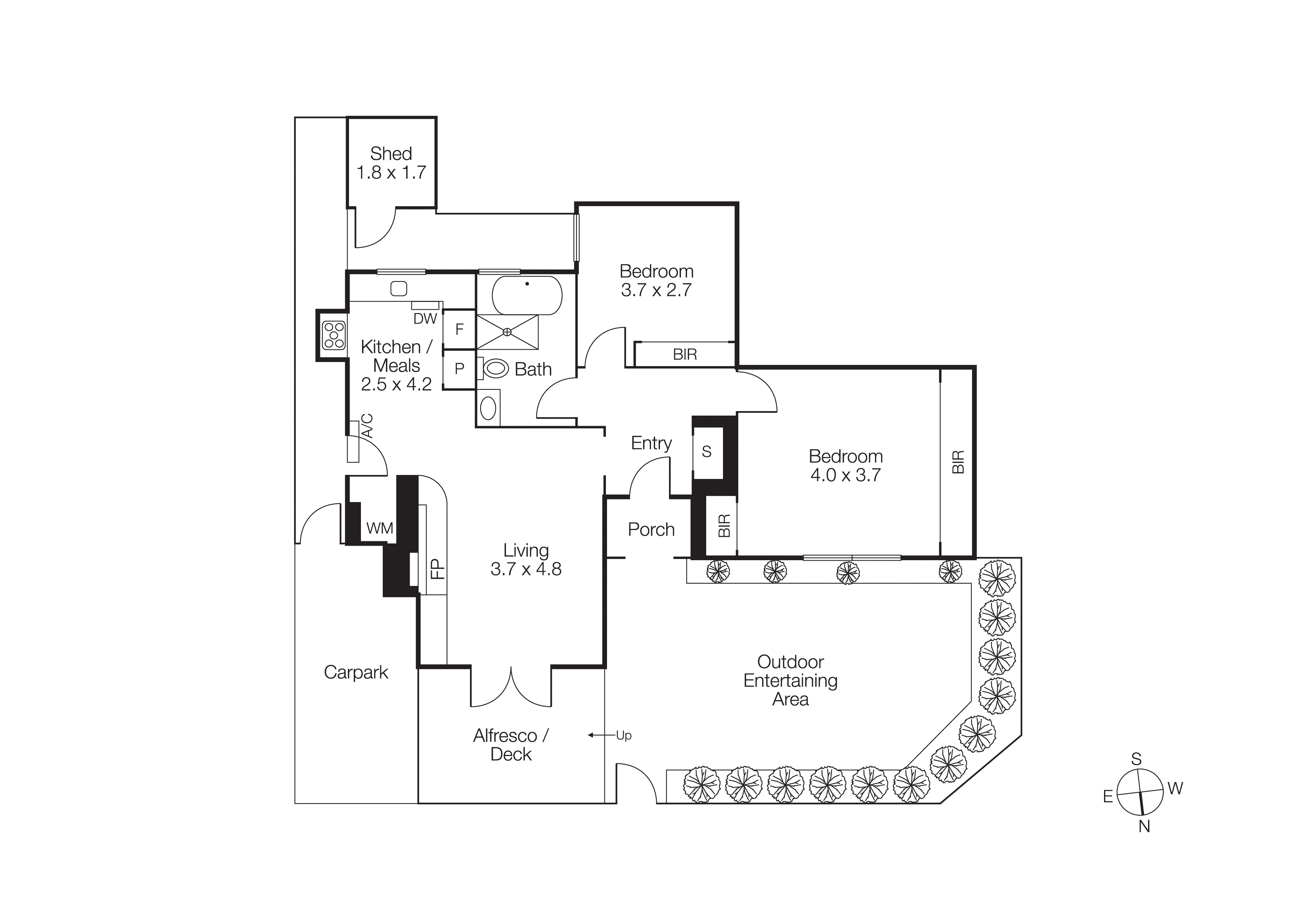
Transformed from sweet period charmer to show-stopping inner city residence, this fully renovated Art Deco home is now a stylish indoor/outdoor sanctuary completely in sync with contemporary living.
Perfectly peaceful and private on a high fenced north facing corner, original proportions retain their classic elegance whilst a brand new kitchen and bathroom, and a series of inspired updates add sophisticated style and effortless contemporary functionality. Step through the secure gated entry and enter a world tailor made for quiet relaxation or easy entertaining with a leafy sunfilled courtyard and dedicated entertaining deck gently elevated to ensure a seamless transition from inside’s outstanding living areas.
Pass by the enchanting façade and through the front foyer to two bedrooms with BIRs, the larger main made even more impressive by extensive BIRs and courtyard views. A super smart bathroom featuring a double head walk-in shower, soaker bath and designer lighting mirrors the attention to detail of the stone finished kitchen where a brilliant 900ml freestanding cooker, butler’s sink and clever integration of fridge/freezer and dishwasher complete a clean, crisp aesthetic. Beyond, open free flowing living and dining areas gather around an original open fire place and its chic concrete wood storage on their way out to the irresistible BBQ deck and secure paved courtyard.
Further highlights include a second courtyard with shed/storage, premium Fisher & Paykel kitchen appliances, split heating/cooling, high decorative ceilings, original timber floors and off street parking. Walk to an incredible range of attractions including favourite local cafes, Chapel Street Windsor, Carlisle Street Balaclava, three tram lines, trains, Alma Park and more. Hurry, you’ll have to be quick!