Charming Home in Prime Spotswood Location
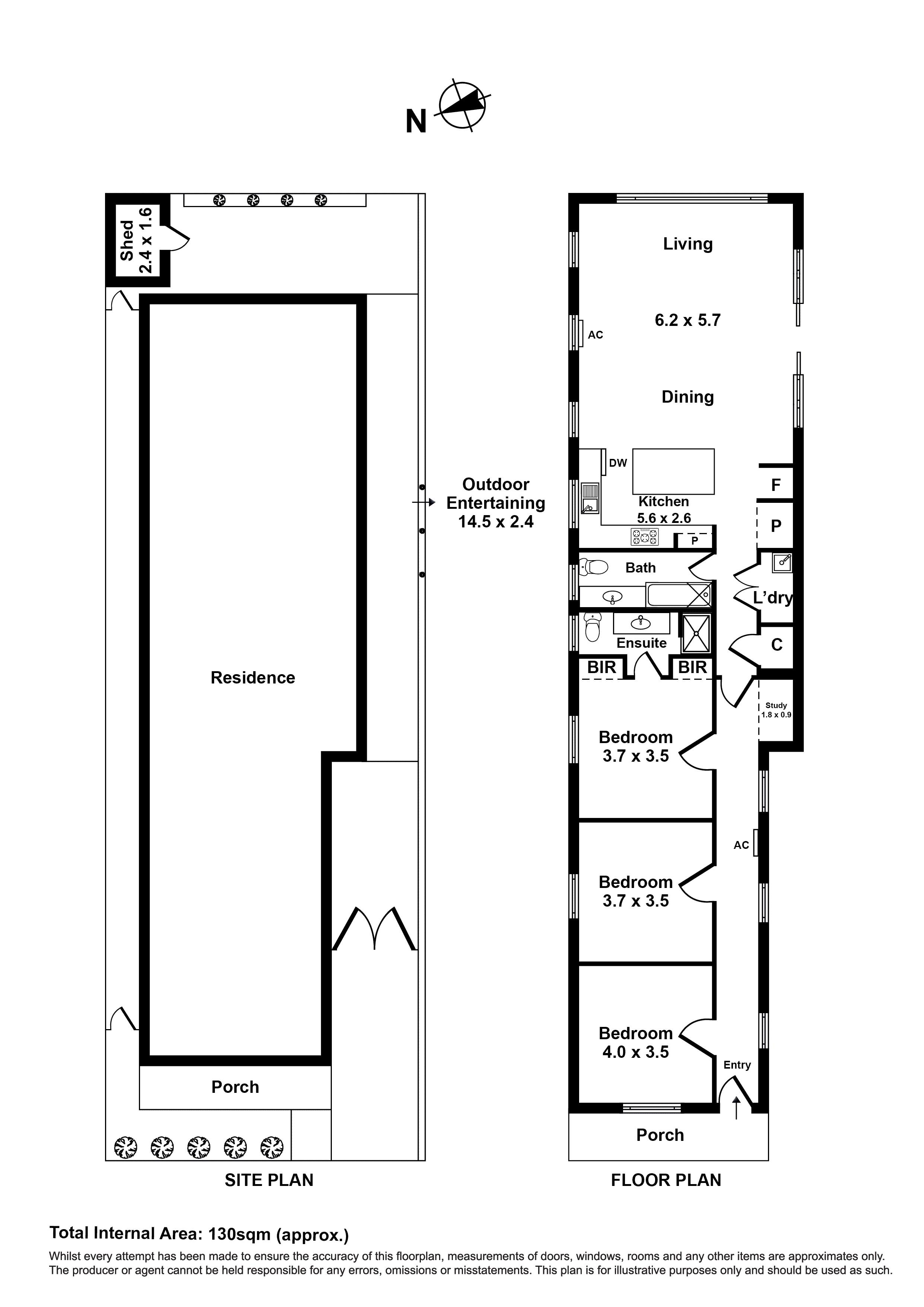
This charming single-fronted weatherboard home perfectly blends comfort, style, and convenience. With three generously sized bedrooms, including a master suite with its own ensuite and built-in robes, this home offers an inviting and practical living space. The two modern bathrooms cater to family needs,...
Charming Home in Prime Spotswood Location
This charming single-fronted weatherboard home perfectly blends comfort, style, and convenience. With three generously sized bedrooms, including a master suite with its own ensuite and built-in robes, this home offers an inviting and practical living space. The two modern bathrooms cater to family needs, while the cozy, carpeted bedrooms create a warm and restful ambiance.
The open-plan kitchen, dining, and living area is the heart of the home, bathed in natural light throughout the day. The kitchen boasts ample cabinetry, a brand-new gas oven, and a dishwasher, making it an entertainer's dream. Timber flooring flows effortlessly from the hallway into the living spaces, creating a sense of openness and seamless flow. Plus, a thoughtfully designed study nook tucked in the hallway provides the perfect space for work or study.
For ultimate comfort, ducted heating and split systems deliver both heating and cooling, ensuring a cozy atmosphere year-round. The home also features a convenient European laundry, offering practicality and space-saving solutions.
Glass sliding doors open up to a low-maintenance, decked courtyard—a tranquil outdoor oasis ideal for relaxation or entertaining. The charming front veranda adds a touch of curb appeal, while two off-street parking spaces provide extra convenience.
Located just off the vibrant Hudsons Road shopping strip and only 400 meters from Spotswood train station, this home offers quick access to the CBD. The Union Quarter Shopping Precinct is just around the corner, and the home is zoned for the highly sought-after Spotswood Primary School, making it a prime location for families.
This move-in-ready home presents a fantastic opportunity to embrace a stylish, convenient lifestyle in a highly desirable neighbourhood.