Surrounded by lush, established gardens and secured behind high fencing and remote-controlled gates, this exceptional residence unveils a sanctuary of refined luxury, contemporary functionality, and...
Surrounded by lush, established gardens and secured behind high fencing and remote-controlled gates, this exceptional residence unveils a sanctuary of refined luxury, contemporary functionality, and effortless indoor-outdoor harmony.
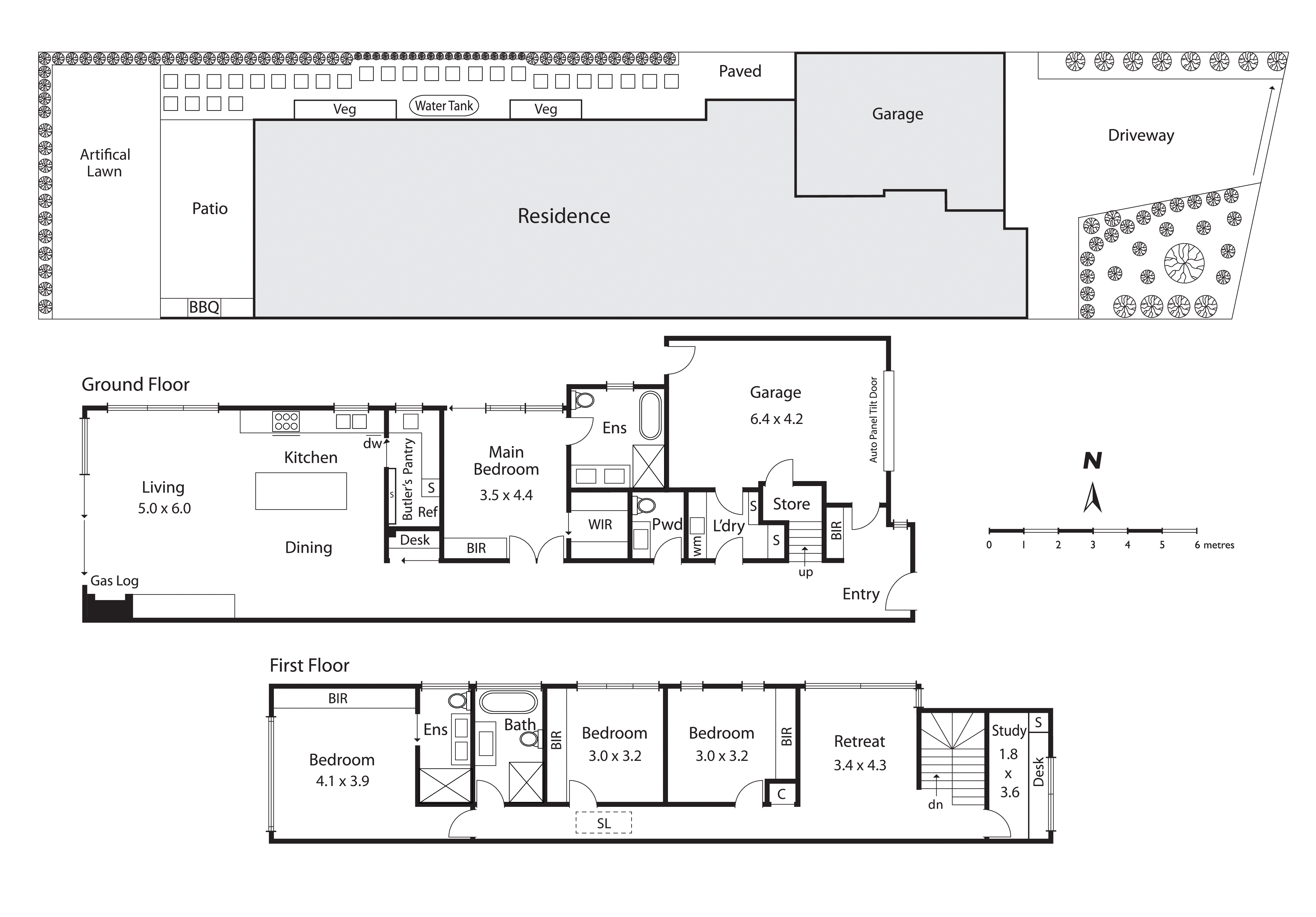
A wide hall, enriched by engineered oak flooring and lofty ceilings, establishes an immediate sense of scale and sophistication. A cloak cupboard, sleek powder room, fitted laundry with two clotheslines and a discreet study nook unfold along the way—each detail meticulously considered—before culminating in the expansive rear family domain.
Natural light streams in from the north and west through expansive glazing, flooding the living area, which is anchored by a striking fireplace and bespoke cabinetry. Floor-to-ceiling stacking sliding doors seamlessly extend the space to a breathtaking al fresco terrace, where a built-in barbecue, bar fridge, and sleek overhead cover create a year-round entertainer’s haven, framed by tall plantings in secluded, northwest-facing surrounds.
Within this open-plan expanse, the beautifully proportioned dining area connects effortlessly with the living space and the kitchen—an inspired culinary setting.
Designed for both everyday ease and sophisticated entertaining, the gourmet kitchen showcases a six-burner Smeg freestanding cooker, stone benchtops, Bosch dishwasher and a generous breakfast island. A fully fitted butler’s pantry adds exceptional storage and additional preparation space, combining style and practicality.
Upstairs, a dedicated study with dual workstations and leafy treetop views offers an inspiring environment for remote work or study, while a sun-drenched retreat provides additional space for family relaxation. Three bedrooms—each bathed in natural light and fitted with ceiling fans—include the lavishly scaled master suite, enhanced by extensive built-in robes and a luxurious twin-vanity ensuite.
Offering further versatility, a ground-floor bedroom provides an elegant alternative master, complete with built-in and walk-in robes and a beautifully finished ensuite featuring a deep soaker tub, dual vanities, hidden ceiling fan, hydronic floor heating and refined appointments—perfect for private indulgence.
Comprehensively appointed with video intercom entry, security cameras, home automation, zoned climate control and an oversized 1.5 garage with built in cabinetry with internal and rear access, every detail has been thoughtfully curated to inspire and delight.
Enviably situated in this peaceful family-focussed pocket, just moments from Spring Road shopping and dining, St Agnes Primary School, in the catchment area of the highly regarded Moorabbin Primary School, A.F. Peterson Reserve, bus services, and the shops, cafes, restaurants, and train station of vibrant Highett Village just minutes away.
For more information about this stunning indoor and outdoor sanctuary contact Richard Slade or Nickole Smirnov at Buxton Sandringham on 0419 588 873.
