In a tightly held golf-side pocket - loved by families who once in, are reluctant to leave - this spacious double-storey residence is offered for the first time in more than thirty years. Nestled on approximately 595 sqm, it is wrapped in verdant established gardens, which boast a sun-drenched northerly aspect to the rear.
Leafy views are every...
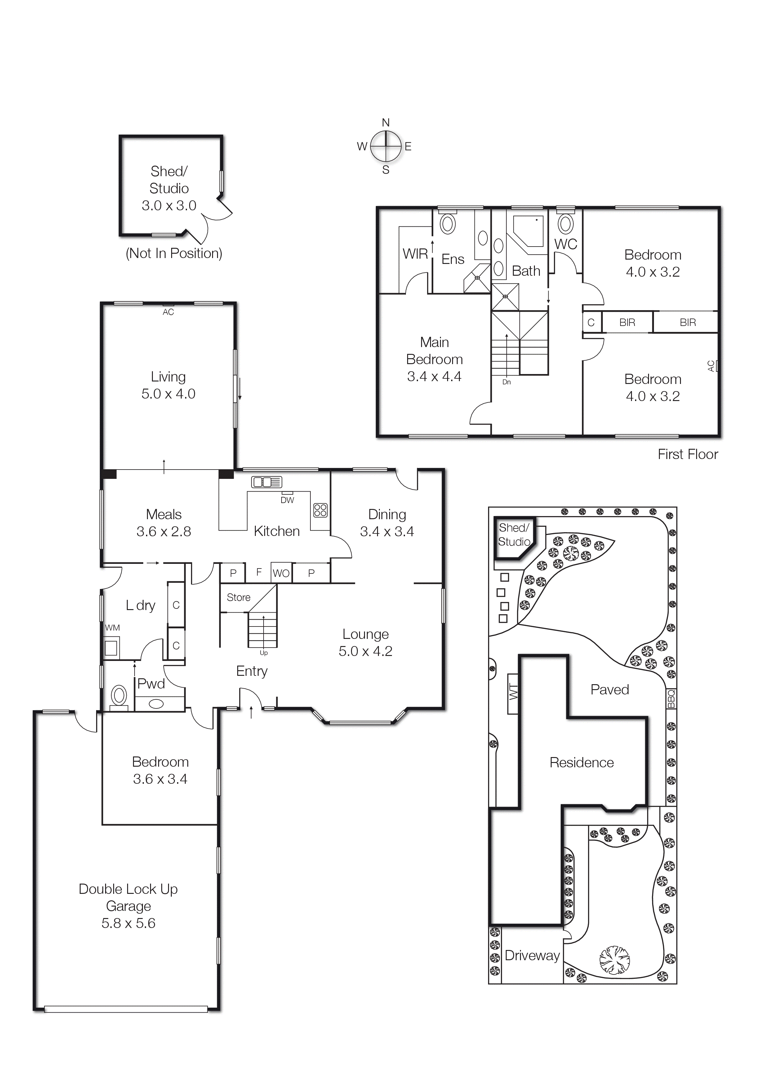
In a tightly held golf-side pocket - loved by families who once in, are reluctant to leave - this spacious double-storey residence is offered for the first time in more than thirty years. Nestled on approximately 595 sqm, it is wrapped in verdant established gardens, which boast a sun-drenched northerly aspect to the rear.
Leafy views are every which way you turn through the light-filled interiors, which incorporate a formal lounge with a pretty bay window along with a separate dining zone spilling out to the patio (built-in BBQ). At the heart of the living areas, the bright kitchen boasts Asko and Bosch appliances, while a casual meals area steps up to a comfortable family room that also enjoys access to the garden.
A ground floor bedroom and adjacent powder room are a coveted inclusion – three further double bedrooms are located upstairs, where they each offer fitted wardrobes and include a spacious master with crisp ensuite. A family bathroom with separate WC completes the upper level, and rounding off the interiors are a laundry with yard access, ample storage, ducted heating/evaporative cooling, and split systems.
Out in the garden, a shed/studio provides a versatile space, while an oversized double auto garage concludes an inviting family property.
Within an easy stroll of Seaview shops, eateries and bus stops, close to a choice of primary schools and within the zone for Beaumaris & Mentone girls’ secondary colleges, the home is also near parks & ovals and moments from the beach.
For more information about this garden-wrapped family beauty, contact Kylie Charlton or Jasmine Younger at Buxton Sandringham.