Stand out from the pack with two storeys of family-sized space, a perfect-sized block...and your own private parkside street-address! Neighbouring Sillitoe Reserve in outstanding standalone style, this independent three-bedroom, 2.5 bathroom home is set apart by a free-flowing dual-zone design wrapped by north-westerly gardens with open-space on...
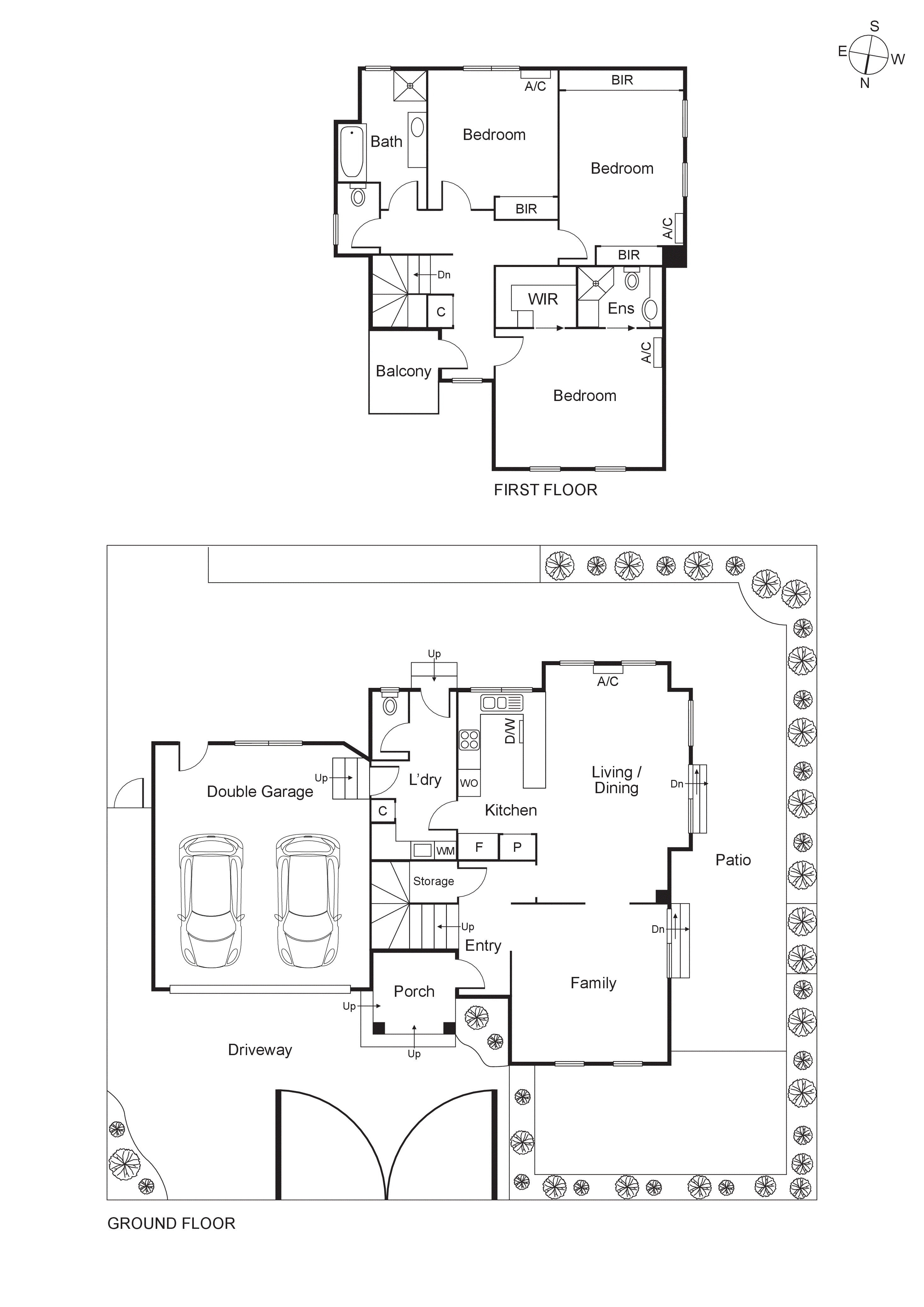
Stand out from the pack with two storeys of family-sized space, a perfect-sized block...and your own private parkside street-address! Neighbouring Sillitoe Reserve in outstanding standalone style, this independent three-bedroom, 2.5 bathroom home is set apart by a free-flowing dual-zone design wrapped by north-westerly gardens with open-space on all sides and room for kids, pets and the trampoline!
Styled to fit a busy family lifestyle with a deep dining-bench for the prestige appliance kitchen, this quality home has an elegant ensuite for the private master-suite and a handy separate WC for the sizable fully tiled bathroom. Quality appointed with climate-controlling ducted heating and reverse-cycle air-conditioning, and the security of four-camera CCTV, there’s great storage including an abundance of built-in robes and a master walk-in, plus quality blinds for every window including privacy-enhancing e-screens for the front-facing windows. A complete home water filtration system adds peace of mind and everyday luxury, delivering purified water to every tap.
Light filled and lofty with tall windows providing garden and treetop outlooks at every turn, this impressive home has a first-floor view out across the playing fields, a front balcony stepping out into the treetops and four-car parking including a double auto-garage. There’s even more outdoors with Sillitoe Reserve as a bonus backyard!
A walk to the primary school, a stroll to the South Rd Colleges (Haileybury and St. Leonard’s) and a minute to Hampton St’s cafes, shopping and station, this is a stand-out lifestyle opportunity! For further information on this parkside home contact Simon Wood at Buxton Bentleigh on 0422 789 110 or the Buxton Office on 9563 9933. ALL ENQUIRIES MUST INCLUDE A CONTACT NUMBER.