104 Brady Road, Bentleigh East

Undisclosed

Available From
June 10, 2025

B 3 b 2 C 2

Buxton Brighton
Level 1, 28 Carpenter Street,
BRIGHTON VIC 3186

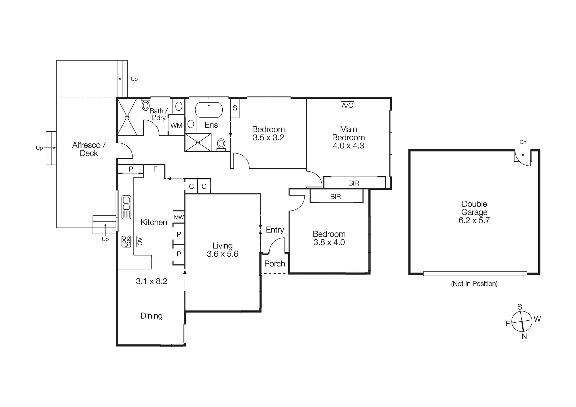
LEASED - STUNNING THREE BED FAMILY HOME

This immaculate renovated three-bedroom, two bathroom home is ready to be enjoyed Recently renovated throughout and offering a huge expanse of useable outdoor space this home enjoys a great corner...

View More

LEASED - STUNNING THREE BED FAMILY HOME

This immaculate renovated three-bedroom, two bathroom home is ready to be enjoyed Recently renovated throughout and offering a huge expanse of useable outdoor space this home enjoys a great corner location and comprises a cosy family lounge, dining zone and stunning new central kitchen with Cosentino dekton benches. There are three bedrooms all...

View More

Location  

Get Directions
Map showing location of 104 Brady Road, Bentleigh East VIC 3165

Buxton Brighton Level 1, 28 Carpenter Street,
BRIGHTON VIC 3186

Want to know what your property's worth?

Looking to buy or sell a property? Click below to receive a full report highlighting market value, recent sales, rental history, suburb report and more.
Download Property Report

Similar Properties

Leased

Undisclosed

28 Castlewood Street, BENTLEIGH EAST VIC 3165

B 3 b 2 C 2

Leased

Undisclosed

2/41-43 Neville Street, Bentleigh East VIC 3165

B 3 b 2 C 1

Leased

Undisclosed

16B Daphne Street, Bentleigh East VIC 3165

B 3 b 2 C 2