Instantly inviting from the first step inside, this low-maintenance, highly secure, studio apartment delivers as an affordable market entry, a convenient lock-and-leave base, or an astute investment located on the tree-lined, Paris end of Acland Street. This value-packed gem is truly something special that will deliver everything you deserve....
Instantly inviting from the first step inside, this low-maintenance, highly secure, studio apartment delivers as an affordable market entry, a convenient lock-and-leave base, or an astute investment located on the tree-lined, Paris end of Acland Street. This value-packed gem is truly something special that will deliver everything you deserve.
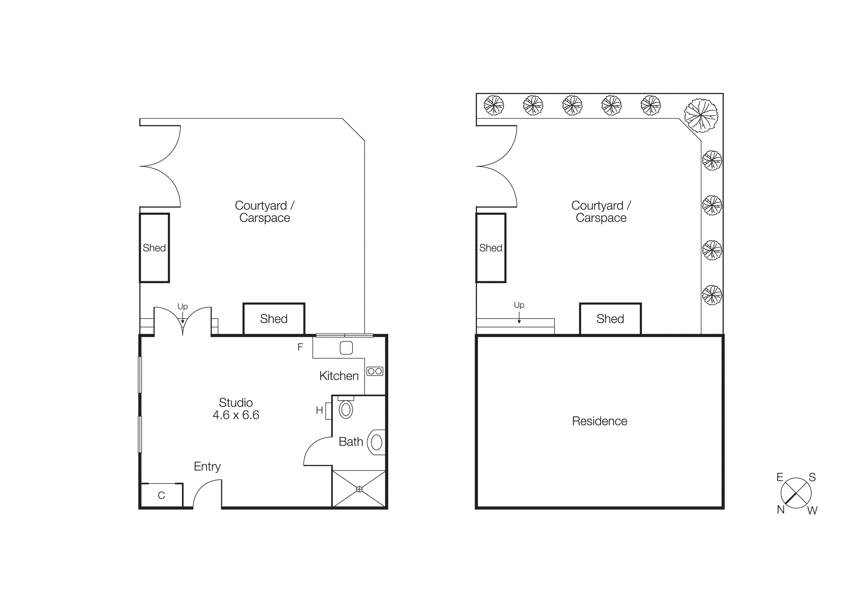
Beyond the completely secure, massive auto-gated entry you are presented with accommodation providing the peace of mind you deserve. The ground-floor apartment enjoys exclusive totally secure access to two adjoining car parks, framed by raised garden beds, two handy sheds, and room for a private courtyard. Discover a streamlined open layout featuring more than enough space for living, dining and even entertaining. A chef-ready kitchen is graced with an electric cooktop, solid benchtops, fridge, a microwave and ample storage space.
Take advantage of a full-sized bathroom with a walk-in shower, a shared laundry, electric panel heating, built-in robes, storage solutions, timber Venetian blinds, recessed down-lighting, video intercom security, and low owners’ corporation fees.
Underscored by a vibrant location, simply stroll to Catani Gardens greenery, foreshore fitness trails, your own local beach, multiple tram routes, light rail to the city, the Esplanade, Fitzroy Street attractions, and a crowd-pleasing collection of cafes, bars and restaurants moments from your front door. Inspect with confidence!