Occupying a coveted corner position in one of Beaumaris's most prestigious streets, just one block from the bay and steps from cafes, this distinguished red clinker charmer awaits transformation into your vision of coastal luxury. Set on an approximate 700m2 allotment with impressive dual street frontages, this rare find is complemented by valuable...
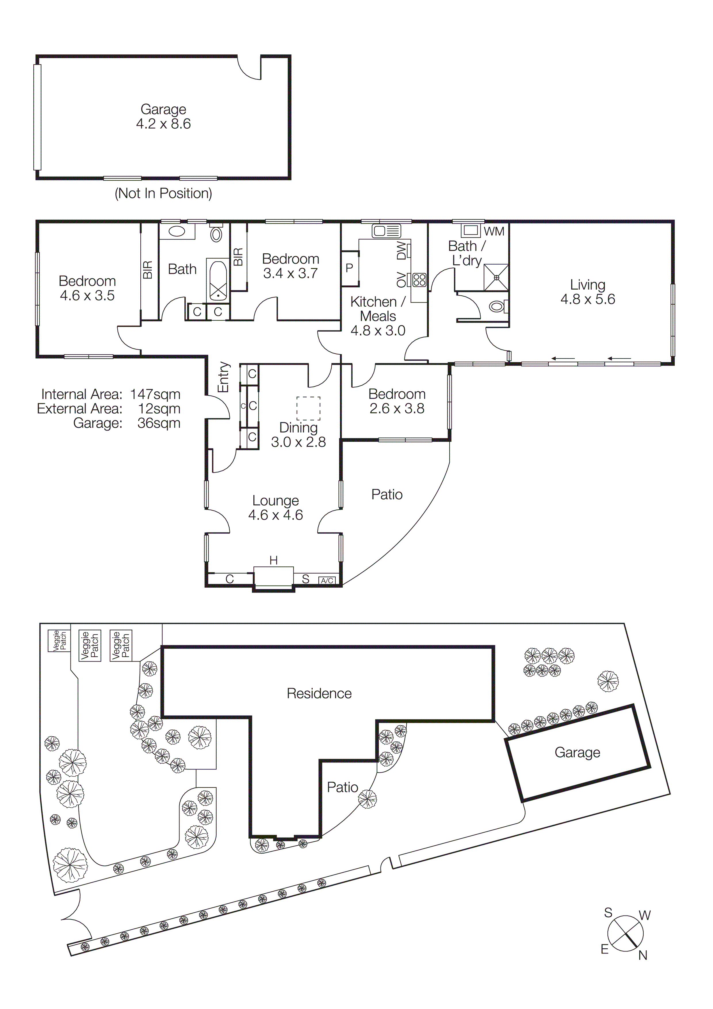
Occupying a coveted corner position in one of Beaumaris's most prestigious streets, just one block from the bay and steps from cafes, this distinguished red clinker charmer awaits transformation into your vision of coastal luxury. Set on an approximate 700m2 allotment with impressive dual street frontages, this rare find is complemented by valuable rear lane access. Explore the development potential, renovation options, or realise the existing plans for a grand-scale beachside masterpiece by AREA Design (STCA). Destined to set a new benchmark in contemporary living, this proposed residence offers unrivalled luxury with four ensuite bedrooms, multiple living zones and an alfresco oasis with an outdoor fireplace, swimming pool and spa. The meticulous design also includes premium appointments such as lift access, a four-vehicle basement with turntable, home office and mudroom. Alternatively, if you’re seeking a renovation project, the existing home is presented in original condition and features three bedrooms (two with robes), two bathrooms, a formal lounge and dining room, expansive rear family room, neat central kitchen, sun-drenched patio and established garden surrounds. Directly opposite F.L Yott Reserve and positioned to enjoy the best of Beaumaris, the bay trail and breathtaking beaches are at your doorstep, as well as restaurants, bus stops and the Beaumaris Motor Yacht Squadron. Zoned for Beaumaris Secondary College and Mentone Girls' Secondary College, whilst highly regarded schools including Mentone Grammar and Mentone Girls' Grammar are within easy reach.