Perfectly positioned in a tree-lined North Brighton neighbourhood surrounded by stunning heritage homes and Bayside’s finest amenities, this single-level freestanding Victorian brims with warmth, character and future promise. With its picture-perfect façade and timeless appeal, it offers an exceptional opportunity to enjoy immediately or further...
Perfectly positioned in a tree-lined North Brighton neighbourhood surrounded by stunning heritage homes and Bayside’s finest amenities, this single-level freestanding Victorian brims with warmth, character and future promise. With its picture-perfect façade and timeless appeal, it offers an exceptional opportunity to enjoy immediately or further enhance over time.
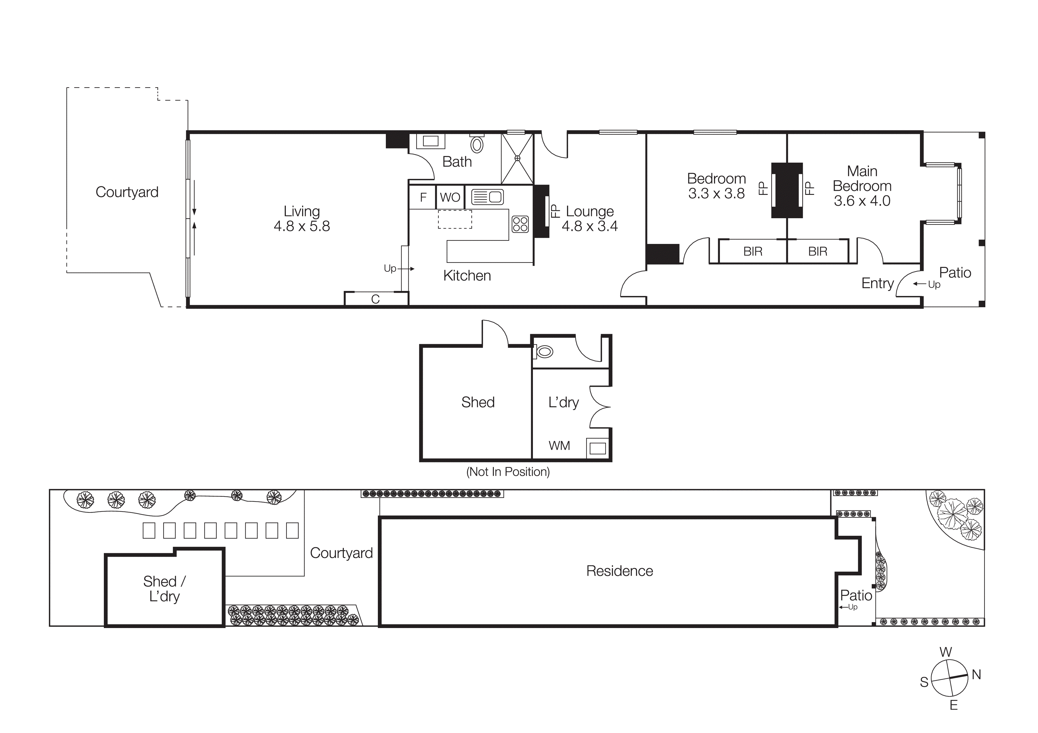
A classic two-bedroom floor plan reveals a wealth of original charm, from soaring ceilings with intricate roses to richly polished floorboards that flow throughout. Both bedrooms are generously sized, each with built-in robes and decorative open fireplaces, while the front room boasts a deep bay window capturing glorious northern light.
At the heart of the home, a separate dining room with a tiled fireplace and garden-accessing leadlight door flows to a spacious rear living zone, creating distinct areas for relaxation and entertaining. The bright central kitchen is well-appointed with wraparound benches, subway tiles, a skylight and dishwasher. A spotless bathroom adds further comfort with crisp white finishes and a heat-light for warmth.
A wall of windows at the rear invites the outdoors in, opening to a beautiful brick-paved entertaining area and deep, leafy garden, a tranquil retreat with western sun and space to extend or create an al fresco oasis. Currently home to an external laundry, WC and bike shed, the backyard holds remarkable potential.
With ducted heating, split system air conditioning and secure gated parking, this is a captivating choice for young families, downsizers or renovators looking to reimagine with a contemporary extension or second storey (STCA). Immerse yourself in an enviable lifestyle just moments from Bay Street cafes, shops and eateries, the station, cinema, parkland, excellent schools and the beach.
For more information about this single-level Victorian please contact Tamara Penno at Buxton Brighton on 0409 532 606.