33 Merton Street, ALBERT PARK

Undisclosed

B 3 b 2 C 2

Buxton Albert Park
330 Montague Street,
Albert Park 3206

Get in touch

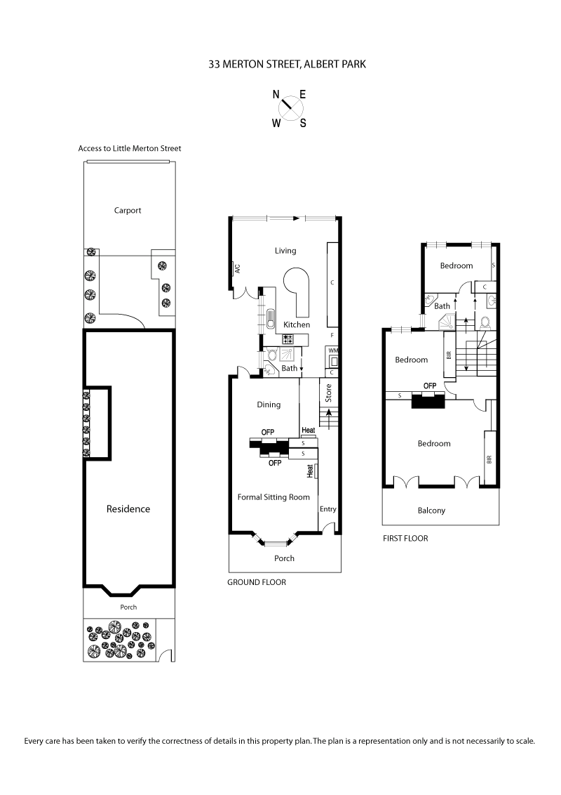
KALMAR c1882 - DISTINGUISHED TWO STOREY VICTORIAN RESIDENCE

This character filled home is in excellent order throughout with abundant period features and only moments from Albert Park Village. Comprising: Formal sitting room (gas open fireplace), separate...

View More

KALMAR c1882 - DISTINGUISHED TWO STOREY VICTORIAN RESIDENCE

This character filled home is in excellent order throughout with abundant period features and only moments from Albert Park Village. Comprising: Formal sitting room (gas open fireplace), separate dining room (open fireplace), central bathroom and kitchen leading to open plan living room. Upstairs: Three bedrooms (main bedroom with balcony access),...

View More

Location  

Get Directions
Map showing location of 33 Merton Street, ALBERT PARK VIC 3206

Buxton Albert Park 330 Montague Street,
Albert Park 3206

Get in touch

Want to know what your property's worth?

Looking to buy or sell a property? Click below to receive a full report highlighting market value, recent sales, rental history, suburb report and more.
Download Property Report

Enquire about this property

Submitting...

Success! Your enquiry has been submitted.

There was an error submitting the form. Please try again later.

Similar Properties

Sold
sold

$1,925,000

18 Mills Street, ALBERT PARK VIC 3206

B 3 b 2 C 2

Sold
sold

Undisclosed

20 Little Page Street, ALBERT PARK VIC 3206

B 3 b 2 Land area 204 m²

Sold
sold

Undisclosed

243 Danks Street, ALBERT PARK VIC 3206

B 3 b 2 C 1