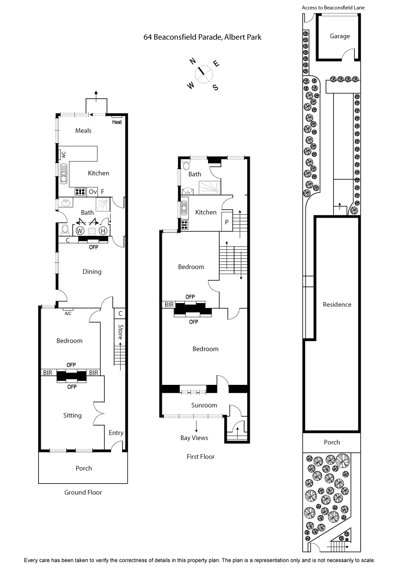
Prime renovation opportunity beckons on one of Melbourne's premier beach front boulevards. An enviable lifestyle awaits the lucky purchaser of this original two storey three bedroom Victorian balconied terrace. In immediately liveable order with flexible floor plan yet offering enormous scope to renovate and extend (STCA). Comprising: Eight...
Prime renovation opportunity beckons on one of Melbourne's premier beach front boulevards. An enviable lifestyle awaits the lucky purchaser of this original two storey three bedroom Victorian balconied terrace. In immediately liveable order with flexible floor plan yet offering enormous scope to renovate and extend (STCA). Comprising: Eight principal rooms, entrance hall, delightful front living room (open fireplace), downstairs bedroom, central bathroom & laundry, 80's style kitchen, open plan living area, upstairs good sized light filled main bedroom with enclosed balcony offering bay views, another double bedroom, second bathroom and separate kitchen with meals. Features: Period ornate features intact and excellent off street parking via roller into large lock-up garage. Allotment: Deep north facing garden allotment of 288sqm (approx). Superbly positioned to nearby Albert Park cafe life, bars, restaurants, and no.1 city tram.
Inspect during scheduled Saturday, Tuesday and Thursday open times or by appointment with the agent.
Presented by Cayzer Real Estate Albert Park.
ALL ENQUIRIES MUST INCLUDE A PHONE NUMBER.