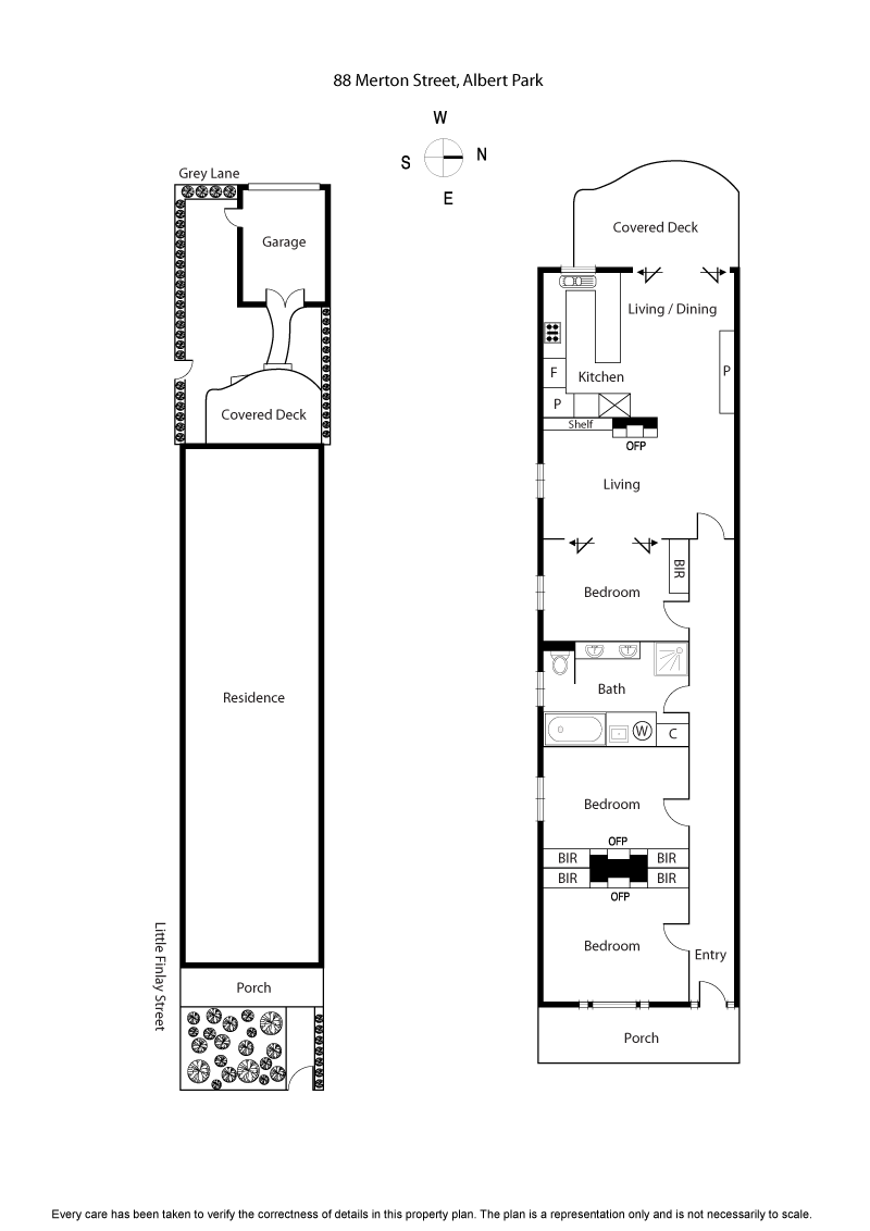
In one of the districts finest locations, this classic freestanding Victorian brick residence is set on bluestone foundations on a desirable corner location offering two street access to Gray Lane. In superb order throughout boasting charm and character yet offering enormous scope to renovate and extend, current plans and permit approved to create...
In one of the districts finest locations, this classic freestanding Victorian brick residence is set on bluestone foundations on a desirable corner location offering two street access to Gray Lane. In superb order throughout boasting charm and character yet offering enormous scope to renovate and extend, current plans and permit approved to create the ultimate family home. Comprising: Light filled accommodation throughout with wide entrance hall, delightful front main bedroom (with marble fireplace & built-in robes), a further two double bedrooms (with built-in robes), spacious modern bathroom, impressive full-width living (with open fireplace), updated fully equipped kitchen with casual open plan living, Bi-fold doors opening to spacious decking ideal for alfresco living all year round. Features: Excellent off street parking into lock-up garage, many period ornate features intact, polished boards, security alarm, hydronic heating and cooling. Allotment: 7.31m x 40.23m (approx.). Only moments from Albert Park Village, beach and St Vincent Gardens.
Inspect during scheduled Saturday, Tuesday and Thursday open times or by appointment with the agent.
Presented by Cayzer Real Estate Albert Park.
ALL ENQUIRIES MUST INCLUDE A PHONE NUMBER.