13/347 Beaconsfield Parade, ST KILDA WEST

$950,500

B 2 b 2 C 2

Buxton Albert Park
330 Montague Street,
Albert Park 3206

Get in touch

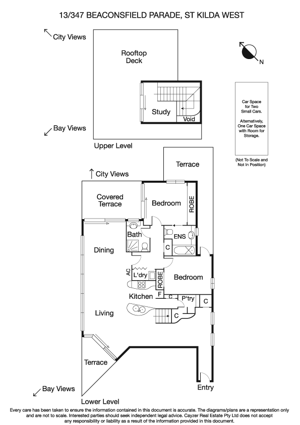
AFFORDABLE PENTHOUSE WITH HUGE ENTERTAINERS TERRACE OFFERING BAY AND CITY SKYLINE VIEWS

Located on the top floor, this 90's style penthouse offers panoramic bay and city skyline views over two sun-filled levels, with an added bonus of a huge entertainer's terrace. Recently freshened up...

View More

AFFORDABLE PENTHOUSE WITH HUGE ENTERTAINERS TERRACE OFFERING BAY AND CITY SKYLINE VIEWS

Located on the top floor, this 90's style penthouse offers panoramic bay and city skyline views over two sun-filled levels, with an added bonus of a huge entertainer's terrace. Recently freshened up with new paint and carpets making the apartment ready to move straight into and enjoy the beachfront lifestyle. Comprising: Security foyer, two...

View More

Location  

Get Directions
Map showing location of 13/347 Beaconsfield Parade, ST KILDA WEST VIC 3182

Buxton Albert Park 330 Montague Street,
Albert Park 3206

Get in touch

Want to know what your property's worth?

Looking to buy or sell a property? Click below to receive a full report highlighting market value, recent sales, rental history, suburb report and more.
Download Property Report

Enquire about this property

Submitting...

Success! Your enquiry has been submitted.

There was an error submitting the form. Please try again later.

Similar Properties

Sold
sold

Undisclosed

12/325 Beaconsfield Parade, ST KILDA WEST VIC 3182

B 2 b 2 C 1

Sold
sold

$950,000

22/325 Beaconsfield Parade, St Kilda West VIC 3182

B 2 b 2 C 1