7 Emerald Way, SOUTH MELBOURNE

$1,380,000

B 3 b 2 C 2

Buxton Albert Park
330 Montague Street,
Albert Park 3206

Get in touch

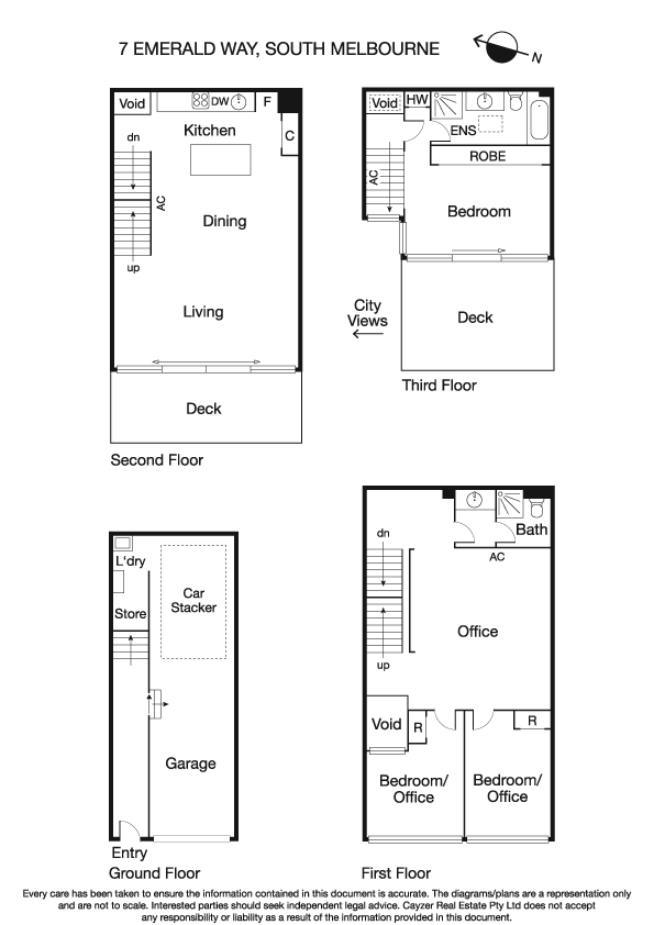
URBAN COOL TOWNHOUSE - OFFICE WITH CARETAKERS RESIDENCE

Architectural inspirational spaces over four levels, fully air conditioned and a flexible floorplan can be yours tucked away in one of South Melbourne's historic cobblestone laneways within a...

View More

URBAN COOL TOWNHOUSE - OFFICE WITH CARETAKERS RESIDENCE

Architectural inspirational spaces over four levels, fully air conditioned and a flexible floorplan can be yours tucked away in one of South Melbourne's historic cobblestone laneways within a two-minute walk to Clarendon Street and ten minutes to the Arts Centre. Comprising: Entry hallway, excellent garaging for three cars (via stacker system), and...

View More

Location  

Get Directions
Map showing location of 7 Emerald Way, SOUTH MELBOURNE VIC 3205

Buxton Albert Park 330 Montague Street,
Albert Park 3206

Get in touch

Want to know what your property's worth?

Looking to buy or sell a property? Click below to receive a full report highlighting market value, recent sales, rental history, suburb report and more.
Download Property Report

Enquire about this property

Submitting...

Success! Your enquiry has been submitted.

There was an error submitting the form. Please try again later.

Similar Properties

Sold
sold

$1,350,000

4 Little Tribe Street, SOUTH MELBOURNE VIC 3205

B 3 b 2

Sold
sold

Undisclosed

52 Raglan Street, SOUTH MELBOURNE VIC 3205

B 3 b 2

Sold
sold

Undisclosed

24A Emerald Hill Place, SOUTH MELBOURNE VIC 3205

B 3 b 2 C 1