In accordance with Victorian Government requirements, only fully vaccinated people will be able to attend the open for inspection and auction for this property.
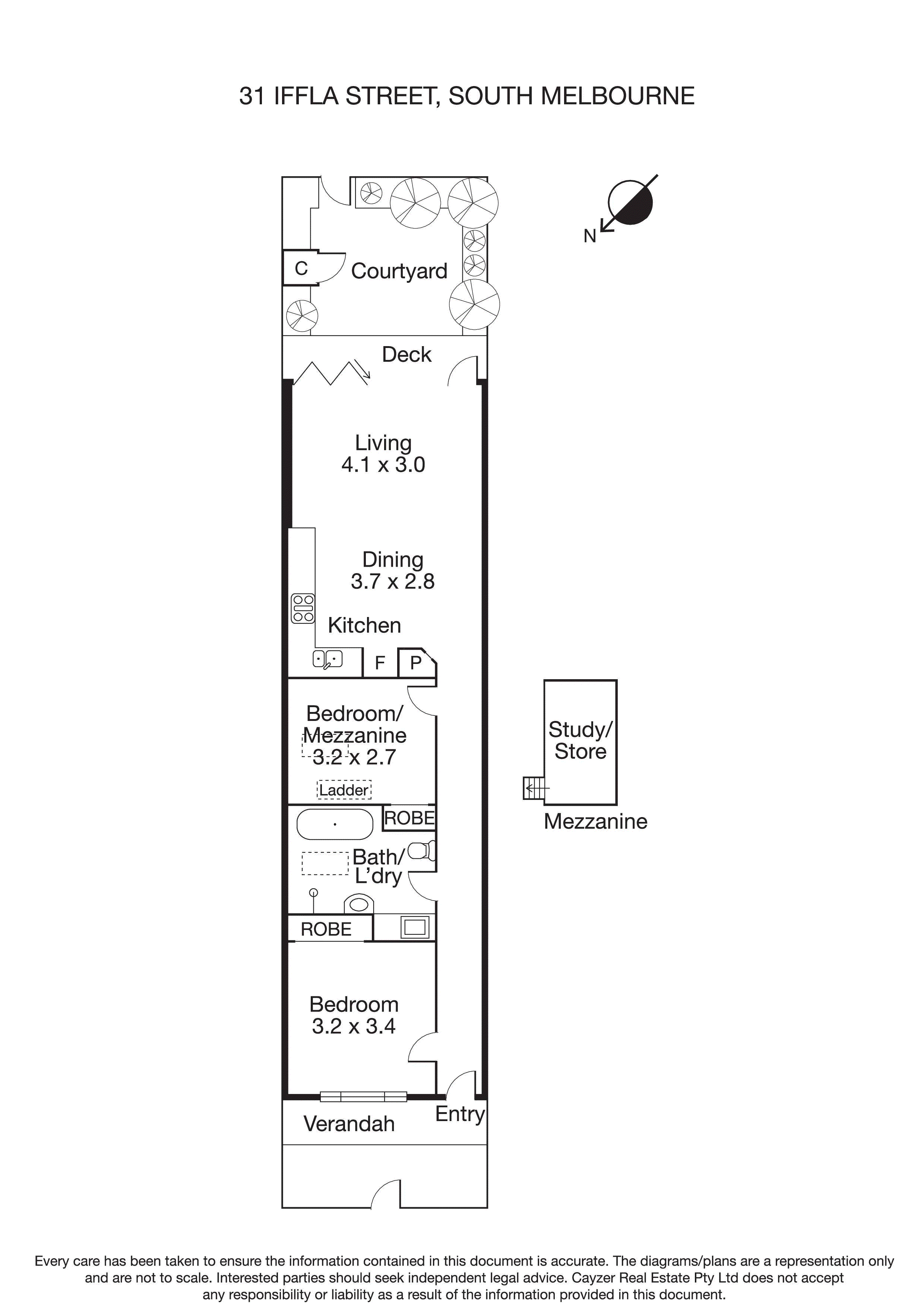
Exuding a feeling of space and light, this renovated Victorian cottage is comfortable two bedroom plus study package. Located in a coveted inner bayside pocket, surrounded by peaceful...
In accordance with Victorian Government requirements, only fully vaccinated people will be able to attend the open for inspection and auction for this property.
Exuding a feeling of space and light, this renovated Victorian cottage is comfortable two bedroom plus study package. Located in a coveted inner bayside pocket, surrounded by peaceful lifestyle amenities while being only a skip and a hop to the city, the beach, Melbourne's premier Albert Park Lake, in addition to top tier village options.
Welcomed by a bluestone paving and a pretty Victorian façade, the home boasts an open plan living zone with soaring pitched ceilings overhead and hardwood floors underfoot illuminated by a vast wall of windows. An entertainer's kitchen with 900mm Ilve gas cooking and Bosch dishwasher is finished with stone benches. Bifold doors fold all the way back for terrific flow onto a paved courtyard – perfect for entertaining or to bask in the sun and enjoy the sound of the rustling palm leaves above.
Master bedroom with extensive floor to ceiling robes and a second bright bedroom with loft study are served by a centrally located bathroom with freestanding bathtub and a rainfall shower with a relaxed sage palette. This soothing haven also features a fitted laundry, RC AC and ROW pedestrian access.
Step out to the delightful Lyell Iffla Reserve and community garden at the top of the street, St Vincent Gardens or Albert Park Lake. Choose between South Melbourne Market, Park Street, Albert Park village and Bay Street for shopping, cafes and restaurants. Also close to Albert Park Primary and Secondary Schools, trams and of course the beach.
Inspect during scheduled open times or by appointment with the agent.
Presented by Cayzer Real Estate Albert Park and Port Melbourne.
All enquiries must include a phone number.