This beautifully presented two bedroom, two bathroom ground floor apartment in the Momentum building offers peace and serenity with a leafy wraparound garden courtyard perfect for entertaining. Surrounded by floor to ceiling windows and flooded with natural light, this is the South Melbourne home you have been looking for.
Featuring a spacious...
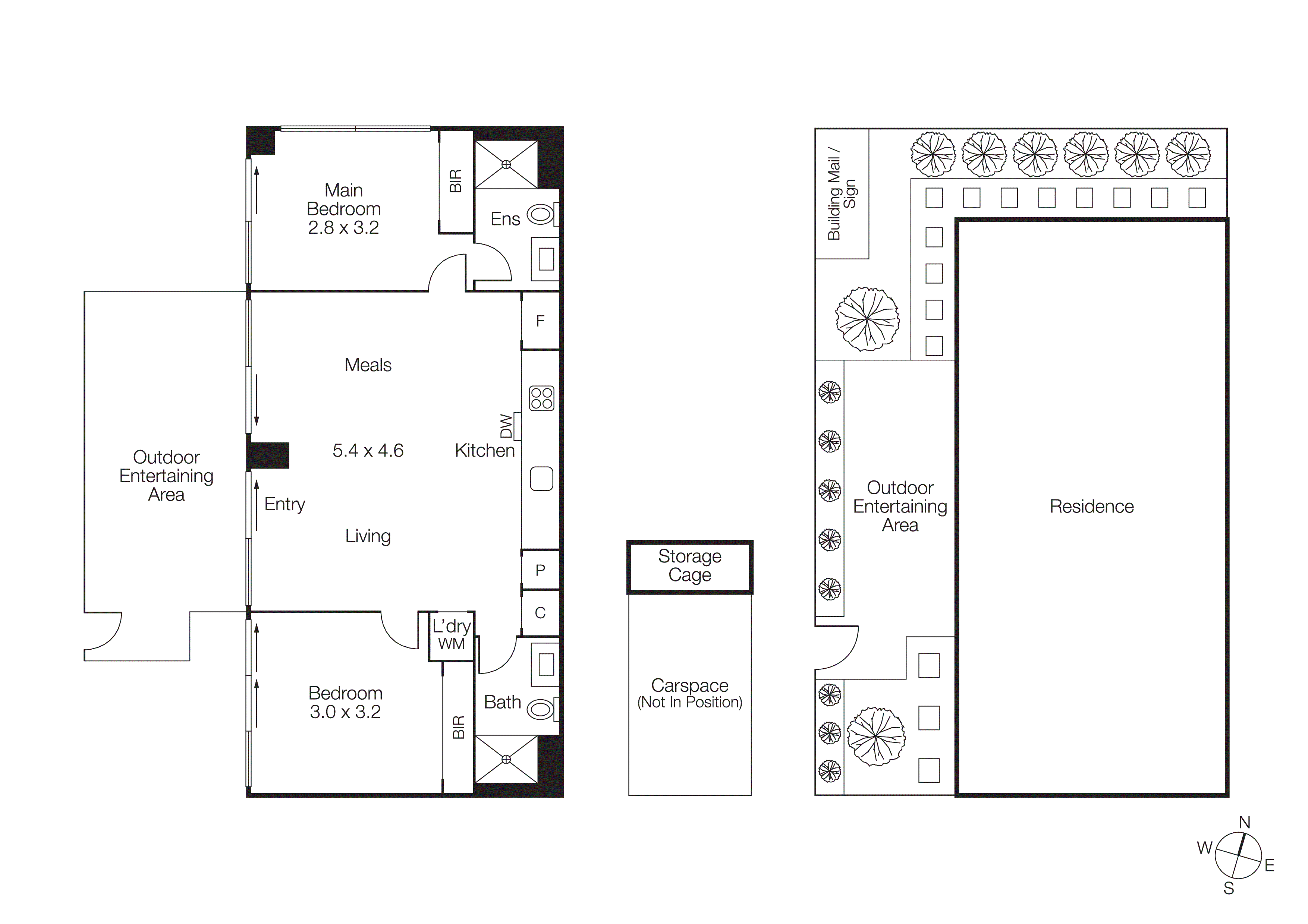
This beautifully presented two bedroom, two bathroom ground floor apartment in the Momentum building offers peace and serenity with a leafy wraparound garden courtyard perfect for entertaining. Surrounded by floor to ceiling windows and flooded with natural light, this is the South Melbourne home you have been looking for.
Featuring a spacious open plan kitchen, living and dining zone, your eyes are constantly drawn to the generous outdoor terrace with ample opportunity for dining, gardening and barbequing. The streamlined, sleek stone kitchen is perfect for cooks of all calibre.
Two generous bedrooms are located either side of the living area, each with an abundance of natural light and ample BIR storage. Both bedrooms offer direct sliding door access to the courtyard. Main bedroom features a contemporary ensuite. The apartment also hosts a modern central bathroom and separate, dedicated laundry space. This apartment is equipped with reverse cycle heating and cooling, ensuring year-round comfort by efficiently regulating indoor temperatures. The private, enclosed car park is conveniently located right next to the apartment, providing easy and secure access. Additionally, a storage unit is included, offering extra space for belongings.
This premium South Melbourne location is moments from Albert Park Lake, and within easy access to multiple transportation lines. South Melbourne Market, and the Royal Botanic Gardens are both a short stroll away.