FULLY FURNISHED - Walk to the beach with a latte in hand, wander home through the courtyard and find a world of sun and sea breezes all your own in this beachside apartment. Situated in the quietest rear corner of this village-edge beachside group, this two bedroom courtyard-apartment is in a sunny world of its ...right on the edge of Sandringham...
FULLY FURNISHED - Walk to the beach with a latte in hand, wander home through the courtyard and find a world of sun and sea breezes all your own in this beachside apartment. Situated in the quietest rear corner of this village-edge beachside group, this two bedroom courtyard-apartment is in a sunny world of its ...right on the edge of Sandringham Village.
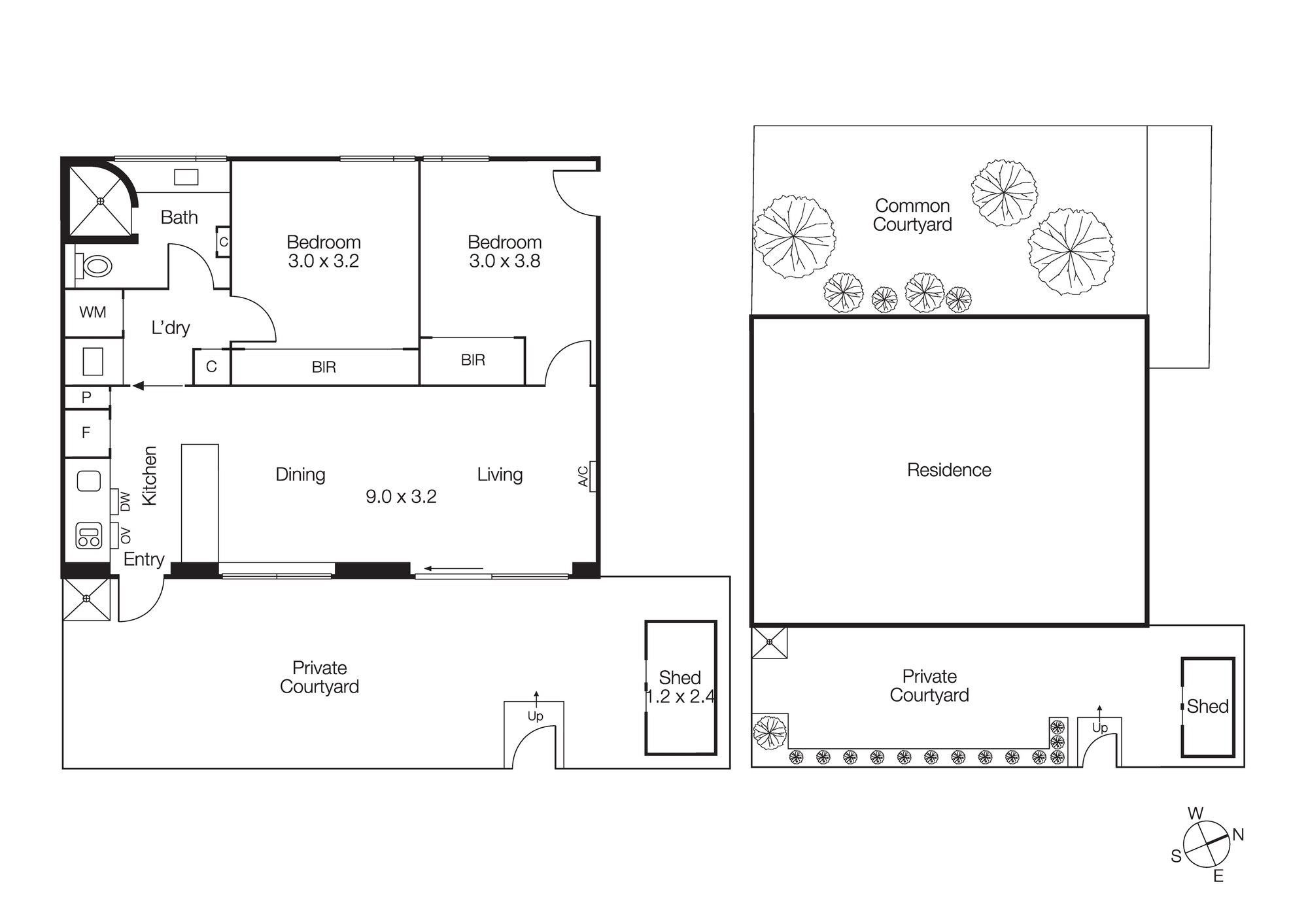
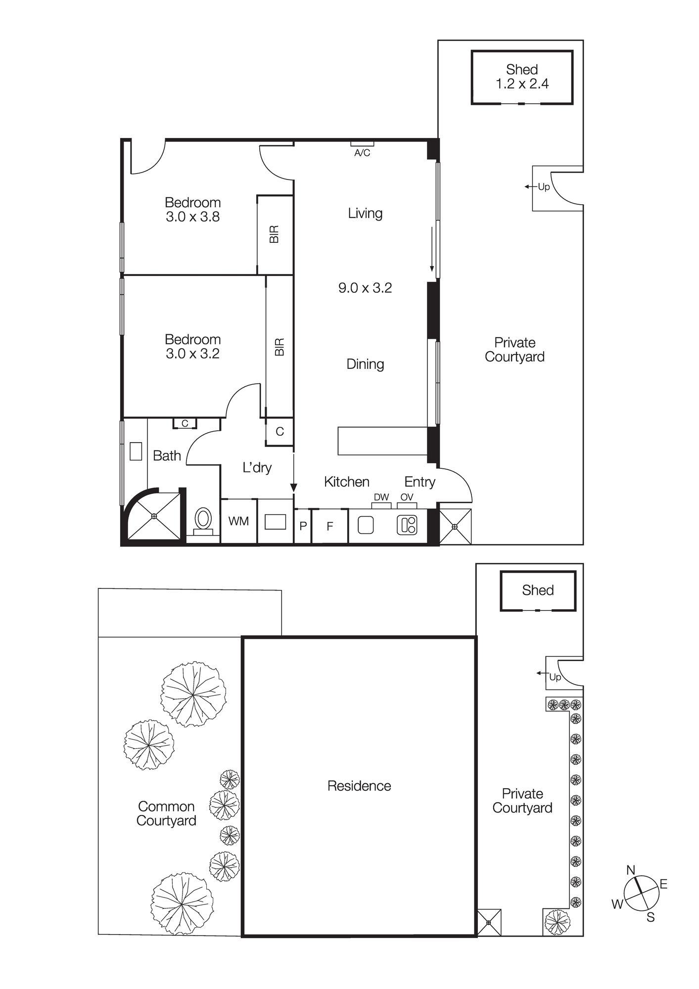
Step directly from a private carport to the sun-filled northerly courtyard, open the wide glass sliders to light-filled living-dining... and discover stunning designer renovated living spaces graced with a cool coastal edge. Styled with the lightest oak wood floors, the sleekest streamlined kitchen and the neutral scheme throughout, this stylish home with its perfect presentation offers rare privacy and prime beachside, commuter-life position.
Opening up with a fresh bright kitchen overlooking living/dining and a large well-designed bathroom , this courtyard apartment has built-in robes for both bedrooms, reverse-cycle air conditioning for the airy open-plan, add this to the ease of entry and entertaining in the courtyard area.
Around a dozen doors to the beachfront on the edge of the village, this home has the train within 150 steps, the cafes and supermarket at the door, and the CBD within a speed 30 minute rail commute or sea-breeze Beach Rd cycle.