Brimming with character, beautifully presented, and tailored for exceptional family living, this captivating four bedroom, two bathroom Californian Bungalow enjoys a peaceful position in a...
Brimming with character, beautifully presented, and tailored for exceptional family living, this captivating four bedroom, two bathroom Californian Bungalow enjoys a peaceful position in a family-friendly pocket, backing directly onto Sandringham East Primary School.
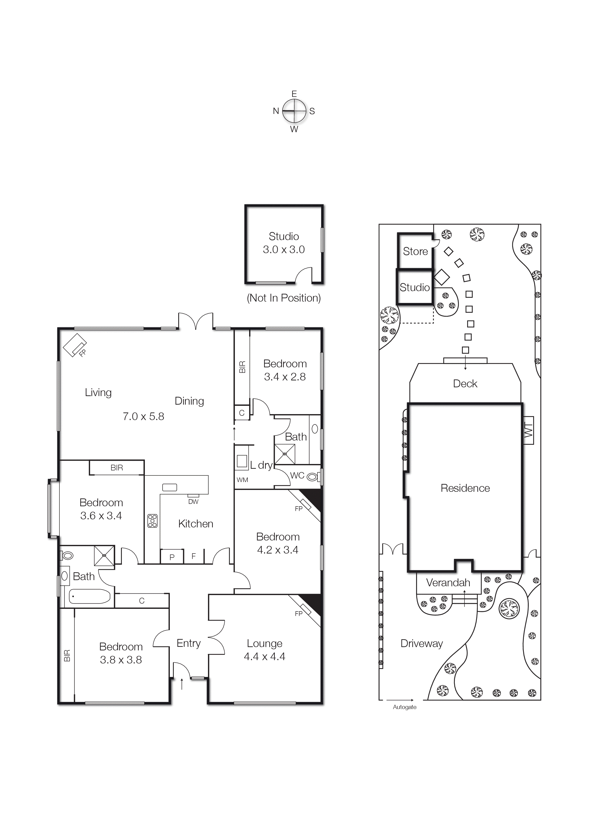
A picturesque facade framed by established gardens and secure auto-gated picket fencing sets the tone for what lies beyond. The sun-soaked front veranda offers a tranquil vantage point from which to look across the lush front garden - an idyllic spot to unwind and a fitting welcome to this thoughtfully curated residence.
Beyond the stained-glass entry, a stunning interior unfolds where traditional craftsmanship and modern comfort come together in perfect harmony. Soaring ceilings, picture rails, decorative fireplaces and Baltic pine floorboards evoke a rich sense of history, while considered improvements ensure everyday ease.
A wide central hallway introduces a formal lounge room of generous scale, with a charming garden outlook and a sublime open fireplace. Double doors allow the space to be closed off when desired - ideal for quiet retreat, fireside evenings or refined entertaining.
To the rear, the home opens out to a strikingly spacious open plan living and dining domain bathed in natural light and designed for effortless family connection. Anchored by a sleek, gourmet kitchen with stainless steel appliances, breakfast bar, and abundant cabinetry, the space exudes both style and functionality.
A gas log fire creates a warm and welcoming atmosphere, while French doors blur the line between inside and out, spilling onto a vast, covered northeast-facing deck. A haven for al fresco dining or relaxed weekend gatherings, this elevated outdoor space captures the garden’s beauty and adds yet another layer of lifestyle appeal, while a freestanding studio offers endless potential.
Four well-zoned bedrooms provide outstanding family accommodation, each with distinct character - one showcasing an original fireplace, another an inviting box bay window seat, and two additional bedrooms enjoy garden outlooks. Two luxurious family bathrooms - one featuring a clawfoot bath for pure indulgence - are complemented by a separate WC and a fitted laundry.
Additional appointments include ducted heating, evaporative cooling, ceiling fans, and three secure off-street car spaces - enhancing the home’s enduring appeal and liveability.
Perfectly located within walking distance of numerous parklands, various sporting venues, Sandringham College, and Firbank Grammar’s ELC and Junior School, with local cafes, shopping, and bus services just moments away. Black Rock shops, Sandringham Village and train station, and the beach are also within easy reach, underscoring the home’s brilliant lifestyle credentials.
For more information about this enchanting beauty contact James Colyvan or Zoe Duggan at Buxton Sandringham.
