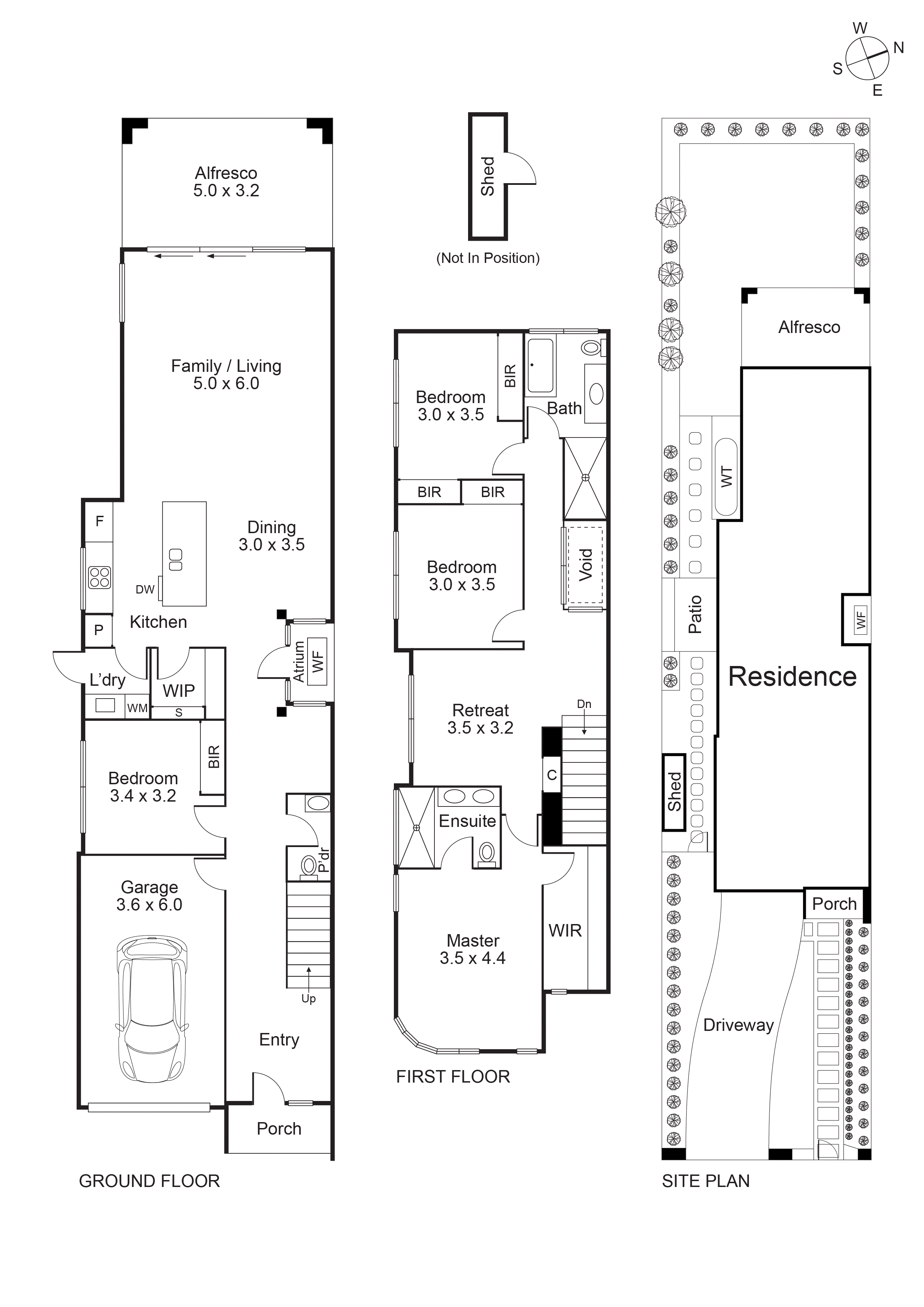
Striking in profile and beautifully finished with warm, enduring materials, this impressive four bedroom, two bathroom residence sits peacefully within low-maintenance gardens framed by structured greenery and thoughtful planting.
Engineered oak floors, high ceilings and bright, airy proportions establish an immediate sense of warmth and...
Striking in profile and beautifully finished with warm, enduring materials, this impressive four bedroom, two bathroom residence sits peacefully within low-maintenance gardens framed by structured greenery and thoughtful planting.
Engineered oak floors, high ceilings and bright, airy proportions establish an immediate sense of warmth and sophistication, setting the tone for an interior where functionality meets architectural flair.
A wide entry hall leads past a sleek powder room, a sun-drenched ground floor bedroom with built-in robes, a study nook, and a dramatic double-height void that floods both levels with natural light.
The showpiece kitchen commands attention with its statement marble finishes and waterfall island, extensive cabinetry, and a walk-in pantry designed for both storage and preparation. Complemented by a full suite of Omega appliances, including a 4-burner gas cooktop, oven, rangehood, and dishwasher, the space balances style and practicality.
Beyond, the living and dining domain flows effortlessly to a covered al fresco terrace via floor-to-ceiling stacker sliding doors. With a lush, private backdrop, this outdoor setting invites year-round entertaining and relaxation.
Upstairs, a carpeted retreat provides an extra space for family life, separating the master suite from the remaining accommodation. The master enjoys a generous walk-in robe and a luxurious marble-topped ensuite with twin vanities, while two further bedrooms, each with mirrored robes, share a central bathroom, equally refined with marble detailing, a deep bath, and a screenless shower.
Additional appointments include a fitted laundry with outdoor access, zoned heating and cooling, double-glazed windows and doors, and an internally accessed single garage with remote access behind secure auto gates.
Delivering a superb standard of living with timeless appeal, this exceptional residence enjoys a peaceful location within easy proximity of parklands, shops, cafes, restaurants, transport and a selection of local and private schools.
For more information about this sun-filled sanctuary please contact Richard Slade or Nickole Smirnov at Buxton Sandringham.