Set down a long private driveway, this secluded 3-bedroom, 2-bathroom residence offers modern low-maintenance living with single-level bliss. One of only two on the block, this hidden sanctuary occupies a generous 422m2 (approx.), complete with its own title and no body corporate! The perfect starter, downsizer or investment, this home is without...
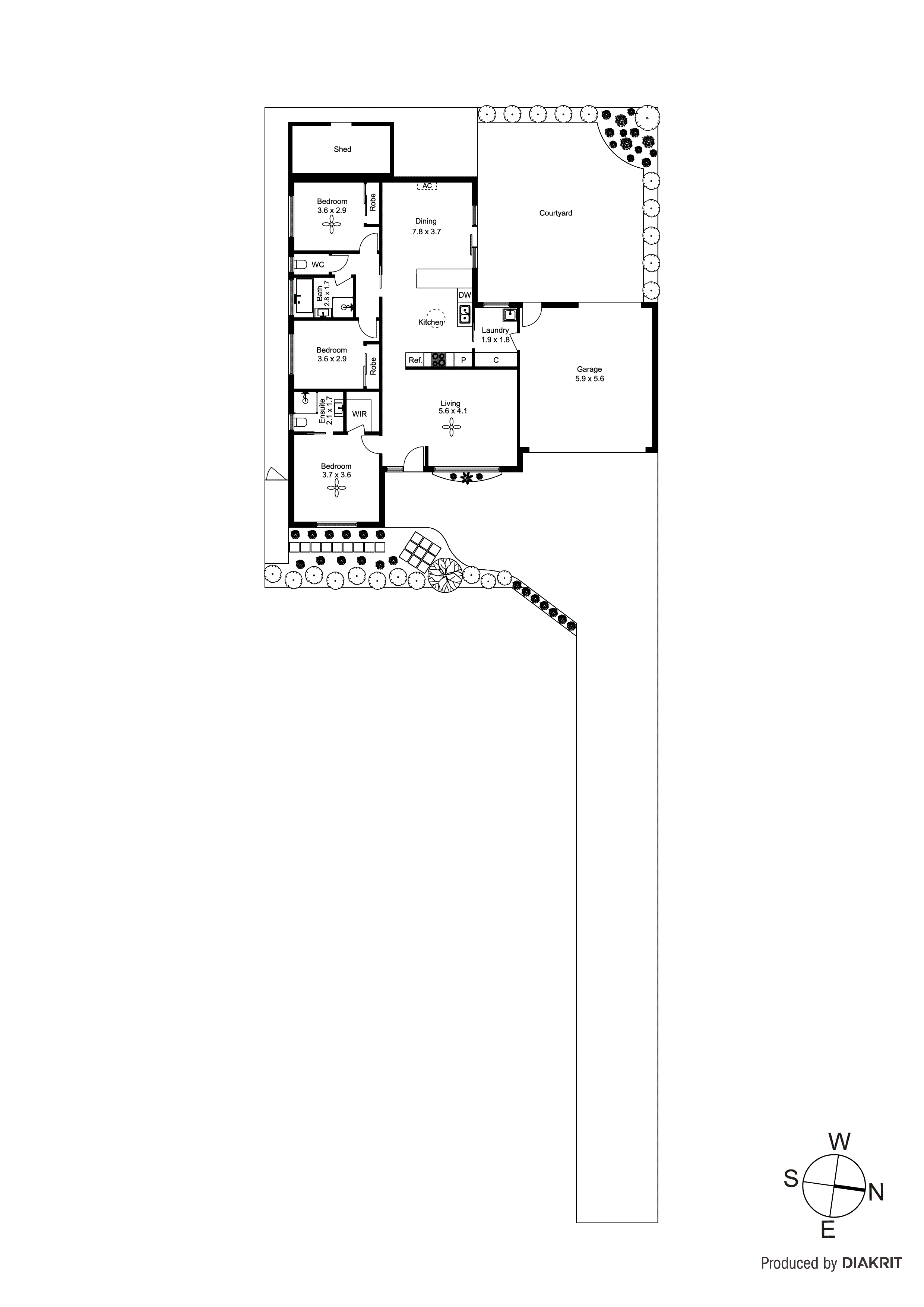
Set down a long private driveway, this secluded 3-bedroom, 2-bathroom residence offers modern low-maintenance living with single-level bliss. One of only two on the block, this hidden sanctuary occupies a generous 422m2 (approx.), complete with its own title and no body corporate! The perfect starter, downsizer or investment, this home is without compromise. Warm and welcoming, inside you’ll find two separate living areas, three bedrooms and two bathrooms. The front lounge room is generously proportioned, flowing through to an immaculate kitchen with stainless-steel appliances, ample storage and a breakfast bar. The inviting second dining/living space is a welcome addition, flooded with natural light and opening to the paved courtyard garden. With its coveted northerly aspect and leafy hedging, this beautiful alfresco space promises relaxed entertaining with family and friends. The serene master bedroom features a walk-in robe and ensuite, while quietly tucked within their own wing are two further robed bedrooms, sharing the family bathroom and separate toilet. Comfortably appointed with ducted heating, split systems and ceiling fans, you’ll also delight in the proper laundry with linen storage. Features include established gardens and citrus trees, a garden shed, double remote garage with internal entry and rear roller access to the courtyard, plus secure driveway parking. Everything about this exceptional property is easy – even the location. Positioned close to transport links, Bicentennial Park and Chelsea Village. Chelsea and St Joseph’s Primary Schools are within walking distance, while sporting reserves, the Longbeach Trail and the beach are moments away.