Beyond a bold facade and high-walled seclusion, this custom-designed residence by Lowe Design & Build unfolds as a sanctuary of elegance, spatial harmony, and effortless indoor-outdoor living across...
Beyond a bold facade and high-walled seclusion, this custom-designed residence by Lowe Design & Build unfolds as a sanctuary of elegance, spatial harmony, and effortless indoor-outdoor living across two serene levels.
Every detail has been thoughtfully composed with precision and restraint to cultivate an enduring sense of calm. From its northeast-facing rear and curated material palette to its cohesive blend of luxury and function, the home speaks to those who value understated excellence and the quiet beauty of craftsmanship.
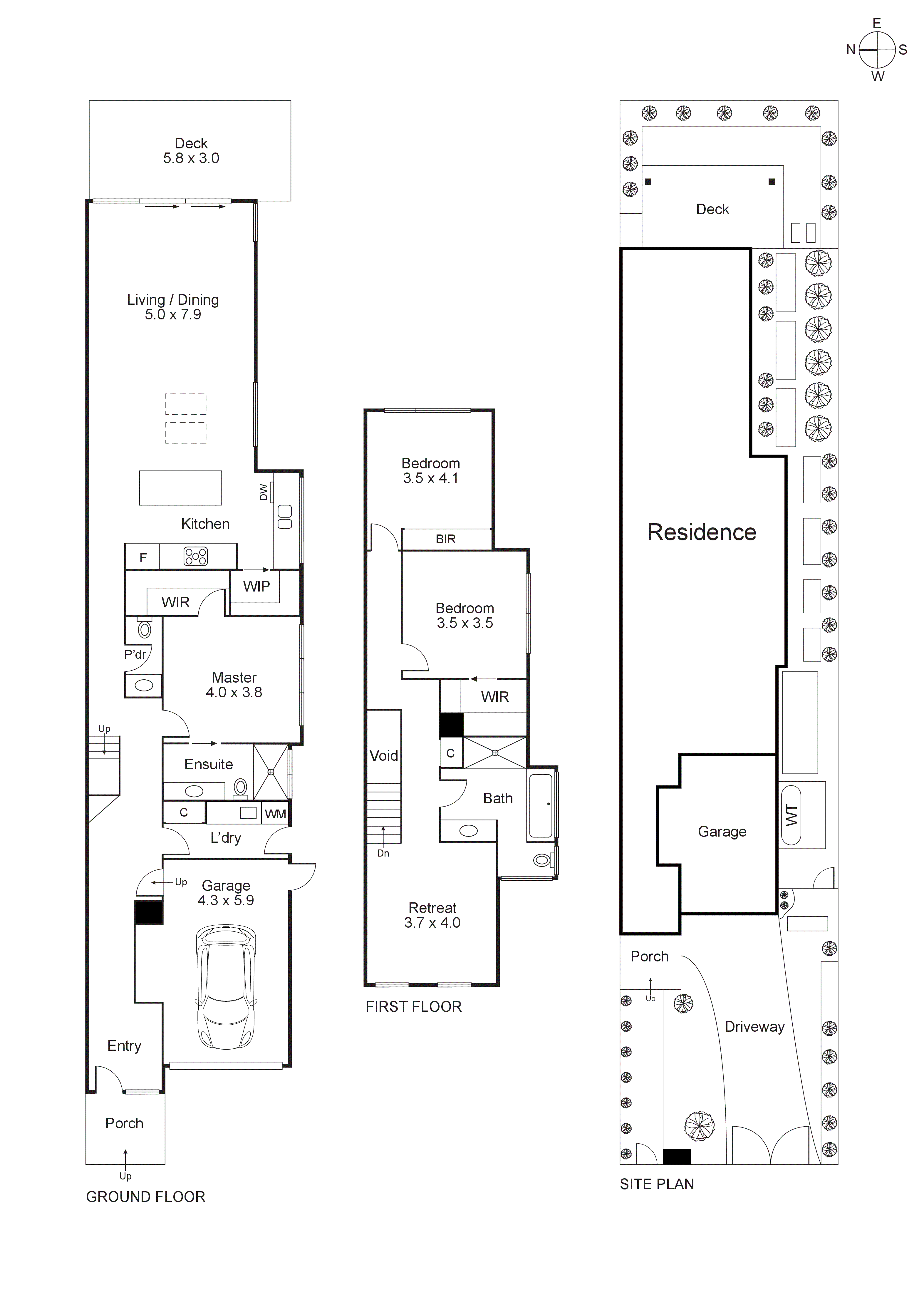
A secure, keyless entry introduces a wide hallway, where Prestige Oak flooring and high ceilings invite a gentle procession through light-filled interiors flowing through to the heart of the home.
Here, lofty ceilings and expansive glazing amplify the sense of openness and connection to the outdoors. Vast panes of glass weave the green of the garden into the interiors, while stacker sliding doors retract to create a seamless transition to the dining deck - an idyllic space for long lunches, quiet evening gatherings, or sun-drenched solitude set against a backdrop of lush garden views.
Anchoring this social heart is a lavishly appointed kitchen, where a suite of premium inclusions blends performance with refinement. Stone benchtops provide ample preparation space, complemented by a 5-burner freestanding cooker, LG dishwasher, and soft-close Blum cabinetry. A sizeable walk-in pantry adds generous storage and practical ease, supporting both everyday family life and elevated entertaining.
Accommodation is thoughtfully arranged to balance privacy and connection. On the ground floor, the master suite is discreetly zoned and imbued with a restful ambience. A bespoke walk-in robe and luxurious ensuite - appointed with stone finishes and a frameless walk-in shower - add a layer of indulgence.
Upstairs, the retreat is softened by plush carpet and filtered light through plantation shutters - an ideal setting for relaxation. Two additional bedrooms continue the home’s commitment to comfort and quality, with one offering a walk-in robe and the other built-in robes. A beautifully finished central bathroom features a deep bath, separate shower, and sleek vanity.
Practical needs are elegantly met with a security system, fitted laundry with outdoor access, a ground-floor powder room, zoned reverse-cycle climate control, and a 2500 litre water tank. A remote-controlled single garage adjoins a second secure car space, both set behind automatic gates.
Enviably located in a tranquil, family-focused pocket, this secluded haven is just a short walk from Highett Village’s cafes, restaurants, wine bars, shops and train station - with Westfield Southland only one train stop away for effortless retail and dining access. Beautiful beaches, parklands and excellent schools are also within easy reach, enhancing daily life.
For more information about this sensational showpiece contact Richard Slade or Nickole Smirnov at Buxton Sandringham.
