Set in the absolute heart of Elwood, 1/96 Broadway presents an exciting opportunity to secure a generously proportioned period home on approx. 315sqm, moments from Ormond Road Village and the beach.
Behind its classic façade, you’ll find three spacious bedrooms including a master with ensuite, separate living and dining zones, original timber...
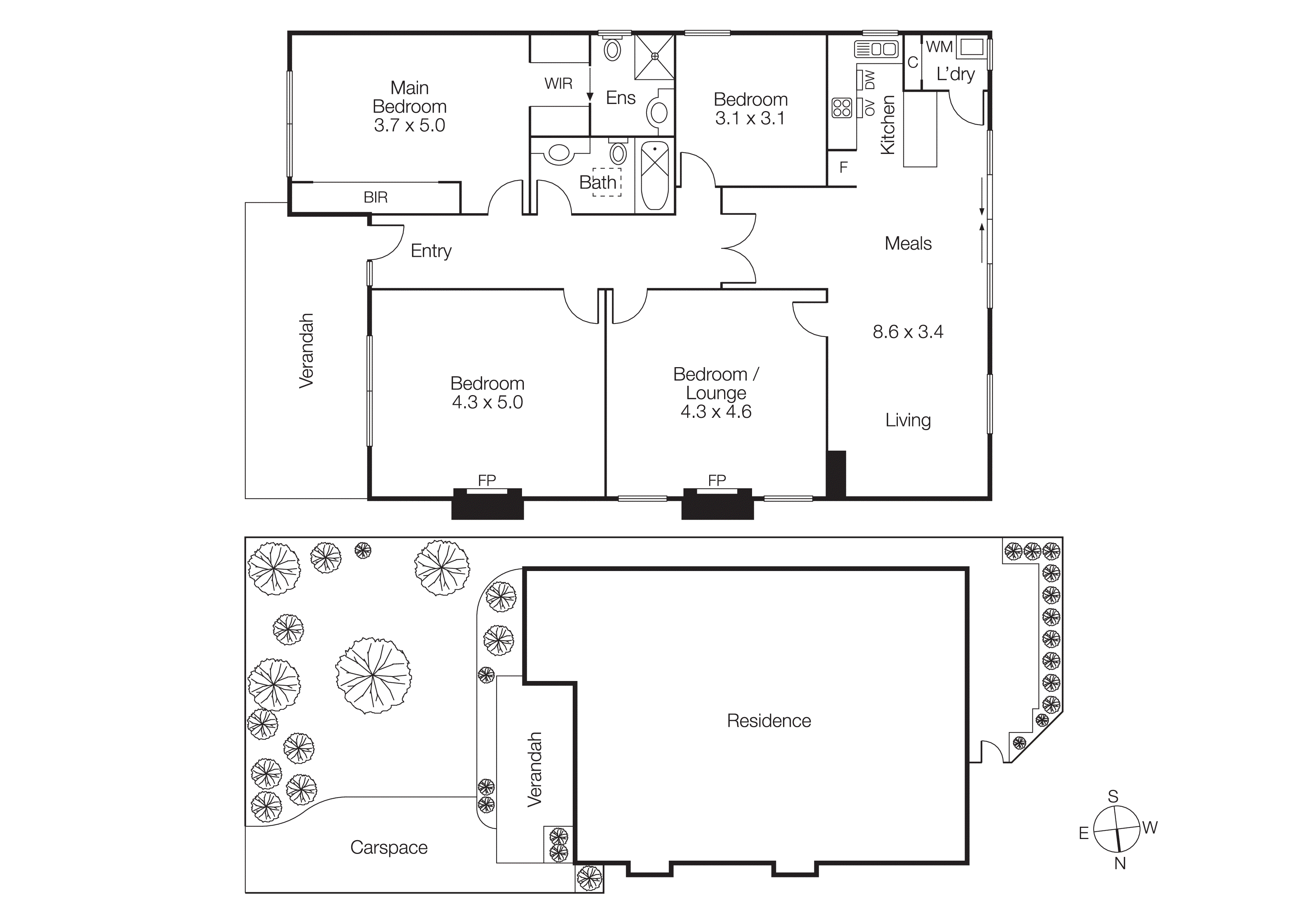
Set in the absolute heart of Elwood, 1/96 Broadway presents an exciting opportunity to secure a generously proportioned period home on approx. 315sqm, moments from Ormond Road Village and the beach.
Behind its classic façade, you’ll find three spacious bedrooms including a master with ensuite, separate living and dining zones, original timber floorboards, and beautifully preserved pressed metal ceilings that hint at the home’s character-rich past.
The floorplan is functional and well-zoned, with updated kitchen and bathroom spaces already in place — so while there’s still work to be done, the fundamentals are exactly where they need to be. This is a renovation project with clarity, not chaos.
With a large front garden, rear courtyard, and off-street parking for two, the home offers plenty of flexibility for families, renovators or long-term investors looking to add value in a premium lifestyle location. Just a short walk from Glen Huntly Road transport links and a stone’s throw from Elwood’s best cafes, parks, and schools.
Bring your vision. The rest is ready.