Embrace modern coastal luxury without compromising on space or convenience! This brand new three-bedroom, two-bathroom residence is one of just three boutique homes, ideally located just steps from the pristine white sand, train station and cafes, yet conveniently close to schools, the farmer’s market and nature trails. Spanning two levels,...
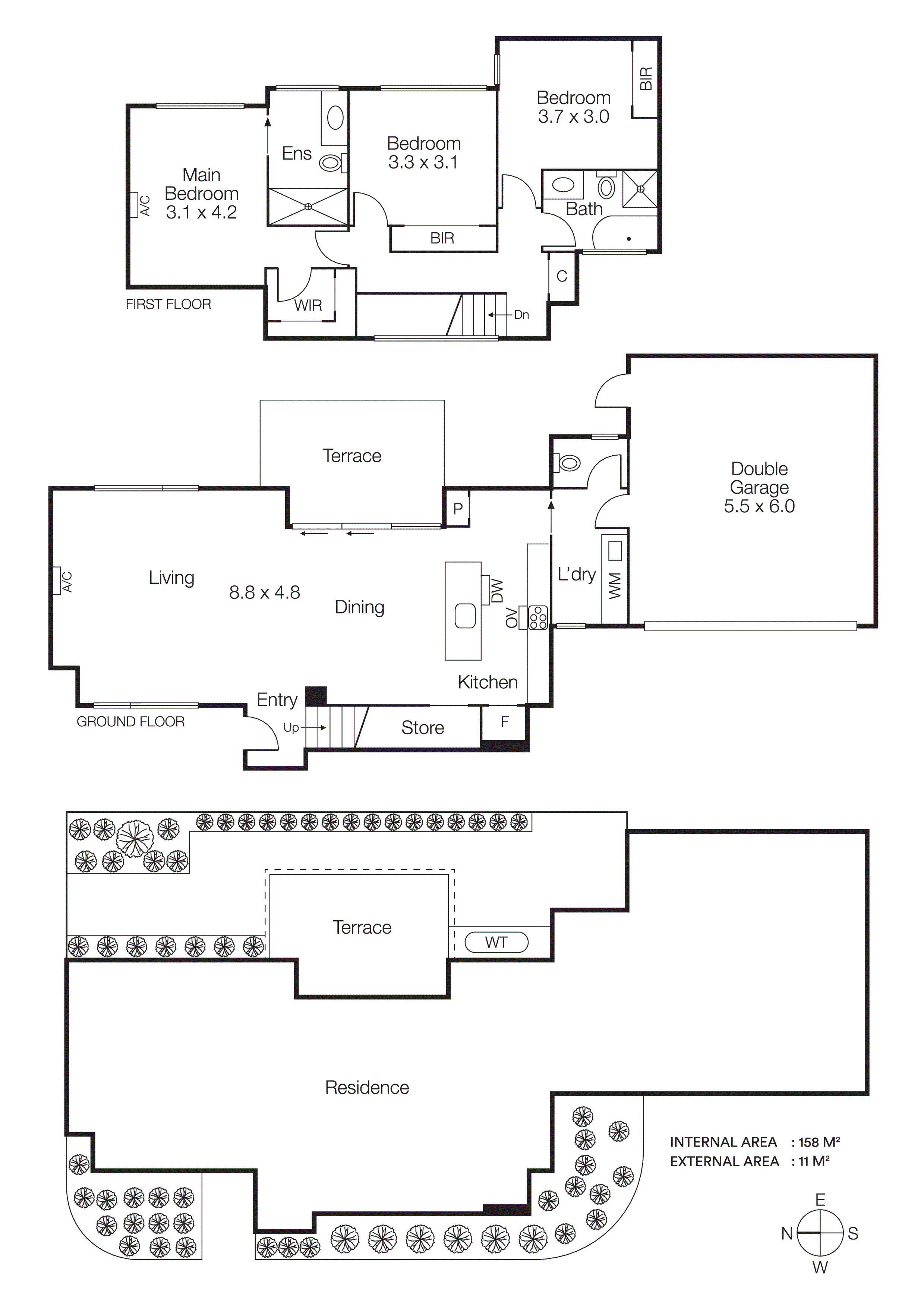
Embrace modern coastal luxury without compromising on space or convenience! This brand new three-bedroom, two-bathroom residence is one of just three boutique homes, ideally located just steps from the pristine white sand, train station and cafes, yet conveniently close to schools, the farmer’s market and nature trails. Spanning two levels, luxurious finishes flow throughout. Engineered timber flooring, pure wool carpets and ABI Interiors brushed brass fixtures add contemporary coastal class, while sleek stone surfaces, mosaic tiles in soft sage and coastal oak cabinetry surround you in style. Inside you’ll discover generously proportioned open plan living, infused with light and ideal for entertaining, opening to a private outdoor space and garden. The premium kitchen is fitted with Westinghouse appliances, including a 90cm oven and cooktop, with the island bench featuring an exquisite stone waterfall-edge and designer lighting. Upstairs, in the master bedroom, you’ll find a walk-in robe and ensuite, while the two remaining bedrooms are robed and share the family bathroom. Both bathrooms are beautifully appointed with floating vanities and rain showers, while a ground-level guest powder room and large laundry will delight, as will internal entry to the double garage. Situated in the heart of Bonbeach, this outstanding location is approximately 150m from Bonbeach Station and 280m to the beach. Immerse yourself in carefree coastal living with the friendly local Bonbeach Tuck Shop, Bonbeach Reserve and Bonbeach Primary School within strolling distance, along with bus stops, shopping and freeways at your fingertips.