Surrounded by established greenery and streaming with sunshine, this inviting two-bedroom villa offers seamless single-level living in a peaceful yet wonderfully connected Mentone pocket. Enjoying its own street frontage and landscaped, lawned gardens front and back, it’s privately positioned opposite Chicquita Reserve, moments from village shops,...
Surrounded by established greenery and streaming with sunshine, this inviting two-bedroom villa offers seamless single-level living in a peaceful yet wonderfully connected Mentone pocket. Enjoying its own street frontage and landscaped, lawned gardens front and back, it’s privately positioned opposite Chicquita Reserve, moments from village shops, DFO, schools, transport and the beach.
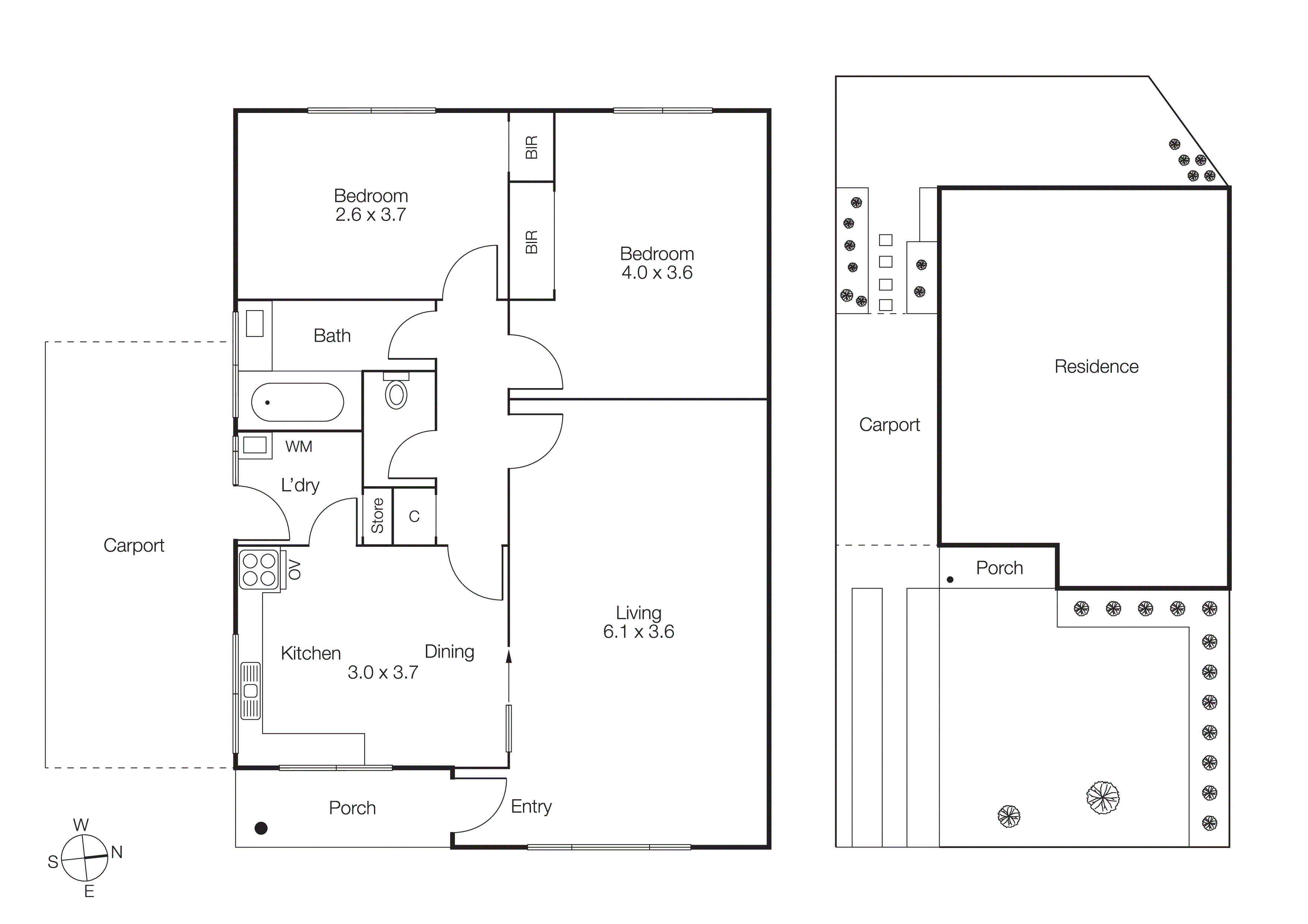
Freshly painted and instantly comfortable, the light-filled interiors reveal a generous living room with electric heating and large picture windows that frame verdant outlooks. A separate kitchen and dining area with hybrid flooring and electric appliances enjoys a lovely garden aspect, while an adjoining laundry includes convenient shopper access via the carport and private driveway.
Perfectly zoned to the rear, two well-proportioned bedrooms with built-in robes enjoy courtyard views and share a neat central bathroom and separate WC. With a well-planned layout, generous proportions and sun-soaked outdoor spaces, the home offers excellent scope to update or renovate over time, enhancing comfort and unlocking future value.
Be the master of your own domain with no owners corporation, this outstanding first home, smart investment or relaxed downsize offering is an easy-care lifestyle with all the benefits of Mentone living. This leafy setting is just steps from green space and every convenience.
For more information about this single-level villa with scope please contact Tom Davidson at Buxton Brighton on 0488 017 500.