This clinker-brick classic offers a rare chance to unlock future potential through a spectacular renovation or a brand new family home (STCA). Set on 624sqm (approx) of sun-soaked land and surrounded by some of Bayside’s most prized amenities, including Haileybury, St Leonard’s, Brighton Golf Course, Dendy Park and the beachfront, this address...
This clinker-brick classic offers a rare chance to unlock future potential through a spectacular renovation or a brand new family home (STCA). Set on 624sqm (approx) of sun-soaked land and surrounded by some of Bayside’s most prized amenities, including Haileybury, St Leonard’s, Brighton Golf Course, Dendy Park and the beachfront, this address brings family prestige and exceptional lifestyle prospects.
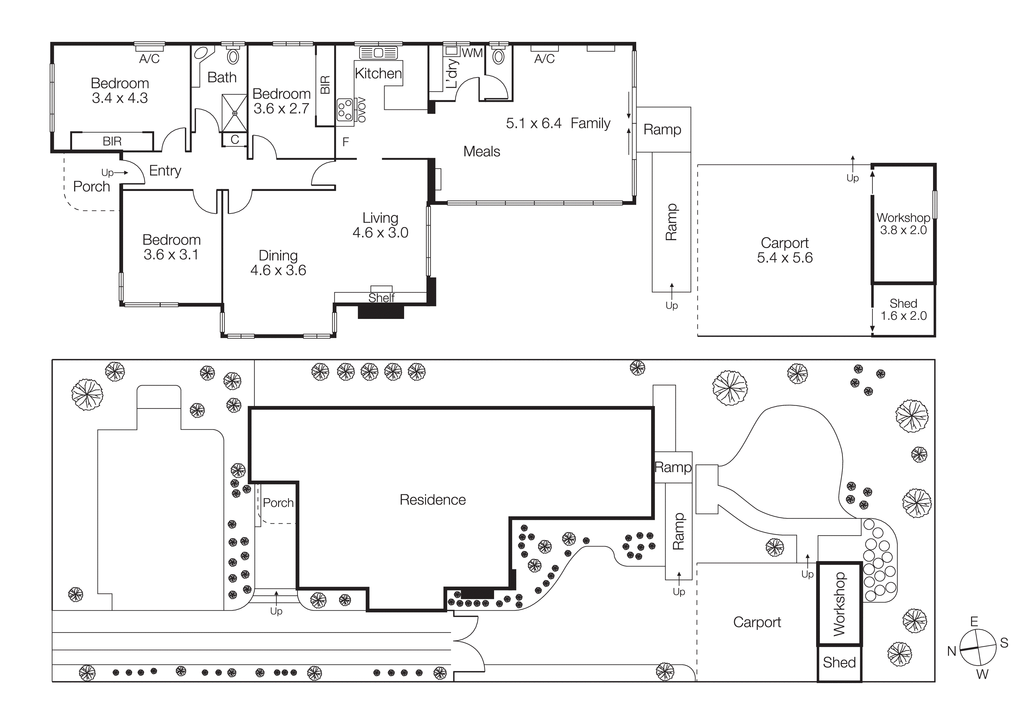
Elevated on the high side to maximise natural light, the home’s charming façade and slate veranda hint at the timeless appeal within. Period details including high ceilings, timber floors and steel-framed windows provide an inspiring foundation for a stunning renovation tailored to today’s lifestyle. With generous proportions and solid bones, the layout invites a creative redesign blending classic detail with contemporary comfort.
Restore the original elegance of the formal rooms and two light-filled front bedrooms, where lovely corner windows frame leafy garden views. The main bedroom and bathroom offer scope to create a private retreat, while the vintage kitchen and glass-wrapped family room are primed for reinvention as an expansive indoor-outdoor entertaining zone, with room to extend or add a second storey if desired (STCA).
Alternatively, start fresh with a bespoke new build, designed to your exact requirements and maximising the light-catching orientation and deep rear garden. Positioned in a well-connected location close to shops, transport and parkland, with a coveted Bayside postcode, this is a compelling opportunity for families looking to make their mark.
For more information about this clinker classic brimming with potential please contact John Clarkson at Buxton Brighton on 0408 153 045.