A harmonic sonata of wrought iron artistry, original parquetry floors and classical cornices sets the tone for this exquisite three-bedroom, two-bathroom French-inspired town residence.
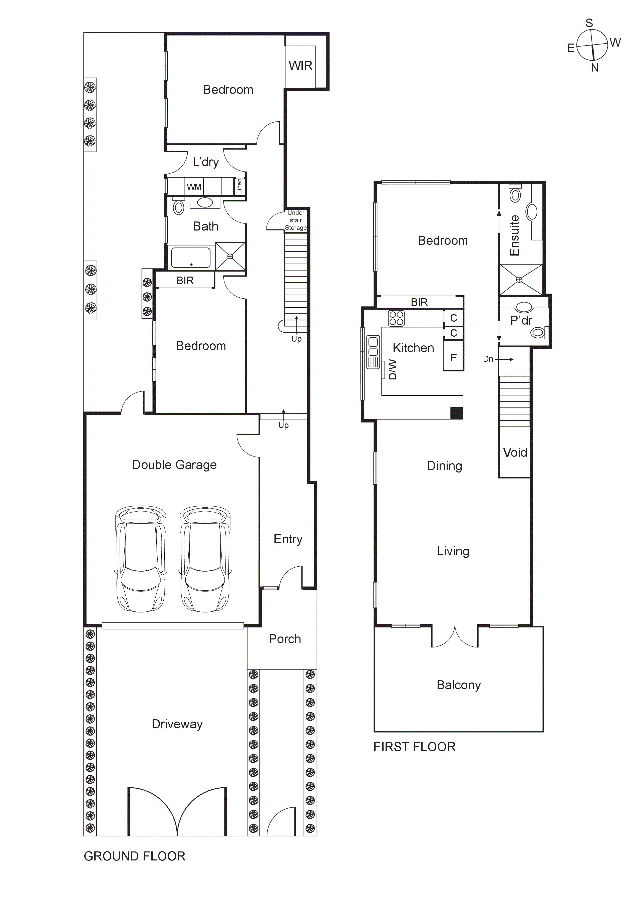
Beyond grand wrought iron gates and a stately timber front door, this elegant home reveals a reversed floorplan that basks in natural light. Upstairs, a...
A harmonic sonata of wrought iron artistry, original parquetry floors and classical cornices sets the tone for this exquisite three-bedroom, two-bathroom French-inspired town residence.
Beyond grand wrought iron gates and a stately timber front door, this elegant home reveals a reversed floorplan that basks in natural light. Upstairs, a north-facing living and dining domain flows through double doors to a sun-soaked alfresco terrace, while the superb entertainer’s kitchen anchors the space in style. The gracious main bedroom boasts built-in robes and a tasteful ensuite with a large shower, complemented by a separate guest powder room for added convenience.
Downstairs, two additional bedrooms—one with built-in robes, the other with a walk-in—are serviced by a central polished bathroom and enjoy sunshine filtering through plantation shutters. A separate laundry leads to an exposed aggregate courtyard garden, offering a second outdoor escape—perfect for drying clothes or giving pets room to play.
High-end European-imported double-glazed French windows, ducted heating, evaporative cooling, ducted vacuum, instant hot water, abundant storage, and a secure double auto garage (behind grand electric wrought iron gates) complete this impeccable home.
Freshly sanded and sealed parquetry, newly laid carpet, and a crisp new coat of paint make this residence move-in ready.
Perfectly positioned just moments to South End’s cafés, St Leonard’s College, and the Middle Brighton/Southland bus, with Haileybury College, Were Street eateries and Hampton Street’s fine dining all within walking distance. Zoned for Hampton Primary School and Brighton Secondary College.
ALL ENQUIRIES MUST INCLUDE A CONTACT NUMBER.