Perfectly positioned in sought after Brighton East postcode, this beautifully appointed property combines warmth, security and space to create the ideal setting for family life and entertaining. ...
Perfectly positioned in sought after Brighton East postcode, this beautifully appointed property combines warmth, security and space to create the ideal setting for family life and entertaining.
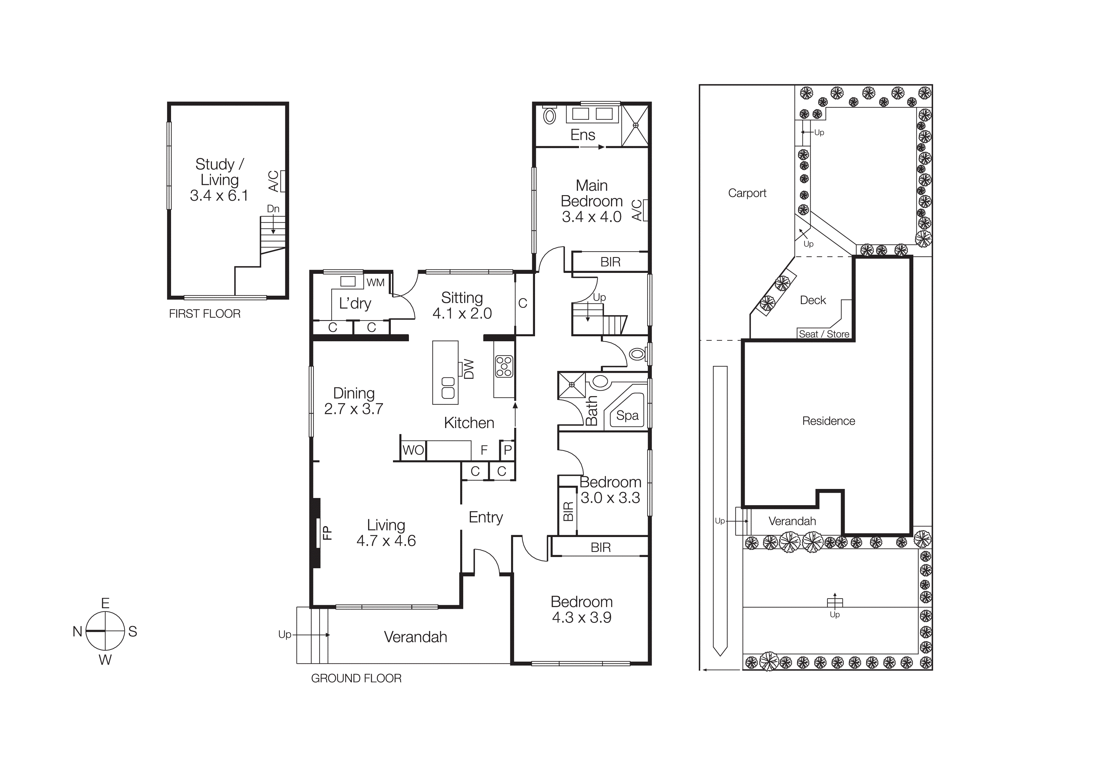
This three-bedroom, two-bathroom residence features double glazed European style tilt and turn windows and doors using toughened glass and superior 5-point locking system to ensure safety and a quiet indoor environment. Beyond a securely fenced front garden, leafy hedging provides another layer of seclusion, while a north-westerly aspect fills spacious interiors with natural light. Climate control is effortless with Daikin reverse cycle air conditioning and Brivis ducted gas heating, complemented by a cosy gas log fireplace for those winter evenings.
Three generous bedrooms all with floor to ceiling robes, include a rear-set master suite with dual vanity en suite. The main bathroom features a deep spa bath and separate WC. A largely single level layout is enhanced by a vast upper level retreat and/or work from home space. Dining and a second sitting or meals area wrap a prestige kitchen adorned with high quality Caesarstone, Miele appliances and soft close cabinetry offering ample storage.
A covered al fresco deck with built in storage perfect for all year entertaining overlooks a spacious backyard adjoining a sizeable rear land ideal for basketball court, pool, home office pod or a granny flat – you are only limited by your imagination. Plenty of parking space with covered carport for one car and ample parking space for multiple vehicles.
This attractive home is wonderfully positioned just footsteps to the area’s most vibrant Centre Road shopping precinct, parks, schools and bayside beaches. This is the family home you have been looking for, offering convenience and lifestyle in equal measure.
Key features at a glance:
- Double-glazed doors/windows with 5-point lock & toughened glass
- Remote-controlled sliding gate & secure metal fencing
- Fully insulated for year-round comfort
- Daikin reverse cycle A/C + Brivis ducted heating + gas log fireplace
- Miele kitchen appliances, Caesarstone bench-top, soft-close cabinetry
- Large deck with storage
- Carport + space for multiple cars
- Expansive backyard with endless potential
For more information about this spacious family home please contact Guy St Leger at Buxton Brighton on 0411 861 666.
