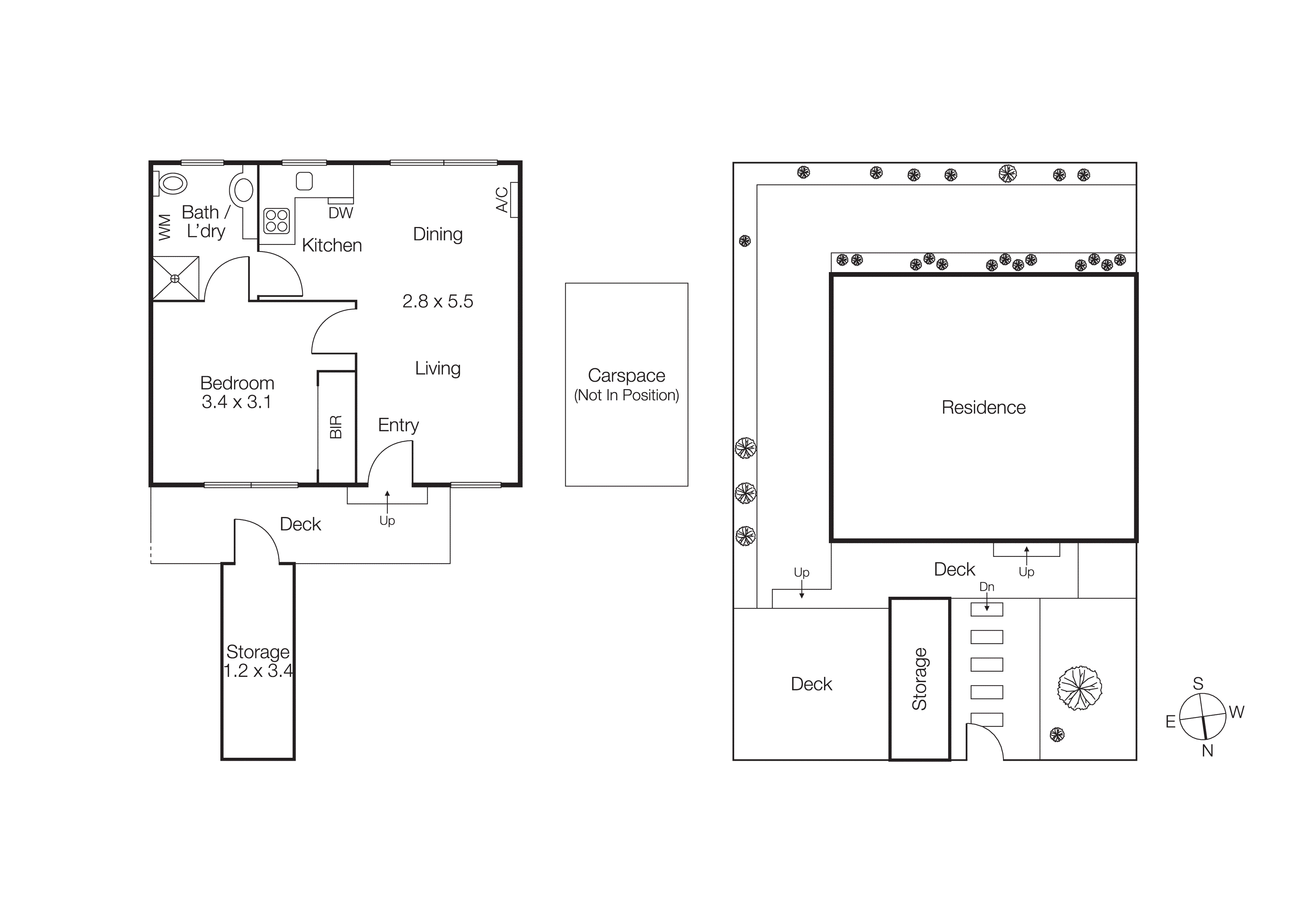
Meander down a leafy pathway to reach this exceptionally private ground-level apartment, tucked away at the very rear of a well-presented garden group. An easy-care retreat boasting a rare wraparound courtyard and generous outdoor proportions, it combines absolute peace with a sought after lifestyle on Bay Street’s doorstep.
A private gated entry...
Meander down a leafy pathway to reach this exceptionally private ground-level apartment, tucked away at the very rear of a well-presented garden group. An easy-care retreat boasting a rare wraparound courtyard and generous outdoor proportions, it combines absolute peace with a sought after lifestyle on Bay Street’s doorstep.
A private gated entry opens to reveal a sunlit al fresco oasis where low maintenance synthetic grass, a mature jacaranda and verdant foliage frame a spacious entertaining deck. Taking full advantage of its north-west aspect, the garden wraps around three sides of the home, offering a secluded, pet-friendly haven with ample room to stretch out and enjoy. A lockable storage room completes the outdoor amenity.
Natural light fills the interiors with an open-plan living and dining area (split system) flowing to a well-appointed kitchen boasting premium stone benchtops, electric appliances and a dishwasher. The spacious bedroom features built-in robes and direct access to a sparkling bathroom with laundry facilities for added convenience.
With dedicated off-street parking for one, leave the car at home and enjoy Brighton’s finest on foot - from Dockendorff Grocer and Bossy Boots, to Bay Street’s restaurants, shops, pilates/personal training studios, cinema and train station just around the corner, and Brighton’s Golden Mile beachfront only moments away. A secure and neighbourly setting completes this ideal Bayside base and sound investment opportunity.
* For inspection walk down the garden path on the left hand side to discover no. 21
For more information about this rare courtyard apartment please contact Tamara Penno at Buxton Brighton on 0409 532 606.