Even from the street, you can see how much potential there is with a sweeping, flat 747sqms (approx.) corner in the school hub close to Wheelers Hill Secondary, Waverley Meadows Primary and Lum Reserve and tennis club.
The big land footprint framing both Enrica Place and Brahmin Ave, gives you options to subdivide and redevelop (STCA) to...
Even from the street, you can see how much potential there is with a sweeping, flat 747sqms (approx.) corner in the school hub close to Wheelers Hill Secondary, Waverley Meadows Primary and Lum Reserve and tennis club.
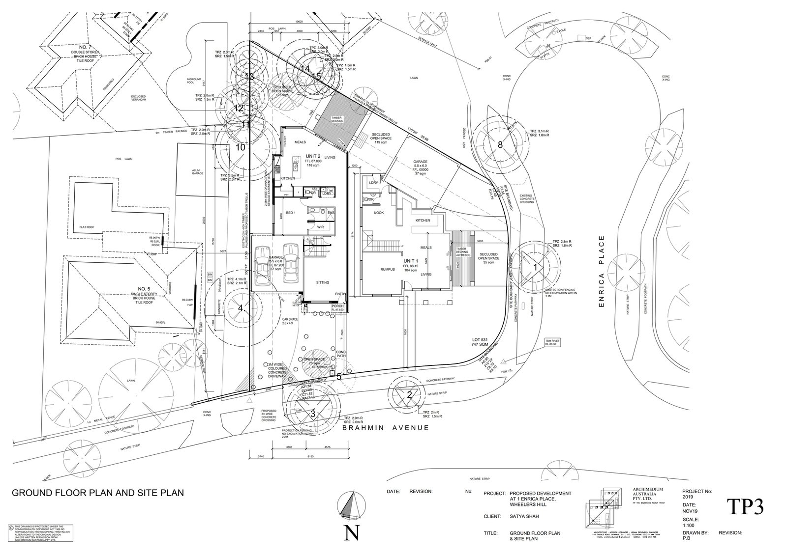
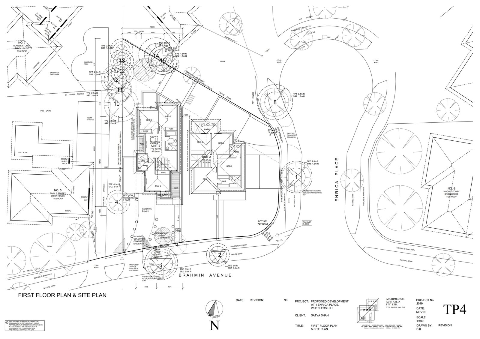
The big land footprint framing both Enrica Place and Brahmin Ave, gives you options to subdivide and redevelop (STCA) to accommodate 2 new units, potentially with their own street frontage and standalone address.
Proposed plans have already been drawn for two 4-bedroom freestanding units, each with their own garage and north-facing decks, which helps you fast track the approval and build timeline.
The current dwelling is a tenanted 3-bedroom home that boasts 2 separate living rooms, providing ample space for young families wanting areas in which to relax, play, and do homework.
A galley kitchen comes with an upright cooker, and plenty of cupboard space. Ceiling fans provide cooling in the bedrooms.
Having 2 separate entrances, including one from the court, enhances the versatility of the address which is secured behind high steel fences.
A covered outdoor area, carport with roller door and plenty of grassed areas gives you a blank canvas for whatever vision you’re keen to explore in this family friendly suburb, prized for its top schools, transport access, and shopping choice at nearby Brandon Park, Wheelers Hill, The Glen, and Chadstone and its new entertainment playground The Social Quarter, which is just a 15min drive.