LUXURY MEETS PRACTICAL FAMILY LIVING
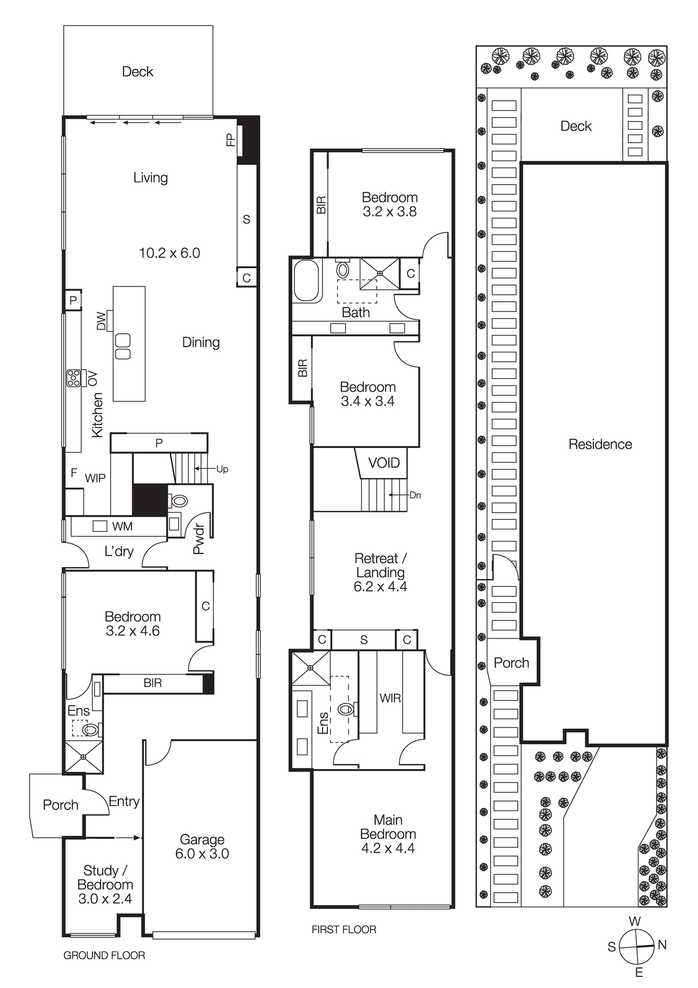
This substantial four bedroom plus home-office, 3.5 bathroom, dual zone home offers a new perspective; with bold architectural presence on the street front, and an incredible detail to finish and design throughout, you cannot fail to be impressed with this exceptional new home
Designed to accommodate every...
LUXURY MEETS PRACTICAL FAMILY LIVING
This substantial four bedroom plus home-office, 3.5 bathroom, dual zone home offers a new perspective; with bold architectural presence on the street front, and an incredible detail to finish and design throughout, you cannot fail to be impressed with this exceptional new home
Designed to accommodate every family lifestyle with the choice downstairs master or guest suite, this expansive home offers high-energy, low-maintenance living with vast living-dining. Showcasing extraordinary attention-to-detail with a state-of-the-art Bosch appliance kitchen, the home meets every families need in 5 Star style with floor-to-ceiling tiling for the bespoke bathrooms, and an abundance of storage including built-in and walk-in robes
Specified to the highest standard with engineered oak flooring meeting deep-loop carpet, the home’s interior-schedule features an abundance of tasteful designer finishes. Climate-controlled, every inclusion is here from auto-garaging and parking, to a creative landscape.
*You MUST register for an inspection and we ask that you also confirm your attendance. AN AGENT WILL NOT BE PRESENT IF YOU DO NOT REGISTER and CONFIRM. Your consideration and co-operation is appreciated. Photo ID is required for entry. Thank you.