Expressions Of Interest Close Date Tuesday 24th June at 2:00pm
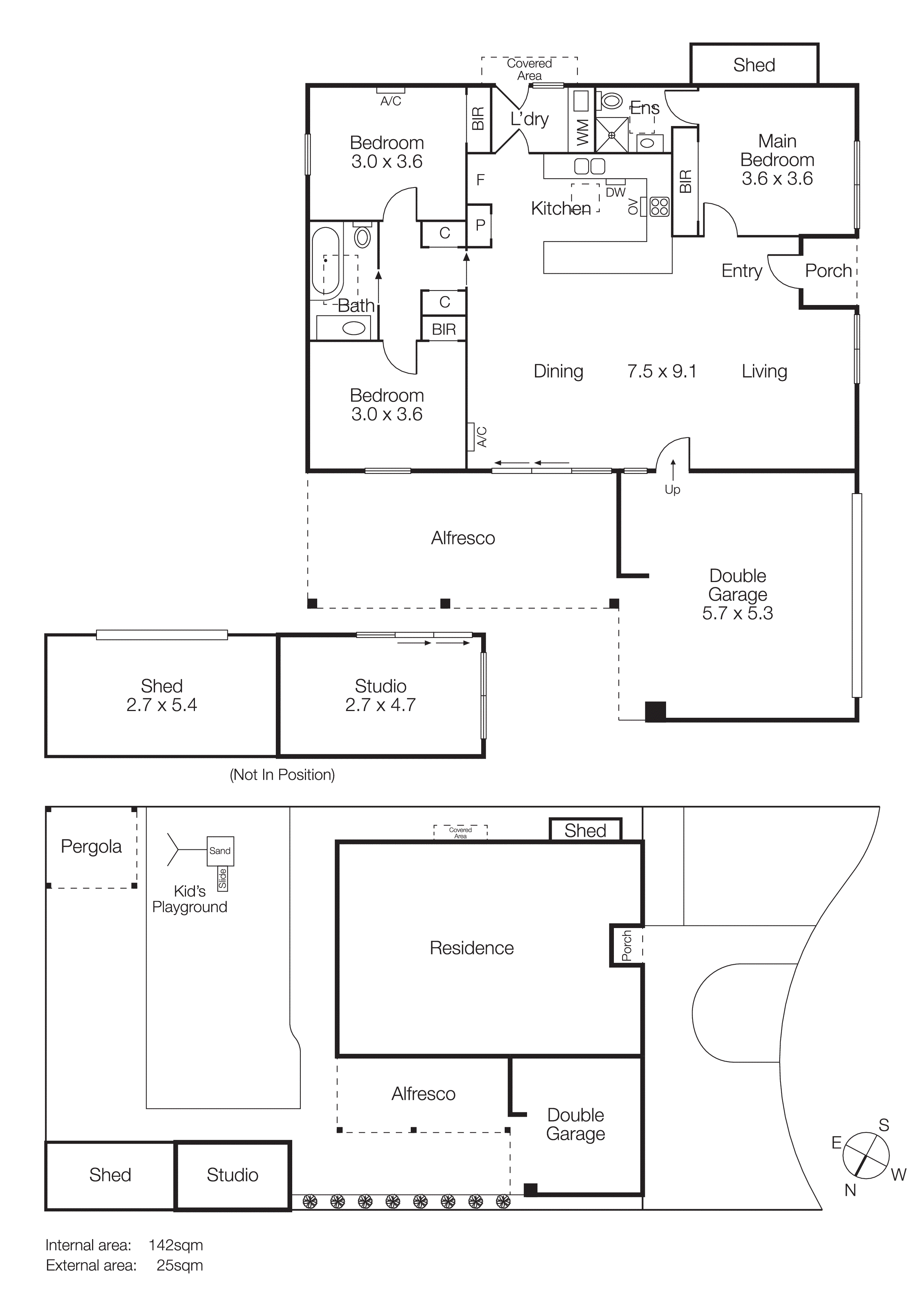
Nestled within a quiet court setting and boasting a stunning transformation, this 3-bedroom, 2-bathroom + outdoor studio family home has been stylishly renovated for modern living. Surrounded by parklands, schools and excellent transport links, and you'll love the beach in mere...
Expressions Of Interest Close Date Tuesday 24th June at 2:00pm
Nestled within a quiet court setting and boasting a stunning transformation, this 3-bedroom, 2-bathroom + outdoor studio family home has been stylishly renovated for modern living. Surrounded by parklands, schools and excellent transport links, and you'll love the beach in mere minutes and the outstanding lifestyle convenience. Beyond the freshly rendered façade, inside reveals spacious open plan living and dining with polished concrete floors and an abundance of natural light. The gourmet kitchen will delight with its expansive stone benches and stainless steel appliances, while sliding doors open to your choice of covered alfresco areas for effortless entertaining. Bathed in northern sunshine, the large backyard impresses with its lush lawn and aggregate finishes, while adding extra appeal is the inclusion of an outdoor studio with split-system - the perfect home office or retreat. Three bedrooms also feature, all with built-in robes and plush carpet. The master bedroom is a stylish haven with its luxurious ensuite, while the two remaining bedrooms and sublime family bathroom are peacefully tucked at the rear behind a stylish barn door. Skylit and serene, the bathrooms indulge you in contemporary bliss, graced with shower ledges, full-height tiling, warm timber accents, terrazzo and mirrored storage. Completing this single-level beauty is a chic laundry, dual linen cupboards, multiple split-systems and a large garden/bike shed. Even the secure double carport features a new remote roller door! Located in a sought-after family pocket, this gorgeous property is within walking distance of the Edithvale Recreation Reserve Playground, Edithvale General Store, Edithvale Kindergarten, Edithvale Primary School, the Longbeach Trail, and local golf courses. In moments, you'll find beautiful beaches, shopping, cafes, train stations and freeways.
Another sold by Daniel Wright - 0414 788 828