Set within the historic ‘Grosvenor Mansions’ this ground-floor residence offers the perfect blend of Victorian charm and modern comfort in a prized lifestyle location. Behind its elegant façade and sheltered porch are soaring ceilings, arched hallways and timber floors highlighting the home’s heritage character, while a central bathroom, ducted...
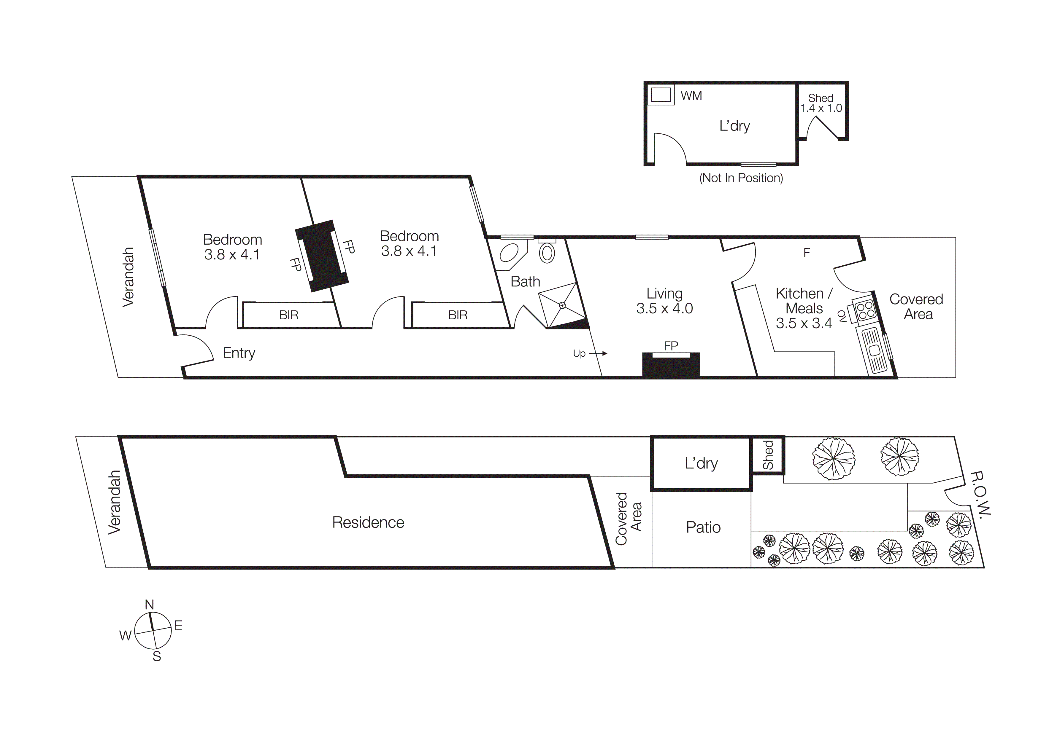
Set within the historic ‘Grosvenor Mansions’ this ground-floor residence offers the perfect blend of Victorian charm and modern comfort in a prized lifestyle location. Behind its elegant façade and sheltered porch are soaring ceilings, arched hallways and timber floors highlighting the home’s heritage character, while a central bathroom, ducted heating and separate kitchen with meals area ensure everyday functionality.
The spacious main bedroom with ornamental fireplace and a second light-filled bedroom with floor to ceiling built in robes provide versatility for guests or a home office, complemented by a welcoming lounge also featuring an ornamental fireplace. One of the property’s highlights is its expansive backyard comparable to many freestanding homes, with a sheltered entertaining area, sun-soaked yard and a powered rear shed with laundry facilities and rear access, this is an inner-city sanctuary with space to enjoy.
Opposite a pocket park and moments from Carlisle street cafés, shops, trams and the station, this is a unique opportunity to secure a Victorian gem with lifestyle appeal.